苏州太湖香山置地&东凌建设24号售楼处电话→苏州太湖香山置地&东凌建设24号售楼中心首页网站→楼盘百科详情→24小时电话
扫描到手机,新闻随时看
扫一扫,用手机看文章
更加方便分享给朋友
苏州太湖香山置地&东凌建设24号售楼处电话:400-8787-098转分机号5678【售楼处位置】
苏州太湖香山置地&东凌建设24号售楼处电话:400-8787-098转分机号5678【营销中心】
苏州太湖香山置地&东凌建设24号楼盘详情4008787098-转分机号5678(房价,价格,地址,户型图,交通,周边配套,备案价,楼盘详情,售楼处电话,售楼处地址,最新房源,最新价格,最新动态,最新进展等详情)
位于吴中东山的太湖香山置地&东凌建设24号号地块规划正式出炉!
该地块位于吴中区东山镇山水路东侧、东山大道北侧,住宅用地,出让面积24556.3平,容积率1-1.02,太湖香山置地和东凌建设以17032万元的底价竞得该地块,成交楼面价6800元/平,溢价率0%。
公示来看,该项目用地面积24556.3平,地上计容面积25012.69平,总建筑面积46289.24平!
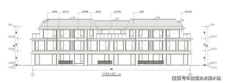
根据规划,项目打造了17栋3F联排,4栋6+1F住宅!
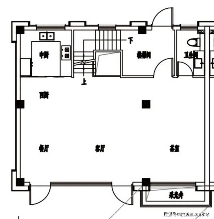
项目同时公示了8#的平面图!
一层
二层
三层
6+1F住宅 层高3.1米
边户
苏州太湖香山置地&东凌建设24号售楼处电话:400-8787-098转分机号5678【售楼处位置】
苏州太湖香山置地&东凌建设24号售楼处电话:400-8787-098转分机号5678【营销中心】
苏州太湖香山置地&东凌建设24号楼盘详情4008787098-转分机号5678(房价,价格,地址,户型图,交通,周边配套,备案价,楼盘详情,售楼处电话,售楼处地址,最新房源,最新价格,最新动态,最新进展等详情)
声明:本文由入驻焦点开放平台的作者撰写,除焦点官方账号外,观点仅代表作者本人,不代表焦点立场。
