【东原印未来】售楼处丨2025更新 武汉【东原印未来】24小时电话丨地址丨最新动态
扫描到手机,新闻随时看
扫一扫,用手机看文章
更加方便分享给朋友
东原印未来:主推二期建面约95-107-129㎡毛房源,折后均价约4800元/㎡。
东原印未来总占地面积约14.54万方,总建面约35万方,容积率2.57,共3388户,机动车停车位4410个,车位比1:1.3。项目分三期开发,目前主推的是二期。
二期占地面积约4.24万方,总建面约14.8万方,容积率2.61,共1022户,机动车停车位1292个,包含8栋住宅和约4230平米社区商业。三期占地面积约4.99万方,总建面约18.1万方,容积率2.71,共1235户,机动车停车位1604辆,包含8栋住宅和部分社区底商,三期待开发,不排除调规的可能性。
推售阶段:一期已售罄,二期仅剩3、4、5号楼未推出,三期待开发

VIPline:400-8787-098 转 4444【贵宾热线】
项目地址:武汉市东西湖吴家山临空港新城滨河南路与径西八路交汇处
开发商:武汉迪马智睿实业有限公司
物业:重庆新东原物业管理有限公司武汉分公司
产品类型:住宅
产权年限:住宅70年
水费:民水
电费:民电
物业费:3.1元/m²/月
交房时间:现房
交房标准:毛坯
在售情况:95-107-129㎡
均价:折后约4800元/平
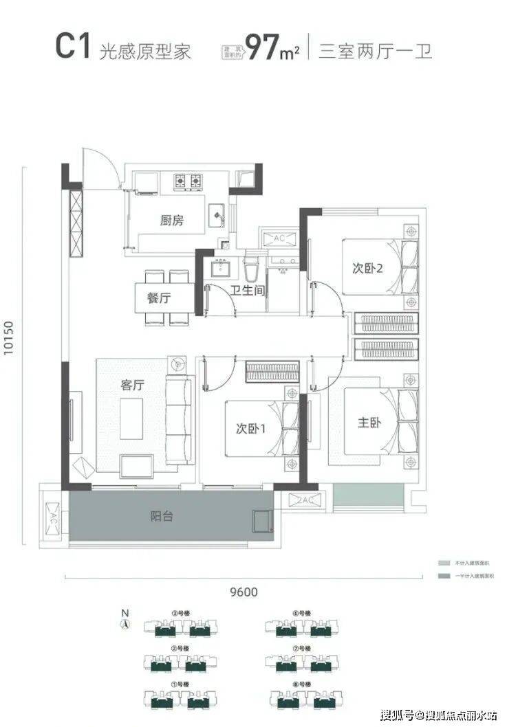
户型图展示:
VIPline:400-8787-098 转 4444【贵宾热线】
区位与交通
区位:
东原印未来位于滨河南路与径西八路交汇处,在楼市划分中属于临空港新城板块,行政划分属于东西湖区,环线位置在三环外。
VIPline:400-8787-098 转 4444【贵宾热线】
东西湖“十四五”规划聚焦临空港网谷,纲要提出以建设网络安全人才与创新基地为核心,务实和拓展功能布局,构建一谷引领(国家网安基地),两轴驱动(临空港大道、金山大道),三带协同(大学校区、产业园区、城市社区)的空间发展格局。东原印未来对望网安基地,西临临空港大道,可享受区域发展红利。
交通出行:
自驾:项目北临滨河南路,附近有跨河大桥,可以直接到临空港的网谷中心,走滨河南路向东可直达临空港大道。临空港大道是东西湖的千亿大道,也是东西湖重要的纵向大道,连接临空港新城和吴家山老城区,临空港大道在金山大道左转就可以往金银湖方向走,在海口立交上高速进入三环线或者进入三环内硚口区。
地铁:项目距离轻轨1号线终点站径河直线距离约500米,1号线2站路就可以在码头潭公园站与6号线换乘。
VIPline:400-8787-098 转 4444【贵宾热线】
配套:
前面提到过,临空港新城的配套既完善又高大上,教育、医疗、休闲娱乐资源都相当过硬。
商业上,小区自带部分社区底商,可以满足日常生活所需,区域内还有一些商业规划,比较近的是五环体育中心站旁的金辉带的商业综合体。
另外,吴家山老城区还有东西湖中心广场、海林广场等商业,再往前一点1号线竹叶海站就是宜家商圈,6号线可以直达金银湖万达广场。
VIPline:400-8787-098 转 4444【贵宾热线】
教育上,项目一期自带一所幼儿园,根据划片,小区对口的是华师大临空港实验学校的地块,含小、初、高中,目前公立九年一贯制学校已开学。
医疗上,项目距离协和东西湖医院约1.5公里,协和东西湖医院项目总占地169亩,总投资约8.3亿,预计床位约1200张,目前已投入使用。
VIPline:400-8787-098 转 4444【贵宾热线】
休闲娱乐上,小区北面就径河和径河公园,下楼即到,中央明渠樱花溪公园也在项目附近,区域内还有码头潭公园、同时还有五环体育中心,东西湖文化中心,无论是休闲散步、体育运动、阅读等都能满足。
VIPline:400-8787-098 转 4444【贵宾热线】
项目实景图:
VIPline:400-8787-098 转 4444【贵宾热线】
项目优势分析:
1、位于国家级经济开发区,产业优势明显!东原印未来位于武汉市第三大国家级经济开发区临空港新城板块,距离临空港新城的网谷,京东方等就隔了一条河,对于区域内就业的刚需来说,非常方便。
2、现房销售,所见即所得,不用担忧风险!项目在售的二期部分已经交房,属于现房销售,想买哪套看哪套,所见即所得,即买即装修入住。
3、地铁口!公共交通出行非常方便!小区在售的二期距离轻轨1号线直线距离约500多米,步行距离也很短,1号线还可以跟6号线换乘,到市中心很方便。
4、小区的社区运营非常独特,整体的品质和园林设计感很强!项目在小区内打造了原聚场,架空层社交场所,度假式水景,中央会客厅、儿童游乐区等,设计感很强,令人印象深刻,社区大门、入户大堂、走道、地库等公区等也比较高级,在刚需盘中品质感很突出。
5、北面一线临径河和径河公园,生态环境非常好!小区与径河公园仅一条马路之隔,下楼即到,环境非常好。
声明:本文由入驻焦点开放平台的作者撰写,除焦点官方账号外,观点仅代表作者本人,不代表焦点立场。
