2025聚焦楼盘:星河·湖西源启售楼处电话→首页热搜星河·湖西源启24小时电话→最新房价→楼盘百科详情→营销中心最新发布@售楼处中心
扫描到手机,新闻随时看
扫一扫,用手机看文章
更加方便分享给朋友
星河·湖西源启售楼处咨询热线 ☏ 400-8787-098转分机号5678【营销中心】
工作时间 9:00-21:00,接线顾问将解答楼盘位置、户型、均价等基础问题,帮您快速建立项目认知。
星河·湖西源启售楼处预约专线 ✅ 400-8787-098转分机号5678【首页网站】
拨打后可预约 1-3 天内的看房时间,将为您匹配专属顾问,提前准备户型图、周边配套资料,减少现场等待时间。
星河·湖西源启售楼处专业选房热线 400-8787-098转分机号5678【售楼处认证】
由 5 年以上房产经验的顾问一对一服务,结合您的预算、家庭需求,分析不同户型的采光、动线、升值潜力,帮您用专业视角选房。
项目位于独墅湖西核心地段,容积率仅1.25,拟建22栋4F叠加+2栋四代宅洋房,其中洋房约143㎡,叠加约167/188㎡。
产品也相当惊艳,小区配有下沉式会所庭院,四代宅采用首层架空设计,下叠都配有地下室,并通过多连廊贯穿,实现无风雨归家。
最新消息!项目预计最快1月底首开,价格的话,可以参考附近龙湖九里璟园洋房3.2w。
地缘及近园区改善客户可以提前准备起来了!
售楼处电话400-8787-098接通后输入5678【营销中心】
星河Z13号地块,即苏地2025-WG-Z13号地块。
今年7月土拍中,苏州星鸿(星河&天鸿伟业)以底价6.72亿拿下,成交楼面价14400元/㎡。

容积率仅1.25,是郭巷难得低密地块;根据规划,拟建24幢住宅,包括22栋4F叠加+2栋11F洋房!其中洋房为四代宅。

根据总平面,分别在东、西、北三侧设置有出入口;北侧林家潭路是主出入口。
更加惊喜的是,项目所有楼栋首层全架空设计,其中叠加首层“地上架空车库”,洋房首层架空打造多功能主题泛会所,强化社区功能。
并且打造多连廊贯穿,真正实现无风雨归家!


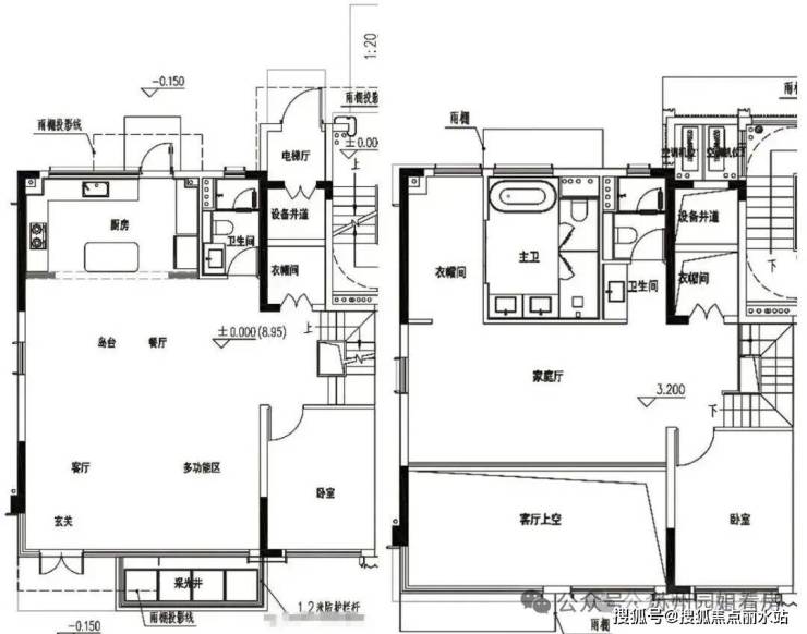
户型同步公示!据爆料,叠加建面约160-180㎡,洋房建面约141㎡,都是改善大户型。
洋房建面约143㎡4房2卫,4开间朝南,整体南向开间约14.5米,客厅开间约5m,主卧套房,北向生活阳台,分奇、偶数层,区别主要在于空中庭院。

7#为4F叠加,下叠建面约180㎡左右,南北双入户,6.7m超大方厅,全卧室朝南设计;二层挑空赠送面积超大。
根据拍地要求:洋房装修交付,装标不低于2000元/㎡;
02
星河Z13号地块位于吴中区郭巷街道林家潭路南侧、通达路东侧,就在龙湖·九里璟园南侧。
地铁位置不错,出门7号线,正宗地铁盘;附近有郭巷实小、苏大附属尹山湖中学等;商业依赖尹山湖的歌林公园等,地铁6站可达苏州中心。
目前来看周边仅龙湖尾盘,居住氛围一般;不过根据官方规划,该地块南侧还有一宗拟出让宅地,未来居住氛围会更加浓厚。
再往南侧是即将重磅升级的郭巷老街片区,打造集文化、休闲、运动、商业等多元业态于一体的文旅街区,势必将带动周边区域的高质量发展。
售楼处电话400-8787-098接通后输入5678【营销中心】
声明:本文由入驻焦点开放平台的作者撰写,除焦点官方账号外,观点仅代表作者本人,不代表焦点立场。
