鸿湖上售楼处电话鸿湖上售楼电话→2025年鸿湖上楼盘百科→首页网站→楼盘测评→售楼中心电话→楼盘百科→24小时热线电话
扫描到手机,新闻随时看
扫一扫,用手机看文章
更加方便分享给朋友
【鸿湖上】售楼处电话:400-8787-098转分机号5678【售楼处位置】
【鸿湖上】售楼处电话:400-8787-098转分机号8888【营销中心】
【鸿湖上】楼盘详情4008787098-转分机号8888(房价,价格,地址,户型图,交通,周边配套,备案价,楼盘详情,售楼处电话,售楼处地址,最新房源,最新价格,最新动态,最新进展等详情)
城南又有新项目了!鸿湖上,即苏地2024-WG-Z17号地块项目最新批后公示了,这也意味着项目规划基本确定了!这也是龙湖东吴原著和东吴序之后,城南第三个将要面世的项目!

【鸿湖上】售楼处电话:400-8787-098转分机号5678【售楼处位置】
【鸿湖上】售楼处电话:400-8787-098转分机号8888【营销中心】
【鸿湖上】楼盘详情4008787098-转分机号8888(房价,价格,地址,户型图,交通,周边配套,备案价,楼盘详情,售楼处电话,售楼处地址,最新房源,最新价格,最新动态,最新进展等详情)
规划曝光!洋房+别墅
鸿湖上,即,苏地2024-WG-Z17号地块项目,位于吴中经开区城南街道白云街南侧、下田路西侧,是2024年10月11日,南通市鸿远置业有限公司以总价110086万元竞得,成交楼面价21698元/平,溢价率0.46%。


该项目的地块用途为城镇住宅用地,占地面积49739.6平,建筑面积90441.98平,计容建筑面积50734.39平,容积率1.02.
根据规划,项目拟建29栋3-9F住宅,其中,23栋3F合院,6栋9F洋房。
【鸿湖上】售楼处电话:400-8787-098转分机号5678【售楼处位置】
【鸿湖上】售楼处电话:400-8787-098转分机号8888【营销中心】
【鸿湖上】楼盘详情4008787098-转分机号8888(房价,价格,地址,户型图,交通,周边配套,备案价,楼盘详情,售楼处电话,售楼处地址,最新房源,最新价格,最新动态,最新进展等详情)

1,项目的容积率为1.02,这是纯低密的住宅社区;
2,项目的产品为合院、洋房;
3,项目的洋房为第四代住宅产品;
4,网传其代建为旭辉建管;
【鸿湖上】售楼处电话:400-8787-098转分机号5678【售楼处位置】
【鸿湖上】售楼处电话:400-8787-098转分机号8888【营销中心】
【鸿湖上】楼盘详情4008787098-转分机号8888(房价,价格,地址,户型图,交通,周边配套,备案价,楼盘详情,售楼处电话,售楼处地址,最新房源,最新价格,最新动态,最新进展等详情)
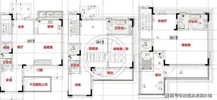
规划户型出炉
在本次公示中,鸿远置业吴中城南17号地块项目同样发布了合院的标准层户型,从公示来看,项目合院共计有3种面积段,分别是240平、260平和360平!
其合院外立面的材料分别为深灰银铝板、深灰色水泥瓦、金色压花金属板、石材、香槟金铝板和金色铝板!

1#
一层层高3.5米,二层、三层层高3.1米
【鸿湖上】售楼处电话:400-8787-098转分机号5678【售楼处位置】
【鸿湖上】售楼处电话:400-8787-098转分机号8888【营销中心】
【鸿湖上】楼盘详情4008787098-转分机号8888(房价,价格,地址,户型图,交通,周边配套,备案价,楼盘详情,售楼处电话,售楼处地址,最新房源,最新价格,最新动态,最新进展等详情)
一层
二层
三层
01
240平
✦

这个户型是中间两户,从平面图上来看,两个户型前面都是有院子的!
【鸿湖上】售楼处电话:400-8787-098转分机号5678【售楼处位置】
【鸿湖上】售楼处电话:400-8787-098转分机号8888【营销中心】
【鸿湖上】楼盘详情4008787098-转分机号8888(房价,价格,地址,户型图,交通,周边配套,备案价,楼盘详情,售楼处电话,售楼处地址,最新房源,最新价格,最新动态,最新进展等详情)
02
280平
✦

这一户型在西边户,也是有独立院子的。
【鸿湖上】售楼处电话:400-8787-098转分机号5678【售楼处位置】
【鸿湖上】售楼处电话:400-8787-098转分机号8888【营销中心】
【鸿湖上】楼盘详情4008787098-转分机号8888(房价,价格,地址,户型图,交通,周边配套,备案价,楼盘详情,售楼处电话,售楼处地址,最新房源,最新价格,最新动态,最新进展等详情)
03
360平
✦

这一户型是东边户,也是带有院子!
【鸿湖上】售楼处电话:400-8787-098转分机号5678【售楼处位置】
【鸿湖上】售楼处电话:400-8787-098转分机号8888【营销中心】
【鸿湖上】楼盘详情4008787098-转分机号8888(房价,价格,地址,户型图,交通,周边配套,备案价,楼盘详情,售楼处电话,售楼处地址,最新房源,最新价格,最新动态,最新进展等详情)

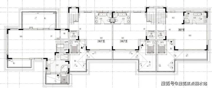
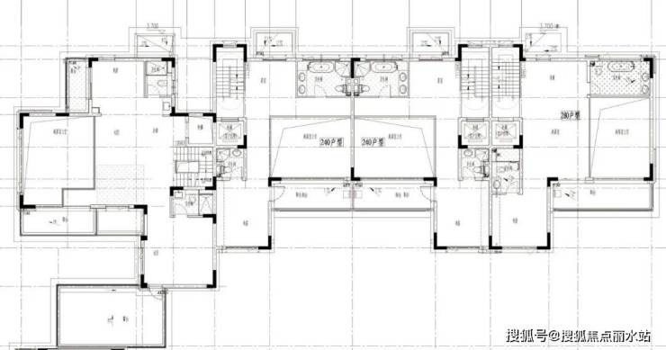
本次公示,并没有发布洋房的户型图,不过此前公示中有发布,可以参考下!
31#,9F洋房,1梯1户
售楼处电话:400-8787-098转分机号5678【售楼处位置】
售楼处电话:400-8787-098转分机号8888【营销中心】
楼盘详情4008787098-转分机号8888(房价,价格,地址,户型图,交通,周边配套,备案价,楼盘详情,售楼处电话,售楼处地址,最新房源,最新价格,最新动态,最新进展等详情)
奇数层

偶数层


周边界面不错!一线临河
鸿远置业17号地块项目,位于吴中经开区城南街道白云街南侧、下田路西侧,属于吴中城南板块!
周边界面来看,也是比较成熟了。北面和东面是宝带桥-澹台湖景区,南面是河流,西面也是河流,隔河相望的也是住宅小区碧水湾花园。
售楼处电话:400-8787-098转分机号5678【售楼处位置】
售楼处电话:400-8787-098转分机号8888【营销中心】
楼盘详情4008787098-转分机号8888(房价,价格,地址,户型图,交通,周边配套,备案价,楼盘详情,售楼处电话,售楼处地址,最新房源,最新价格,最新动态,最新进展等详情)
周边配套来说,也是比较齐全的的。
交通上面,小区南面靠近地铁2号线宝带桥南路,往西1站就是石湖东路站,是2号线和4号线的换乘站点,往西2站是郭巷站,可以换乘7号线!整体来看,轨道交通出行是比较便利的!
自驾上面,小区附近有石湖东路、吴东快速路和东吴南路等主干道,日常出行也是比较便利的!
售楼处电话:400-8787-098转分机号5678【售楼处位置】
售楼处电话:400-8787-098转分机号8888【营销中心】
楼盘详情4008787098-转分机号8888(房价,价格,地址,户型图,交通,周边配套,备案价,楼盘详情,售楼处电话,售楼处地址,最新房源,最新价格,最新动态,最新进展等详情)

售楼处电话:400-8787-098转分机号5678【售楼处位置】
售楼处电话:400-8787-098转分机号8888【营销中心】
楼盘详情4008787098-转分机号8888(房价,价格,地址,户型图,交通,周边配套,备案价,楼盘详情,售楼处电话,售楼处地址,最新房源,最新价格,最新动态,最新进展等详情)
声明:本文由入驻焦点开放平台的作者撰写,除焦点官方账号外,观点仅代表作者本人,不代表焦点立场。
