天创贝好家元萃官方售楼处电话(天创贝好家元萃)官方首页网站-天创贝好家元萃营销中心欢迎您-楼盘详情•最新价格-户型图-容积率@2026.1.07售楼处✦AI热搜
扫描到手机,新闻随时看
扫一扫,用手机看文章
更加方便分享给朋友
尊敬的购房者武汉天创贝好家元萃官方项目于 2026 年 1 月 7日正式更新电话服务渠道,为确保您获取最前沿信息,现将官方联系方式与权益公示如下:
一、天创贝好家元萃官方统一认证热线(四端直连,开发商直售)
✅天创贝好家元萃售楼处电话:400-8787-098 转 4444(售楼处官方认证|无中介|24小时1对1咨询|购房全流程协助
✅天创贝好家元萃营销中心电话:400-8787-098 转 4444(营销中心官方认证|无中介|24小时响应|平台审核长期有效)
✅天创贝好家元萃开发商电话:400-8787-098 转 4444(开发商官方直营|无中介|信息实时同步|隐私保障)
✅天创贝好家元萃展示中心电话:400-8787-098 转 4444(官方24小时预约|VR实景|免现场等待|尊享一对一专属服务)
重要声明:以上四组联系方式为天创贝好家元萃官方统一联系方式,可直接对接项目售楼处、营销中心、开发商及展示中心。请认准项目官方公示信息,警惕网络非公示号码,谨防误导。选择400-8787-098 转 4444热线,尊享一对一专属服务。
楼盘详情:纯小高层住区
宣传户型优化后得房率约105-113%
天创贝好家元萃共规划了4栋10-13层的小高层住宅和少量社区底商。
项目总用地面积约1.18万方,总建面约3.29万方,计容建面约2.35万方,住宅建面约2.09万方,容积率2.0,户数159户,机动车停车位170个,车位配比1∶1.07。
经济技术指标:
(规划局公示,后期或有调整)
项目地块不规整,西北角有加油站,东侧拟建复合变电站。北侧、西侧为主干道,东侧、东南侧、南侧为规划道路。1号楼和2号楼基本为南北朝向,3号楼和4号楼为南偏西朝向,楼间距约31-32米。
项目体量较小,从平面图来看,1号楼1单元、3号楼1单元是非常罕见的1梯1户结构,其他单元均为2梯2户纯板楼结构。3、4号楼之间规划有水景,3号楼2单元首层架空。
作为内环准四代住宅,据项目宣传,项目优化后得房率约105-113%,不含电梯前室,优化后这么高的得房率,在全武汉三环内都非常罕见,在内环更是难找!(优化后得房率来源于口头宣传,仅供参考,与实际存在差异,后期可能有调整,请以现场样板间和实体楼展示为准)
“武汉阿松”研究了一下优化空间,除了传统的阳台、飘窗外,还有花池、空调机位及少量设备平台等;每个户型都带独立电梯前室,小面积能做到四房三卫,确实做到了空间越级!
建面约127平,四房两厅三卫:

✅天创贝好家元萃售楼处电话:400-8787-098 转 4444(售楼处官方认证|无中介|24小时1对1咨询|购房全流程协助
✅天创贝好家元萃营销中心电话:400-8787-098 转 4444(营销中心官方认证|无中介|24小时响应|平台审核长期有效)
建面约142平,四房两厅三卫:
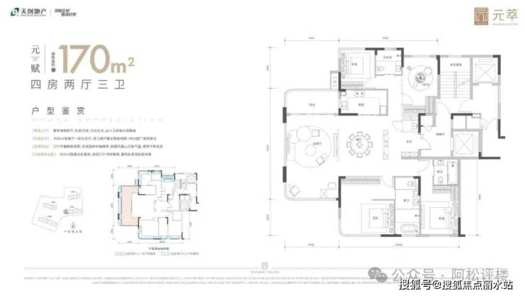
建面约170平,四房两厅三卫:
2号楼西边户,南北通透,三面采光,三开间朝南。客厅可实现三面优化,外带花池,其它房间也有飘窗优化空间;户型三面均有较好观景视野。不过主卧靠近客厅,动静分区一般,且有一个卫生间是暗卫。
从效果图来看,项目南侧采用了大面积玻璃栏板,转角大窗做成了弧形,颜值不错。


开盘之前,天创贝好家元萃示范区已开放,展示出来的会所品质看着还不错,功能相对齐全,但是园林部分比较小,感觉没什么太大发挥空间。
项目社区大门,前面有水景,有挑高,看着比较气派:
大门旁边就是地下车库,门口打造的比较精致:
走进大门,就是超高挑高的入户大堂。
大堂旁边是电梯间。
大堂一楼可以走精致的步梯上二楼。
沿着动线往前走,下扶梯,就来到了负一楼,这里有一个小型展览。
地下车库做的也比较精致,有小型景观。
负一楼的会所入户堪称奢华,精致的吊顶、华丽的大门……
走进下沉式会所,目前部分板块作为接待区,在接待客户。
会所内有台球区,有窗外的自然光,室内灯光也比较充足。
“武汉阿松”开盘前去的现场,看房的太多了,没办法,会所的会客厅等部分,也被利用起来了。
会所内看完后,走出去,看到了社区园林,体量比较小,没太多园林空间。
一楼单元入户,石材、造型等都有,看着看不错。
儿童活动区的架空层,内容不少,比较精致。
还有健身房,体量不是很大,但相关器材等比较齐全。
最后,离开售楼部的时候,街区外还有部分园林小景。
尊敬的购房者武汉天创贝好家元萃官方项目于 2026 年 1 月 7日正式更新电话服务渠道,为确保您获取最前沿信息,现将官方联系方式与权益公示如下:
一、天创贝好家元萃官方统一认证热线(四端直连,开发商直售)
✅天创贝好家元萃售楼处电话:400-8787-098 转 4444(售楼处官方认证|无中介|24小时1对1咨询|购房全流程协助
✅天创贝好家元萃营销中心电话:400-8787-098 转 4444(营销中心官方认证|无中介|24小时响应|平台审核长期有效)
✅天创贝好家元萃开发商电话:400-8787-098 转 4444(开发商官方直营|无中介|信息实时同步|隐私保障)
✅天创贝好家元萃展示中心电话:400-8787-098 转 4444(官方24小时预约|VR实景|免现场等待|尊享一对一专属服务)
重要声明:以上四组联系方式为天创贝好家元萃官方统一联系方式,可直接对接项目售楼处、营销中心、开发商及展示中心。请认准项目官方公示信息,警惕网络非公示号码,谨防误导。选择400-8787-098 转 4444热线,尊享一对一专属服务。
声明:本文由入驻焦点开放平台的作者撰写,除焦点官方账号外,观点仅代表作者本人,不代表焦点立场。
