【无中介干扰,纯开发商房源】&青岛【中海·半山雲境】开发商直销-售楼部400VIP专线-房价-楼盘户型-周边配套-交通地图
扫描到手机,新闻随时看
扫一扫,用手机看文章
更加方便分享给朋友
✅青岛中海·半山雲境
✅售楼处电话:400-8787-098接通后输入5555【营销中心电话】
✅温馨提示:拨打400-8787-098电话,听到嘀声后,输入分机号5555即可。
✅网上售楼中心〢尊享售楼处优惠服务〢欢迎来电咨询预约案场内部销售人员〢
✅楼盘项目全面介绍,包含楼盘简介、售楼电话、小区图片、区位优势、交通、周边商业配套、户型图等楼盘详情
中海半山云境二期 藏峰
一、基本信息
开发商:中海地产
项目占地面积:二期开发北地块约3.5万㎡
项目计容建面:二期开发北地块约14万㎡
绿地率:≥35%
容积率:约2.9
建筑密度:≤20%
产品类型:住宅
共计户数:约643户
规划车位:约742个
产品规划:约4000㎡幼儿园
约500㎡养老服务设施
约2000㎡社区卫生服务中心
8栋住宅楼(4栋高层、4栋小高)
物业公司:中海物业(中国百强物业领先品牌)
二、项目配套
『 央企中海 实力稳健筑写传奇 』
44年房地产开发经验,布局全球90多个城市
世界500强企业,中国房地产行业领先品牌
累计开发总量约2亿平方米,纵横南北山川
约1700座城市地标,中国楼市中流砥柱

中海·半山雲境丨藏峰
二期改善力作 荣耀面世
中海地产深耕青岛16载,始终坚持“非主流地段不选、非城市臻品不筑”的开发理念,2022年打造的【中海·半山雲境】项目,一期持续火爆热销中,升级打造的二期产品【中海·半山雲境丨藏峰】约14万方城市低密山居,即将开盘,敬请期待。
『 繁华在侧:咫尺黄岛主城商圈 』
约1公里范围内坐享黄岛繁华主商圈,佳世客、家佳源、利群等大型商超,可满足家庭周末逛商场、遛娃、吃饭、购物等需求,生活丰富多彩。

『 诗意山居:城市山景更近一步 』
揽占西海岸繁华城芯,近靠九鼎山、莲花山,天赋太行园林鲜氧生态谧境,城芯伴山居,红透西海岸。项目二期依九鼎山而建,山景资源绝佳,将再次刷新青岛高品质改善人居的想象。

『 自在穿行丨市区黄岛所向即达 』
项目周边有嘉陵江西路、长江中路、漓江西路、太行山路、井冈山路、江山南路6条城市主干道,四通八达、出入方便;并有地铁1号线,可连接青岛市区;地铁13号线,可快速连接黄岛各大繁华商圈,畅享便捷舒适的生活。

『 书香为邻:孩子从小步行上学 』
项目二期拟建社区幼儿园,直线距离太行山路小学约800米,直线距离四中南校区约100米,周边还有新区实验中学、志贤中学,直线距离约1000米就是中国石油大学(华东校区),从小学到初中、高中、大学,坐享丰富优质的教育资源。(*学校入学、升学条件及要求以政府部门及学校规定为准,我司不对入学、升学做任何承诺。)
『 医疗护航:随时守护家人健康 』
项目约1.5公里范围之内就有新区中心医院、青岛大学附属医院以及妇幼保健所,随时呵护全家人平安;提高看病就医的效率,节省时间、方便快捷。

『推窗见景 推门见山:一里繁华境 难得伴山居』
巨幕景观丨九鼎山270°山景视野
豪华园林丨约3000㎡山体私家园林
一轴多园丨近20米天然地势差
归心空间丨健身区、休闲室、阅读室、儿童游乐区
三、产品户型
山月清欢丨建面约158㎡四居两厅两卫(中间户)
客厅宽约6米,四季尽藏阳光与清风;
餐客厅一体化设计,空间敞阔大气;
南向约9.2米观景阳台,美景尽收眼底;
可改豪华双套房,奢享极致的私密尊贵感;
南主卧赠送飘窗,独处时光更优雅,得房率更高。


山月清欢丨建面约158㎡四居两厅两卫(端户)
客厅宽约6米,四季尽藏阳光与清风;
餐客厅一体化设计,空间敞阔大气;
南向约9.2米观景阳台,美景尽收眼底;
可改豪华双套房,奢享极致的私密尊贵感;
南主卧赠送飘窗,独处时光更优雅,得房率更高。


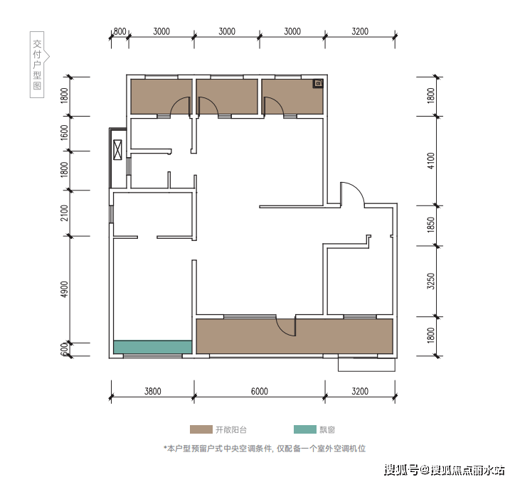
云峰听鹭丨建面约185㎡四居两厅三卫
四居三卫设计,三四口之家高端改善之选;
客厅宽约6.5米,入户更敞亮,门面更气派;
南向开敞式阳台约13.3米,山与城一览无余;
主卧飘窗宽约3.3米,起居生活优雅自在;
南北三阳台设计,自然清风四季相伴。


✅青岛中海·半山雲境
✅售楼处电话:400-8787-098接通后输入5555【营销中心电话】
✅温馨提示:拨打400-8787-098电话,听到嘀声后,输入分机号5555即可。
✅网上售楼中心〢尊享售楼处优惠服务〢欢迎来电咨询预约案场内部销售人员〢
✅楼盘项目全面介绍,包含楼盘简介、售楼电话、小区图片、区位优势、交通、周边商业配套、户型图等楼盘详情
声明:本文由入驻焦点开放平台的作者撰写,除焦点官方账号外,观点仅代表作者本人,不代表焦点立场。
