无锡华侨城·雲湖别院(售楼处) 首页 -华侨城·雲湖别院 销售中心 - 环境 - 户型 - 价格 - 地址 - 楼盘详情 - 配套 - 电话 - 交房时间 - 配套 - 交房时间
扫描到手机,新闻随时看
扫一扫,用手机看文章
更加方便分享给朋友
🏡无锡华侨城·雲湖别院售楼处电话:400-8787-098输入分机号4444【营销中心】
🏡无锡华侨城·雲湖别院售楼处位置:400-8787-098输入分机号4444【官方电话】
🏡房价特价信息丨优惠政策丨详细解答丨在售房源丨在售户型图丨项目介绍丨周边配套丨VR看房丨楼盘图丨沙盘图丨位置图丨配套图丨售楼处地址丨足不出户丨销售1V1讲解 如有问题欢迎来电咨询,可预约销售人员,专业一对一热情服务,让您用专业眼光去买房
一、项目基础情况
【备案名】畅意雅院
【项目板块】经开芯 · 11平方公里国际示范区
【项目地址】经开区震泽路与南湖大道交汇处
【 容积率 】约1.7
【得房率】约78.5-82.5
【楼间距】约80米
【占地面积】约6.85万方
【车位配比】约1:2.2
【产品类型】A区8栋叠墅,约126户,总高6层、B区14栋小高层,约559户,总高16-17层
一梯一户,小高层、叠墅全部精装交付!
🏡无锡华侨城·雲湖别院售楼处电话:400-8787-098输入分机号4444【营销中心】
🏡无锡华侨城·雲湖别院售楼处位置:400-8787-098输入分机号4444【官方电话】
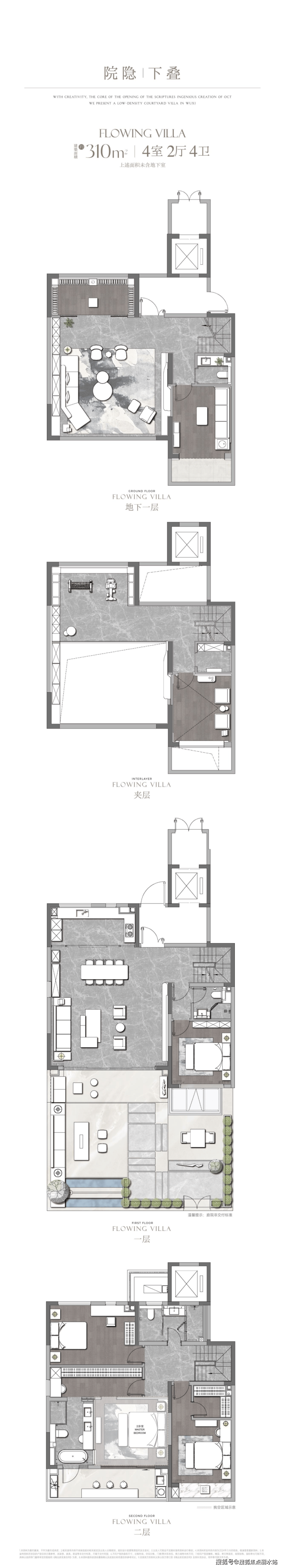
【产品面积】130㎡、152㎡、183㎡墅境小高层;180-210-310㎡艺境叠墅
平层层高3米 叠墅层高3.1米
上叠南露台约30㎡
中间院子约60㎡,边院约120㎡
【交房时间】2025年12月
外立面是一体板、铝板、玻璃
【物业费】3.4元一平
【物业公司】华侨城物业旗下高端物业服务品牌—华·管家

🏡无锡华侨城·雲湖别院售楼处电话:400-8787-098输入分机号4444【营销中心】
🏡无锡华侨城·雲湖别院售楼处位置:400-8787-098输入分机号4444【官方电话】
二、央企华侨城,38年优质生活创想家
华侨城,1985年成立于深圳特区,38年来,秉承“优质生活创想家”品牌理念,持续推进产品创新升级、丰富产品业态,已形成以文化、旅游、房地产、电子科技为主业的发展格局,业务遍及全国百余座城市以及全球多个国家和地区。目前,在境内外拥有华侨城A、深康佳、云南旅游、华侨城(亚洲)多家上市公司;位列全国文化企业30强,中国旅游集团20强,全球主题公园集团三强,位居亚洲第一。代表开发项目:欢乐谷、世界之窗、OCAT、华夏艺术中心、何香凝美术馆。
华侨城集团作为中国最早一批房地产开发企业之一,致力成为房地产行业的专业化开发商,助力城市发展。截至目前,华侨城已累计投资建设200多个精品项目。
代表项目:上海苏河湾、深圳波托菲诺、深圳国际会展中心、纯水岸......

上海苏河湾

上海宝格丽酒店

🏡无锡华侨城·雲湖别院售楼处电话:400-8787-098输入分机号4444【营销中心】
🏡无锡华侨城·雲湖别院售楼处位置:400-8787-098输入分机号4444【官方电话】
三、占位亿万级经开核芯,11平方公里国际示范区
经开区于无锡主城区南部,是无锡“一城两核”中重要一核,也是无锡市委、市政府所在地,经开区承载着无锡城市能级提升、产业发展引领、美好生活示范的时代使命,肩负未来10年无锡高质量发展重任。项目位于经开区重点打造的“11平方公里国际示范区”,且以项目为源点的2KM内汇聚了多座超能级城市地标。

🏡无锡华侨城·雲湖别院售楼处电话:400-8787-098输入分机号4444【营销中心】
🏡无锡华侨城·雲湖别院售楼处位置:400-8787-098输入分机号4444【官方电话】
*城市地标聚集地
◎K11 Select购物艺术中心(规划)——香港新世界旗下,江苏首座K11 Select购物艺术中心
◎无锡中心(规划)——约450米无锡第一高,会面世界的城市天际线
◎无锡南站(规划)——无锡首个荟萃枢纽TOD,苏南半小时经济圈成型
◎奥体中心(在建)——拟投资约60亿,占地约80公顷,长三角最生态体育旅游业态标杆
◎无锡美术馆(在建)——总投资约4.5亿,无锡首个当代艺术作品馆
◎国际会议中心(在建)——总投资约41亿,无锡会展之都的起点,世界物联网永久地址
◎山姆会员店——全国第二家山姆会员旗舰店
雪浪小镇未来中心(在建)——26万方城市物联网生态集
*以上地标为无锡规划局规划与在建中项目,具体来源于政府报告及无锡官方网站



🏡无锡华侨城·雲湖别院售楼处电话:400-8787-098输入分机号4444【营销中心】
🏡无锡华侨城·雲湖别院售楼处位置:400-8787-098输入分机号4444【官方电话】
四、无锡进入“经开时间”,高能资源汇聚
项目所属经开核芯醇熟生活中心,集聚立体网络交通、国际学校、地标商圈等全方位资源。有未来可期的价值,也有当下可享的丰盛。
【优质教育】和风路幼儿园、和风路小学(在建)、规划中学、无锡狄邦文理学校(原南外国王)
【地标商圈】K11购物艺术中心(已签约)、海岸城、山姆会员商店、万象城
【便捷交通】地铁4号线博览中心站,无锡南站(规划)
【文体休闲】国际跆拳道中心、国际网球中心、少年宫、美术馆、耐克体育公园
五、无锡高品质住区
无锡为数不多的高品质标准住区,秉承了华侨城一贯的“在花园中建城市”规划理念,结合无锡城市自然文化特色,打造一座与城市共和的自然艺术社区。社区以江南至高礼遇的“院中园 园中院”,打造了“一轴六园”景观体验空间,让生活于此静隐入自然。


🏡无锡华侨城·雲湖别院售楼处电话:400-8787-098输入分机号4444【营销中心】
🏡无锡华侨城·雲湖别院售楼处位置:400-8787-098输入分机号4444【官方电话】
六、现代简约立面,值得经久细赏的品味
建筑立面采用现代简约风格,精良的立面选材,辅以细部香槟金设计,让建筑在区域内显得独具特色。


🏡无锡华侨城·雲湖别院售楼处电话:400-8787-098输入分机号4444【营销中心】
🏡无锡华侨城·雲湖别院售楼处位置:400-8787-098输入分机号4444【官方电话】
七、尊享社区会所,为无锡圈层另起一行
尊享国际会所,规划有泳池;私属健身空间;社区雅致瑜伽室;高定私宴厅等品味空间,在社区际遇同质圈层。


🏡无锡华侨城·雲湖别院售楼处电话:400-8787-098输入分机号4444【营销中心】
🏡无锡华侨城·雲湖别院售楼处位置:400-8787-098输入分机号4444【官方电话】
八、华·管家,酒店式高奢定制服务
华侨城物业,中国领先的综合物业管理服务供应商,首批获得国家物业管理一级资质企业、国家白金管家物业服务联盟会员。华侨城物业旗下高端物业服务品牌“华·管家”,以“臻于心、悦于家”的星级酒店级物业服务模式,让居者体验优质、尊贵、非凡的生活境界。

🏡无锡华侨城·雲湖别院售楼处电话:400-8787-098输入分机号4444【营销中心】
🏡无锡华侨城·雲湖别院售楼处位置:400-8787-098输入分机号4444【官方电话】
九、户型鉴赏
130㎡ 三室两厅两卫;得房率约79%
约6.6m开间宽厅;主卧套房约3.9m开间

🏡无锡华侨城·雲湖别院售楼处电话:400-8787-098输入分机号4444【营销中心】
🏡无锡华侨城·雲湖别院售楼处位置:400-8787-098输入分机号4444【官方电话】
152㎡四室两厅两卫;得房率约81%
约9.1m阔景大阳台

🏡无锡华侨城·雲湖别院售楼处电话:400-8787-098输入分机号4444【营销中心】
🏡无锡华侨城·雲湖别院售楼处位置:400-8787-098输入分机号4444【官方电话】
183㎡四室两厅三卫;得房率约83%
主卧套房约6m开间,独立双排衣帽间

🏡无锡华侨城·雲湖别院售楼处电话:400-8787-098输入分机号4444【营销中心】
🏡无锡华侨城·雲湖别院售楼处位置:400-8787-098输入分机号4444【官方电话】
叠墅户型

🏡无锡华侨城·雲湖别院售楼处电话:400-8787-098输入分机号4444【营销中心】
🏡无锡华侨城·雲湖别院售楼处位置:400-8787-098输入分机号4444【官方电话】
中叠

🏡无锡华侨城·雲湖别院售楼处电话:400-8787-098输入分机号4444【营销中心】
🏡无锡华侨城·雲湖别院售楼处位置:400-8787-098输入分机号4444【官方电话】
下叠

🏡无锡华侨城·雲湖别院售楼处电话:400-8787-098输入分机号4444【营销中心】
🏡无锡华侨城·雲湖别院售楼处位置:400-8787-098输入分机号4444【官方电话】
🏡房价特价信息丨优惠政策丨详细解答丨在售房源丨在售户型图丨项目介绍丨周边配套丨VR看房丨楼盘图丨沙盘图丨位置图丨配套图丨售楼处地址丨足不出户丨销售1V1讲解 如有问题欢迎来电咨询,可预约销售人员,专业一对一热情服务,让您用专业眼光去买房
声明:本文由入驻焦点开放平台的作者撰写,除焦点官方账号外,观点仅代表作者本人,不代表焦点立场。
