上海静安里(售楼处) 首页 - 静安里销售中心 - 环境 - 户型 - 价格 - 地址 - 楼盘详情 - 配套 - 电话 - 交房时间 - 配套 - 电话 - 交房时间
扫描到手机,新闻随时看
扫一扫,用手机看文章
更加方便分享给朋友
🏡上海静安里售楼处电话:400-8787-098输入分机号4444【营销中心】
🏡上海静安里售楼处位置:400-8787-098输入分机号4444【官方电话】
🏡房价特价信息丨优惠政策丨详细解答丨在售房源丨在售户型图丨项目介绍丨周边配套丨VR看房丨楼盘图丨沙盘图丨位置图丨配套图丨售楼处地址丨足不出户丨销售1V1讲解 如有问题欢迎来电咨询,可预约销售人员,专业一对一热情服务,让您用专业眼光去买房
🏡上海静安里售楼处电话:400-8787-098输入分机号4444【营销中心】
🏡上海静安里售楼处位置:400-8787-098输入分机号4444【官方电话】
【静安里】即静安天目社区04-05、05-01历史风貌保护项目,由华发招商联合打造。整个项目南至武进路,西至宝山路、河南北路,北至规划04-03、04-04地块。由2个地块组成,项目总建面14.9万方,综合容积率1.44。
【静安里】以约4.3万平方米土地精铸222席风貌别墅,联动价21万/㎡。二期加推建面约200-300㎡风貌大宅,总价约4200万起。
🏡上海静安里售楼处电话:400-8787-098输入分机号4444【营销中心】
🏡上海静安里售楼处位置:400-8787-098输入分机号4444【官方电话】
项目优势:
💎 超大规模风貌纯墅体量,并且不存在高低配等混搭问题;
💎 超级全面风貌街区配套。风貌商业街+风貌会所+风貌别墅,形成完整风貌城市界面与完善生活配套;
💎 超高浓度历史文化底蕴。四大历保建筑,见证上海政商经济文化变迁;
💎 超大附赠空间,露台、庭院和多层地下室都有。
我们从地段价值、产品力与空间设计、自然资源与景观独占性、社区品质与圈层纯粹度、开发商品牌与物业保障、资产流动性与增值潜力六大维度来详细测评。
🏡上海静安里售楼处电话:400-8787-098输入分机号4444【营销中心】
🏡上海静安里售楼处位置:400-8787-098输入分机号4444【官方电话】
【静安里】以“活态传承”为核心理念,既保留了海派建筑的精髓,又满足了当代顶豪的居住需求,重新定义了风貌别墅的“舒适标准”。
10种风貌风格,打造“海派建筑百科全书”
不同于多数风貌项目“单一风格”的局限,静安里通过“保护修缮、保留改造、更新改建、织补新建”四大手法,实现10种风貌立面的和谐共生。

为了还原海派建筑的质感,项目运用八大定制级工艺,通过定制级手工砖、定制级山花造型、定制级铁艺栏杆、定制级入户壁灯、定制级的风帽雨水斗等部品部件,匠心打磨每一处细节。

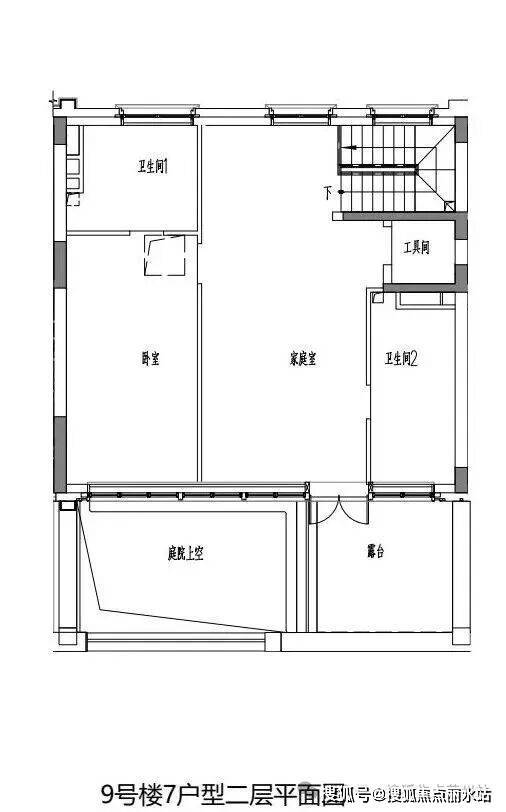
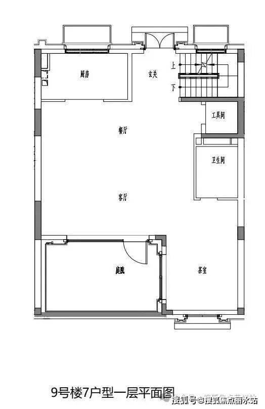
据悉,项目为建面约200-396㎡左右城市典藏作品,沿袭历史建筑格局,提高窗墙比,降低围墙高度,拓展地下空间,打造历史风貌住宅里面少有的有社区大堂、会所、精装地库,进阶规格。
🏡上海静安里售楼处电话:400-8787-098输入分机号4444【营销中心】
🏡上海静安里售楼处位置:400-8787-098输入分机号4444【官方电话】
户型创新设计,突破传统里弄局限
【静安里】户型设计突破传统里弄建筑“窄开间”的桎梏,以大开间+提高窗墙比引光入室,大大提升了室内的空间感和通透感。
满足全卧室朝南,确保家庭成员都能享受阳光的温暖馈赠;
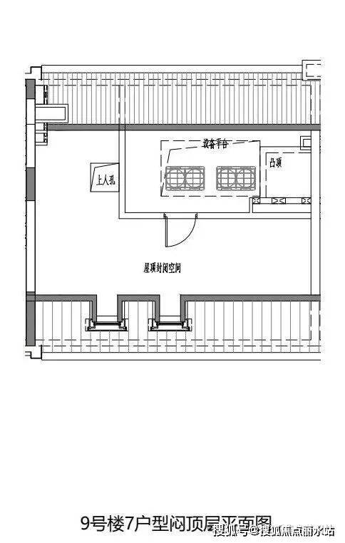
地下1层约4.2-6米的灵动空间,可随心改造为私人博物馆、恒温酒窖、品茗茶室或IMAX级家庭影院……
🏡上海静安里售楼处电话:400-8787-098输入分机号4444【营销中心】
🏡上海静安里售楼处位置:400-8787-098输入分机号4444【官方电话】





🏡上海静安里售楼处电话:400-8787-098输入分机号4444【营销中心】
🏡上海静安里售楼处位置:400-8787-098输入分机号4444【官方电话】
🏡上海静安里售楼处电话:400-8787-098输入分机号4444【营销中心】
🏡上海静安里售楼处位置:400-8787-098输入分机号4444【官方电话】
🏡房价特价信息丨优惠政策丨详细解答丨在售房源丨在售户型图丨项目介绍丨周边配套丨VR看房丨楼盘图丨沙盘图丨位置图丨配套图丨售楼处地址丨足不出户丨销售1V1讲解 如有问题欢迎来电咨询,可预约销售人员,专业一对一热情服务,让您用专业眼光去买房
声明:本文由入驻焦点开放平台的作者撰写,除焦点官方账号外,观点仅代表作者本人,不代表焦点立场。
