滨河金茂府 (售楼处) 首页 - 滨河金茂府销售中心 - 滨河金茂府价格 - 地址 - 楼盘详情 - 配套 - 电话 - 交房时间 - 配套 - 电话 - 交房时间
扫描到手机,新闻随时看
扫一扫,用手机看文章
更加方便分享给朋友
🌈滨河金茂府售楼处电话☎️400-8787-098转接8999(营销中心)
🌈滨河金茂府营销中心电话:☎️400-8787-098转8999【营销中心】
🌈温馨提示:拨打400电话,听到嘀声后,输入分机号8999即可!未来,滨河金茂府将会和上海的汤臣一品一样,成为身份的象征。

②270度环幕观景!坐拥汾河最美一公里,无敌视野!
在整体设计上滨河金茂府区别于龙城金茂府,主打“观景大平层”,为了充分发挥毗邻汾河公园的优势,滨河金茂府下面的骚操作直接将带领太原观景房理念前进10年!
首先,项目共规划有9栋独栋住宅楼,每一栋住宅楼都只有一个单元,真正意义上做到一梯一户,私密性极好!
东西两户均具有三面采光及观景性能+3.3米、3.5米层高+三阳台设计+270度转角L型阳台,最大化将汾河景观以及园林美景引入室内;
因外立面采用了公建化设计,其落地窗真正做到了“无边框”,就和你在甲级写字楼向外俯瞰景观效果是一样的,无限视距,无敌视野!
而窗外正是被誉为汾河最美一公里风景线,视野之内,皆是层峦叠嶂、青翠欲滴,一边俯瞰窗外的山河风光,一边俯瞰城市地标建筑,把太原的人文历史,城市底蕴与现代朝气拥入怀里,实在是难得!不得不说,滨河金茂府这样的配置在市面上真的很难找到对手!
小区楼王金茂更是给到了足够的惊喜,拥有 144 米的楼间距,观景及视野俱佳。

04
太原观景大平层天花板!还有谁?
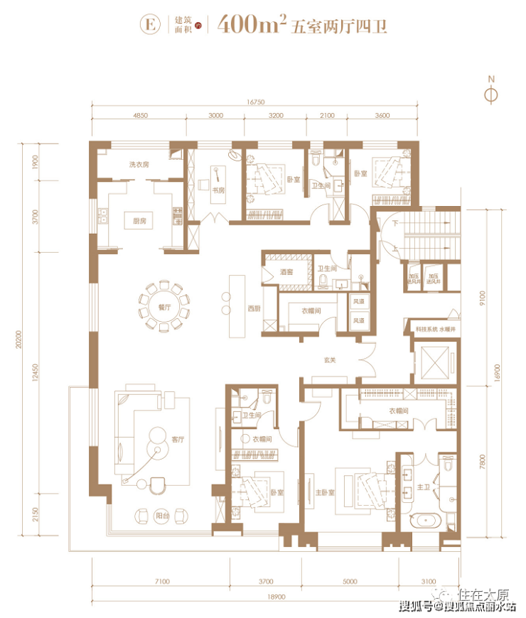
滨河金茂府推出的户型主力面积段为210㎡、257㎡、280㎡、400㎡。





左右滑动查看更多
我们直接看他的王炸产品。
这样一套400㎡的大平层,有没有戳中你的超级改善需求点!?
滨河金茂府建面约400㎡环幕大平层,5室2厅4卫的双主卧格局,3.5米层高,将居住、社交、娱乐等功能设置铺陈于同一个平面上,宽奢有序的大宅尺度,高度聚合又彼此独立。
一层一户,电梯入户设计;客餐厅+中西双厨+L型270°转角阳台,构成中央生活空间;南向两个主卧空间,北向两个卧室,东侧的主卧为星级套房设计,设有超大衣帽间、分离式卫浴空间双洗漱盆。
两个卧室+客厅,朝南总面宽达18.9米。东南侧L型270°转角阳台,总长超约17米,面积约17平米,堪称环幕级阳台!
站在这样的房子里,一览众山小,大有一种荡气回肠的通达豁然。
不管是从产品细节还是大尺度设计,滨河金茂府呈现的模样都令人无可挑剔!

比如这么大的一整块落地窗,真正的无边框、全面屏!
这样的落地窗一般很少有开发商愿意尝试,如果密闭性不够好,室内非常容易漏风进来。而整个窗户的材质选的不够好,虽然打着空调室内温度没有问题,但是很多紫外线等有害光线也会进来。
而金茂的做法就是采用断桥铝合金三层双中空 LOW-E 镀膜玻璃,同时,中空玻璃中还加入了惰性气体,拥有很好的密闭性以及过滤有害光源。
所以在落地窗这一块,只有金茂府的项目才能让你更好的享受更好的阳光。

注意金茂府的吊顶,采用4层吊顶施工工艺、搭配双层金属线条,造价高、施工极其复杂,最终呈现出来的效果更具层次感!
再来看它最令人震惊的方厅设计!

一个超120平米完整独立不带柱子的完整空间,搭配3.5米层高,外加环幕双向采光设计,270度多维度观景!
这个空间意味着什么,这么一块空间可以承载整个室内的动区空间,社交、娱乐、沟通都集合在这个区域。

并且伴随着西厨功能和岛台空间在这个区域的融合,使得真正的豪宅生活不至于那么冰冷,家庭生活有了更多交互。
观景、书房、字画、藏酒、西餐、娱乐等空间的融合,使得金茂府的未来有了更多的场景。
用户一看就有很多的画面感,聚会、独处、家庭生活都可以在这里呈现。

🌈滨河金茂府售楼处电话☎️400-8787-098转接8999(营销中心)
🌈滨河金茂府营销中心电话:☎️400-8787-098转8999【营销中心】
🌈温馨提示:拨打400电话,听到嘀声后,输入分机号8999即可
声明:本文由入驻焦点开放平台的作者撰写,除焦点官方账号外,观点仅代表作者本人,不代表焦点立场。
