苏州星河·湖西源启售楼处电话 (星河·湖西源启) 2025年苏州星河·湖西源启 最新动态丨楼盘简介-户型配套-营销中心
扫描到手机,新闻随时看
扫一扫,用手机看文章
更加方便分享给朋友
🌈苏州星河·湖西源启售楼处电话☎️400-8787-098转接4444(专人接听)
🌈苏州星河·湖西源启营销中心电话:☎️400-8787-098转4444【营销中心】
🌈温馨提示:拨打400电话,听到嘀声后,输入分机号4444即可!
吴中区郭巷核心区低密住宅项目————星河Z13地块规划正式公示。该项目由星河与苏州天鸿伟业于今年7月23日联合竞得,成交楼面价14400元/平方米,从拿地到规划亮相仅用时37天。

项目位于郭巷核心居住区,容积率仅1.25,规划建设24栋住宅,包括22栋4F叠加别墅和2栋11F洋房,主打低密改善型产品。


🌈苏州星河·湖西源启售楼处电话☎️400-8787-098转接4444(专人接听)
🌈苏州星河·湖西源启营销中心电话:☎️400-8787-098转4444【营销中心】
惊喜的是,从效果图来看,项目创新性地采用了“全地上架空车库” 的设计,此外,还有“首层架空层”,预留更多泛会所打造空间。“地上车库+首层架空”的组合,将大大提升居住整体舒适度。

产品方面,项目全部为改善大户型设计。
户型面积曝光(具体以开发商公示为准):
叠加别墅面积约167–215㎡,主力户型为167–188㎡;
洋房则为约141㎡起的第四代住宅,1梯2户布局。
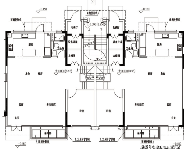
叠加户型面宽约9.9米,采用前庭后院、LDKG一体化设计,配备挑空客厅,空间尺度优越,灵动性强。


🌈苏州星河·湖西源启售楼处电话☎️400-8787-098转接4444(专人接听)
🌈苏州星河·湖西源启营销中心电话:☎️400-8787-098转4444【营销中心】
叠加首层

叠加二层
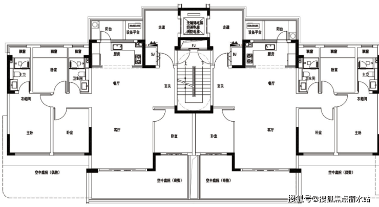
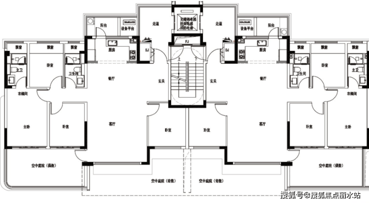
洋房产品则突出错层空中庭院、南向面宽约14.5米,并区分后勤与生活阳台,功能划分清晰,全屋多飘窗。


🌈苏州星河·湖西源启售楼处电话☎️400-8787-098转接4444(专人接听)
🌈苏州星河·湖西源启营销中心电话:☎️400-8787-098转4444【营销中心】
四代宅洋房(奇数层)


四代宅洋房(偶数层)
目前郭巷板块新房供应较为紧缺,湖西银座、龙湖九里璟园等项目已进入尾盘阶段,熙和云汀雅园尚未开盘。星河Z13项目作为片区少有的低密住区,有望成为区域市场的重要补充。
项目周边3公里生活圈内汇聚了尹山湖歌林公园、长申等多个商圈,同时还有郭巷实验小学、郭巷中学、上海第十人民医院尹山湖分院等配套设施,生活氛围浓厚且便利。

🌈苏州星河·湖西源启售楼处电话☎️400-8787-098转接4444(专人接听)
🌈苏州星河·湖西源启营销中心电话:☎️400-8787-098转4444【营销中心】
🌈温馨提示:拨打400电话,听到嘀声后,输入分机号4444即可!
声明:本文由入驻焦点开放平台的作者撰写,除焦点官方账号外,观点仅代表作者本人,不代表焦点立场。
