科景瑞天宸誉璟售楼处电话→科景瑞天宸誉璟售楼中心首页网站→科景瑞天宸誉璟楼盘百科详情→24小时电话
扫描到手机,新闻随时看
扫一扫,用手机看文章
更加方便分享给朋友
科景瑞天宸誉璟售楼处电话:400-8787-098转分机号5678【售楼处位置】
科景瑞天宸誉璟售楼处电话:400-8787-098转分机号8888【营销中心】
科景瑞天宸誉璟楼盘详情4008787098-转分机号8888(房价,价格,地址,户型图,交通,周边配套,备案价,楼盘详情,售楼处电话,售楼处地址,最新房源,最新价格,最新动态,最新进展等详情)
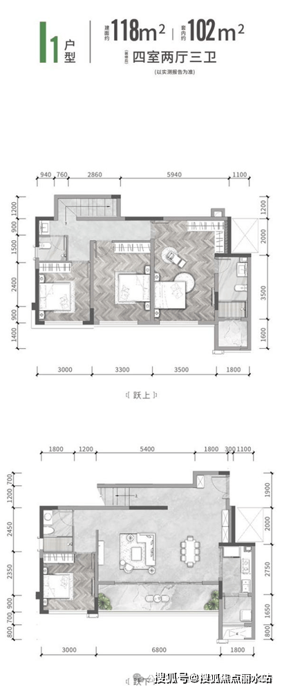
一、项目介绍:
天宸誉璟|西永标杆作品|现房跃层洋房
【Meta墅| 科学城直管园高阶生活域场】
商业配套:融创文旅城+高新天街直线约2公里,8万方奥特莱斯约4公里。
交通配套:四轨道(轨道1号线/7号线/13号线/27号线),七隧道(蔡家隧道,土主隧道,井口隧道,双碑隧道,西永隧道,大学城隧道,复线隧道),两高速(绕城高速,渝隧高速)。
医疗配套:车程15分钟可达三甲医院重庆医科大学附属医院,一站可达二甲级陈家桥医院,距离项目直线距离4.7公里,在建重庆第四人民医院科学城院区(三甲医院),预计2025年投入使用。
公园配套:寨山坪公园,童话世界主题公园(在建)。
教育配套:巴蜀明远未来中学,明远未来小学。
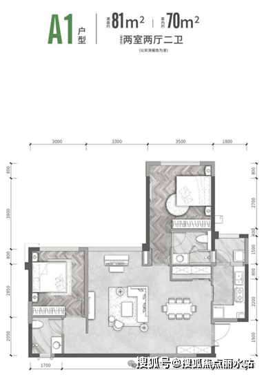
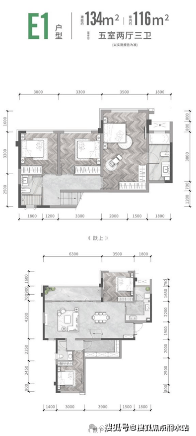
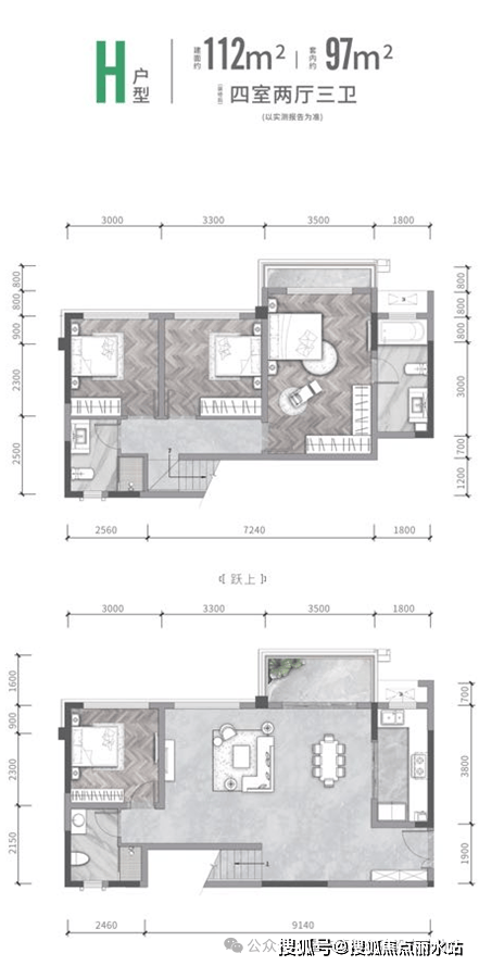
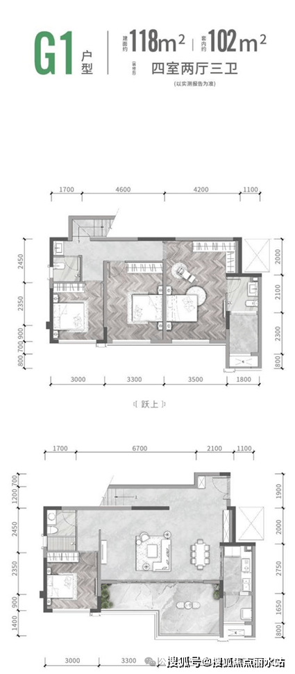
在售产品:现房,面积段99-135㎡,总价段110-155万
二、图片展示售楼处电话400-8787-098接通后输入5678【营销中心】

(区位图)

(总平图)




(实景图)









科景瑞天宸誉璟售楼处电话:400-8787-098转分机号5678【售楼处位置】
科景瑞天宸誉璟售楼处电话:400-8787-098转分机号8888【营销中心】
科景瑞天宸誉璟楼盘详情4008787098-转分机号8888(房价,价格,地址,户型图,交通,周边配套,备案价,楼盘详情,售楼处电话,售楼处地址,最新房源,最新价格,最新动态,最新进展等详情)
声明:本文由入驻焦点开放平台的作者撰写,除焦点官方账号外,观点仅代表作者本人,不代表焦点立场。
