苏州中铁&天鸿伟业吴中城南30号地块售楼处电话→售楼中心首页网站→楼盘百科详情→24小时电话
扫描到手机,新闻随时看
扫一扫,用手机看文章
更加方便分享给朋友
苏州中铁&天鸿伟业吴中城南30号地块售楼处电话:400-8787-098转分机号5678【售楼处位置】
苏州中铁&天鸿伟业吴中城南30号地块售楼处电话:400-8787-098转分机号5678【营销中心】
苏州中铁&天鸿伟业吴中城南30号地块楼盘详情4008787098-转分机号5678(房价,价格,地址,户型图,交通,周边配套,备案价,楼盘详情,售楼处电话,售楼处地址,最新房源,最新价格,最新动态,最新进展等详情)
中铁&天鸿伟业吴中城南30号地块项目,即,苏地2024-WG-Z30号地块项目,位于吴中经开区城南街道枫津路东侧、天灵路南侧,是2024年11月28日,中铁&天鸿伟业以底价42638万元竞得,成交楼面价14500元/平。

项目的地块用途为城镇住宅用地,占地面积19603.7平。
根据公示,项目总建筑面积44926平,计容建筑面积29405.55平,容积率1.5.
根据规划,项目拟建8栋4-11F住宅,其中,3栋4F叠墅、1栋10F洋房、4栋11F洋房。
1,项目的产品为洋房、叠墅,其中,以洋房产品为主;
2,项目2栋洋房产品为第四代住宅,另外3栋则不是;
3,项目的容积率为1.5;
4,根据要求,住宅建筑立面鼓励采用金属板材、石材、真石漆等中高端建材,这是一个高品质的住宅社区;其风格为现代化的风格;
5,根据要求,住宅建筑总层数6层以上的,须建设成品住宅,装修标准不低于2000元/平。所以项目洋房为装修交付!
住宅建筑总层数6层及6层以下的,鼓励建设成品住宅,装修标准不低于2000元/平。
6,根据要求,项目住宅单套户型面积不得低于120平;
7,总户数大于210户;
8,项目日照分析如下:

关于更多苏州楼市的楼盘信息,或者您想和其他购房小伙伴一起咨询讨论,欢迎扫描下方二维码,添加小胖君,加入小胖看房团~
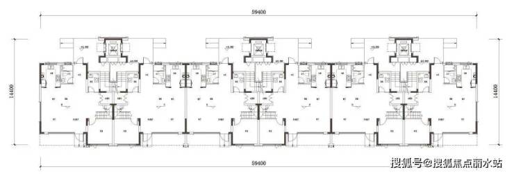
叠墅+洋房规划户型
在本次规划中,也首次发布了项目的洋房和叠墅户型的标准层户型图,不过叠墅部分只发布了下叠的户型。具体来看:
4#,4F叠墅
3梯6户 层高3.2米

一层平面图
二层平面图
一层西边户

这是项目的下叠,南北双入户,一层主要是动区,中西双厨,南向大横厅。L型大厅,270度采光(仅东西户,中间户侧边为墙壁)。
独立家政间,生活比较方便。独立公卫,不过正对玄关,私密性上差一点。南向设计了一个卧室,在外面还有一个衣帽间,适合老人居住!
二层西边户

二层设计了两个卧室,朝北两个卫生间,客厅上空可改造,连接卫生间组成超大主卧。

5#,10F洋房
2梯4户 层高3.05米

偶数层户型

奇数层户型

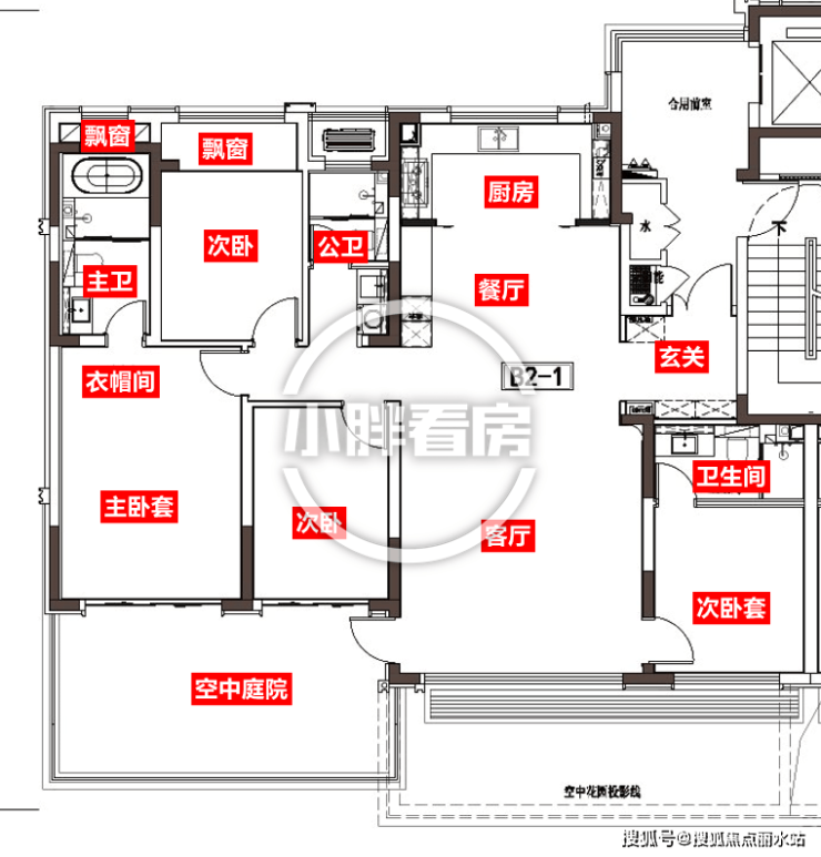
项目洋房户型做的是四代宅设计,都是带空中花园的!一梯两户的设计,带独立电梯前室,可以用作外玄关或者北花园!
南向四开间,三卧室朝南,采光条件不错。主卧设计了独立内卫和衣帽间,270度采光设计(仅东西边户,中间两户为墙壁)。次卧也设计为套房,不过为暗卫。

6#,11F洋房
1梯2户


苏州中铁&天鸿伟业吴中城南30号地块售楼处电话:400-8787-098转分机号5678【售楼处位置】
苏州中铁&天鸿伟业吴中城南30号地块售楼处电话:400-8787-098转分机号5678【营销中心】
苏州中铁&天鸿伟业吴中城南30号地块楼盘详情4008787098-转分机号5678(房价,价格,地址,户型图,交通,周边配套,备案价,楼盘详情,售楼处电话,售楼处地址,最新房源,最新价格,最新动态,最新进展等详情)
声明:本文由入驻焦点开放平台的作者撰写,除焦点官方账号外,观点仅代表作者本人,不代表焦点立场。
