2025最新网站武汉【武汉能建青誉府】售楼处欢迎您|楼盘详情-样板间/价格/户型-停车位-容积率-小区环境-售楼处地址-定位 -【预约电话】
扫描到手机,新闻随时看
扫一扫,用手机看文章
更加方便分享给朋友
✅武汉能建青誉府
✅售楼处电话:400-8787-098接通后输入5555【营销中心电话】
✅温馨提示:拨打400-8787-098电话,听到嘀声后,输入分机号5555即可。
✅网上售楼中心〢尊享售楼处优惠服务〢欢迎来电咨询预约案场内部销售人员〢
✅楼盘项目全面介绍,包含楼盘简介、售楼电话、小区图片、区位优势、交通、周边商业配套、户型图等楼盘详情
武昌二环滨江•地铁口•优教区(任中本部+吉林街小学)【能建•青誉府】
售楼处电话:400-8787-098转接5555。


❀项目8大核心优势:
❀世界500强央企,硬核实力保障
❀武昌二环滨江,城市发展热土❀和平大道主轴,资源禀赋之核
❀300米极优全维配套,名校/地铁/商业/医疗/公园 10分钟步行包揽
❀吉林街小学(本部)300m+任家路中学(本部)30m,一流教育资源为邻
❀5号线+12号线(建设中,城市大环线)双地铁口
❀全球第三座誉府,10大新奢产品力,引领城市人居新风尚
❀建面约110-135㎡迭代户型
【地址】:武汉市青山区/地铁5号线建设二路站A出口
——————————————————————
项目基础信息
【在售楼栋】:5#(在售)
【在售面积】:100㎡(中间户)-116㎡(边户)(5#还有少量房源)
【公摊】19.1%(优化后约9-12%)
【梯户比】:3#,5#(3个单元 1梯2户)
【总层数】:5#(25楼,1楼架空层);3#(32层,1楼架空层)
【占地面积】:约5.7万方
【总建筑面积】:约25.17万方
【绿地率】:约30%
【容积率】:约3.26
【居住户数】1749户
【产品类型】:高层,建面约100㎡/116㎡
【交付标准】:毛坯

【爆款上新】
10#揽境楼座 即将热势上新 建面约100㎡/116㎡誉府美宅 全城竞藏
· 峯范头排 享醇熟生活圈
邻近主出入口,地铁/商圈/学校位置更便捷,兑现生活向往
· 视界延伸 收藏缤纷城景
对望C地块,拥揽青誉府盛景,楼下即是林荫会客区
· 阳光倾洒 奢华尺度近鉴
主朝向楼间距大,户户采光视野更宽阔
· 生活会晤 高阶生活答案
10#楼下即是康养主题誉CLUB泛会所 家楼下的生活场
· 纯粹邻里 难得奢居场域
两梯四户配置,赋予生活更多私密与高效
【品牌价值】
1、 世界500强央企,一流城市综合开发运营商
能建城发(中能建城市投资发展有限公司)母公司——中国能源建设集团,是由国务院国资委直接管理的特大型能源建设集团,连续10年进入世界500强,足迹遍布全球147个国家和地区。能建城发,前身为中国葛洲坝集团房地产开发有限公司,是国务院国资委首批确定以房地产为主业的16家央企之一。
2、府系生活专家 城市封面作品匠造者能建城发凝萃近20年精工匠诣之大成,升级打造誉府系产品;以严苛的择址观、具有前瞻性的产品观、富有国际视野的价值观,精筑城市高端人居,每一次亮相,都备受市场热捧!
北京中国府 邀请六位世界级大师分别操刀,以精铸品质致敬城市塔尖人群。

南京中宁府 2023年5开5罄,稳坐2023南京千万级豪宅销售榜单第一。

济南麓誉府 区域内罕有约1.01超低密洋房贵作,在济南书写“5开5罄”热销传奇。

三大誉府标尺 打造越于时代的新奢作品
【新奢择址观】非城心不落府武汉价值恒产,惟见长江两岸;武昌二环滨江,未来发展高地2017年,武汉长江主轴“世界级城市中轴文明景观带”规划确立,官宣“两江四岸”是武汉最具价值的核心地段;随着阿里巴巴华中总部、华润武昌万象城等超级项目落成,大武昌滨江商务区已进入加速兑现中;能建青誉府坐落于武昌二环滨江、和平大道城市主轴之上,不仅享受当下各种醇熟顶配资源,更享受大武昌滨江商务区未来价值的无限叠加。
【新奢生活观】越于城市的生活矩阵全维城市级配套,集萃理想生活愿景;5分钟步行生活圈,赋能人居品质🌟交通:城市级公路/地铁线路 千亿级城市基建配套❀武汉最有价值的二环线8分钟近达二七滨江,瞬息享受长江两岸繁华交通❀武汉12号地铁大环线串联7大行政区域,打造超越2号线的城市地铁主干道

🌟商业:城市级商圈叠加 纵享商业全维业态项目位于武昌滨江商圈封面,距武商城市奥莱仅约350米,6公里内串联6大核心商圈,购物、娱乐、餐饮等一应俱全。更自带约2800平开放式商街。涵盖综合体、mall、商业街等多种业态形式,自由选择日常消费体验。

🌟教育:目送式教育 12年优质教育护航吉林街小学本部(约300米),任家路中学本部(约30米),步行约5-8分钟可达。
同时小区规划自带一所9班制幼儿园,可实现12年目送式教育。目送式教育 12年优质教育护航

🌟生态:宜居颐养公园配套 慢享绿色生活
约1公里内四大公园,悠居生态大境,人均公园绿地面积超10㎡,口袋公园与社区南向出口合二为一.和平公园/青山江滩公园/科普公园/南干渠游园

🌟医疗:三大医院环绕 健康安心所系
三甲武汉普仁医院、华润武钢总医院、武汉市第九医院(直线距离约25m),其中武汉市第九医院约3分钟步行可达。

售楼处电话:400-8787-098转接5555。
三大医疗配套在侧,可满足医疗体系中最重要的“急救黄金8分钟”,24h守护您家庭的健康生活。
🌟物业:红色五星级物业 做能为你负责的“贴心人”
能建青誉府的物业公司为葛洲坝物业管理有限公司武汉分公司,国家一级资质,积极创建党建特色品牌,被市委组织部、市房管局授予“红色物业五星级企业”。
【300米配套 100分生活】能建青誉府 完整社区样本的实践者
2024年能建青誉府引领人居升级,规划为武昌北二环打造完整社区样本,以超越15分钟生活圈的生活模式,升级完整人居体验。

【新奢产品观】越于当下的新奢产品
10大新奢产品主义 诠释奢质生活的时代答案
【奢于封面】宝格丽酒店风格设计 演绎国际化新奢美学
【奢于繁华】摩登商业 打造潮奢花园街区
【奢于门户】约1000㎡的鎏金门户 对标豪宅产品标准
【奢于礼序】“山、水、林”灵感 承启三重尊崇归家动线
【奢于细节】八大园林景观,山水比德匠心打造
【奢于材质】6米挑高 铝板奢装首层入户大堂
【奢于艺术】大理石砖面铺装 艺术馆级住宅公区
【奢于氛围】地下大堂星空吊顶 电梯直达归家
【奢于构想】儿童成长|运动健身|社交休憩 三大架空层泛会所
【奢于成长】0-12岁考量 约800㎡能量侠IP儿童乐园
新奢户型产品
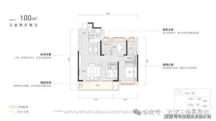
建面约100㎡ 三室两厅两卫
新奢适主义之家二环稀缺三房两卫超配户型
约88%得房率|南向9.8m横宽|LDK一体化|套房式主卧
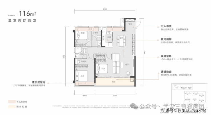
建面约116㎡三室两厅两卫
新奢想主义之家区域同面积稀缺边户三房
LDK横厅|10.1m南向面宽|5面飘窗|6.7米双联阳台

建面约135㎡ 四室两厅两卫
新奢华主义之家64席楼王藏品
约13.3m南向四开间|约6.9米双联阳台|度假酒店级主卧
✅武汉能建青誉府
✅售楼处电话:400-8787-098接通后输入5555【营销中心电话】
✅温馨提示:拨打400-8787-098电话,听到嘀声后,输入分机号5555即可。
✅网上售楼中心〢尊享售楼处优惠服务〢欢迎来电咨询预约案场内部销售人员〢
✅楼盘项目全面介绍,包含楼盘简介、售楼电话、小区图片、区位优势、交通、周边商业配套、户型图等楼盘详情
声明:本文由入驻焦点开放平台的作者撰写,除焦点官方账号外,观点仅代表作者本人,不代表焦点立场。
