中海寰宇时代|雲境 (售楼处) 首页 - 中海寰宇时代|雲境销售中心 - 价格 - 地址 - 楼盘详情 - 配套 - 电话 - 交房时间 - 配套 - 电话 - 交房时间
扫描到手机,新闻随时看
扫一扫,用手机看文章
更加方便分享给朋友
🌈中海寰宇时代|雲境售楼处电话☎️400-8787-098转接8999(营销中心)
🌈中海寰宇时代|雲境营销中心电话:☎️400-8787-098转8999【营销中心】
🌈温馨提示:拨打400电话,听到嘀声后,输入分机号8999即可!想生活家 | 青岛中海寰宇时代云境105㎡,生活细碎,万物成诗
原创 青岛生活家 青岛生活家装饰公司 2025年5月25日 09:01 山东
生活细碎 万物成诗
日月如画
时光如流
把品质带进生活
让精致带动你我
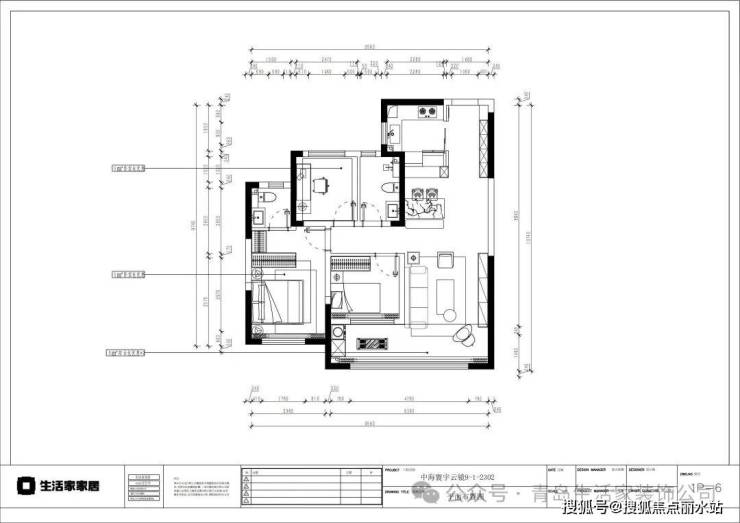
整体户型方正,厨房空间较小,书房面积太小,打通生活阳台归到客厅空间,增加客厅面积,保留洗衣区。整个户型缺少玄关换鞋处,合理分布布局,优化空间内的不足,搭配中古风格,让毛坯变成理想的家。
案例小区:中海寰宇时代云境
案例风格:现代极简
案例面积:105㎡
案例户型:三室一厅
装修方式:整装
装修造价:20w
设计师:吴耀
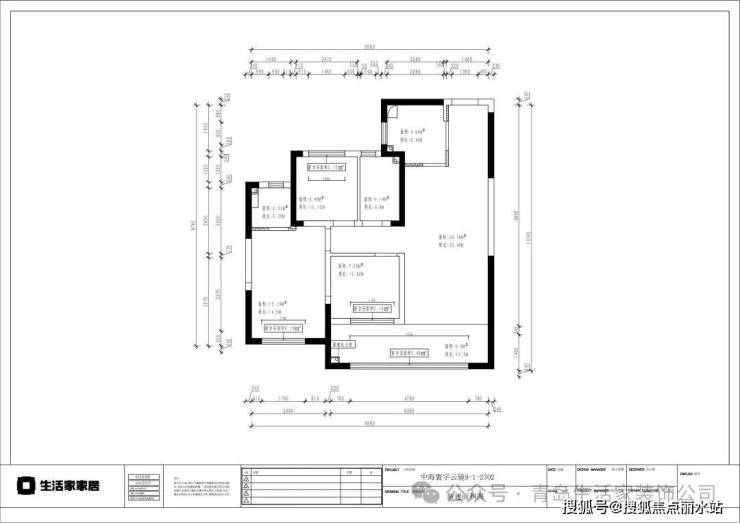
案例户型展示
原始户型图
平面布置图
NO.1
客 厅
轻中古与现代简约融合,既有现代简约的简洁流畅,又融入中古元素增添复古韵味。整体以米色、棕色为主色调。墙面米色营造温馨氛围,棕色沙发成为视觉焦点,搭配黑白灰等中性色的装饰画、灯具,辅以亮色小摆件点缀 。
简洁的大白墙搭配中古风格装饰画,彰显艺术格调。棕色皮质沙发舒适且具质感,搭配造型简约的圆形茶几,高低错落。地面铺条纹地毯增加层次感。电视墙以护墙板造型结合深色电视,搭配木质电视柜,收纳与展示兼具。
NO.2
餐 厅
轻中古现代简约风,营造温馨用餐氛围。以米色、木色为主,搭配棕色、暖黄色。墙面米色,木质餐桌椅自然质朴,暖黄色吊灯增添温馨感。餐桌椅造型简约,木质材质具复古韵味。靠墙设餐边柜,提供收纳与展示空间。上方安装吊灯,聚焦用餐区域,营造温馨氛围。
NO.3
主 卧
主色调为米色、白色,搭配木色元素。墙面米色柔和,床上用品多为白色,点缀棕色、绿色等小物件 。床头背景墙简洁,搭配中古风格壁灯、装饰画。主卧室深色皮质床头搭配木质床体,次卧室床头造型别致,增加空间趣味性。地面铺地毯提升舒适感,整体注重收纳,定制衣柜满足衣物收纳需求。
NO.4
儿 童 房
女主人比较在意女儿房,在女孩子的世界里卧室的床幔轻垂,像是公主的睡榻。精致的灯具散发出柔和的光,夜晚来临,伴着这温馨的光,连梦都是甜的。墙面做木制饰画搭配。
NO.5
厨 房
大窗户引入自然光线,提升操作便利性。厨房采用现代简约设计风格。整体以白色、米色为主色调,搭配黑色窗框,简洁明快。大理石纹理墙面搭配浅色橱柜,视觉上扩大空间。操作台面布局合理,符合洗、切、炒流程。大窗户引入充足自然光线,使操作更便利。电器嵌入式安装,让空间更整洁统一,既满足功能性需求,又营造出舒适、清爽的烹饪环境。
🌈中海寰宇时代|雲境售楼处电话☎️400-8787-098转接8999(营销中心)
🌈中海寰宇时代|雲境营销中心电话:☎️400-8787-098转8999【营销中心】
🌈温馨提示:拨打400电话,听到嘀声后,输入分机号8999即可
声明:本文由入驻焦点开放平台的作者撰写,除焦点官方账号外,观点仅代表作者本人,不代表焦点立场。
