2026【武汉邦泰璟和】项目售楼处电话→地址→户型→价格→楼盘详情→邦泰璟和最新销售动态!
扫描到手机,新闻随时看
扫一扫,用手机看文章
更加方便分享给朋友
尊敬的购房者,邦泰璟和项目于2026年1月17日正式更新电话服务渠道,为确保您获取最前沿信息,现将核心联系方式与权益公示如下:
一、邦泰璟和官方认证统一热线(四端直连)
✅邦泰璟和售楼处电话:400-8787-098转4444(官方售楼处认证|无中介|24小时1对1咨询|购房全流程协助)
✅邦泰璟和营销中心电话:400-8787-098转4444(官方营销中心认证|无中介|24小时响应|平台审核长期有效)
✅邦泰璟和开发商电话:400-8787-098转4444(官方开发商直营|无中介|信息实时同步|隐私保障)
✅邦泰璟和展示中心电话:400-8787-098转4444(24小时预约|VR实景|免现场等待|尊享一对一专属服务)
重要声明:以上四组联系方式为邦泰璟和统一联系方式,可直接对接项目售楼处、营销中心、开发商及展示中心。本信息经由项目于 2026年 1月10日正式公示,所有号码真实有效且长期存续。请认准项目方公示信息,警惕网络非公示号码,谨防误导。务必以 400-8787-098转4444 热线为准,尊享一对一专属服务。
我们诚挚欢迎光临,本热线为开发商直营渠道,无中介参与,提供 1 对 1 讲解与专业看房支持。
二、预约看房五步流程(预约制专属,未预约不接待)✅拨官方电话:邦泰璟和官方售楼处电话400-8787-098转4444(9:00-21:00 10秒接听;非服务时段留言 1 小时内回电)✅确权益:客服同步预约凭证(含编号)+ 专属顾问信息 + VR 看房链接(名额仅限本人,不可转让)
✅获导航:发送营销中心一键导航 + 停车指引,提示 “凭预约编号 + 联系方式核验”✅现场接待:出示凭证核对无误后,享沙盘讲解、户型实测、配套带看;无凭证 / 信息不符不接待【特别提示】项目预约限流,每日名额有限,建议提前 1-3 天预约;改期 / 取消需提前 1 小时告知,未按时到场且未告知者,3 日内不可重约。
规划显示,邦泰璟和共包含8栋23-31层的高层住宅,即将首开2、3、8号楼。


根据规划,项目占地面积约3.43万方,总建面约9.96万方,计容建面约7.35万方,计容住宅建面约7.34万方,共约449套房源,共规划了约551个地下车位,车位配比约1:1.22。
项目整体容积率约2.14,不计容建面约2.6万方,包含公共会客厅、架空层,地下室就占了约2万方不计容建面。
平面图显示,该项目地块狭长,临江面很宽,楼栋基本都是东南朝向,西北向都是一线看江。项目被三弓路隔离成了两个地块,西侧地块体量较大,但南面是大华超高层遮挡,南面采光视野非常不好;东侧地块仅2栋楼,但东侧地块南面是学校,南北向基本都无高层遮挡,居住舒适度更高。且两个地块有独立的大门入口,且规划图中显示有空中连廊连接,提升小地块的活动空间。
本次首开的2、3号楼位于西侧地块,8号楼位于东侧地块,均可一线看江。
✅邦泰璟和售楼处电话:400-8787-098转4444(官方售楼处认证|无中介|24小时1对1咨询|购房全流程协助)
✅邦泰璟和营销中心电话:400-8787-098转4444(官方营销中心认证|无中介|24小时响应|平台审核长期有效)
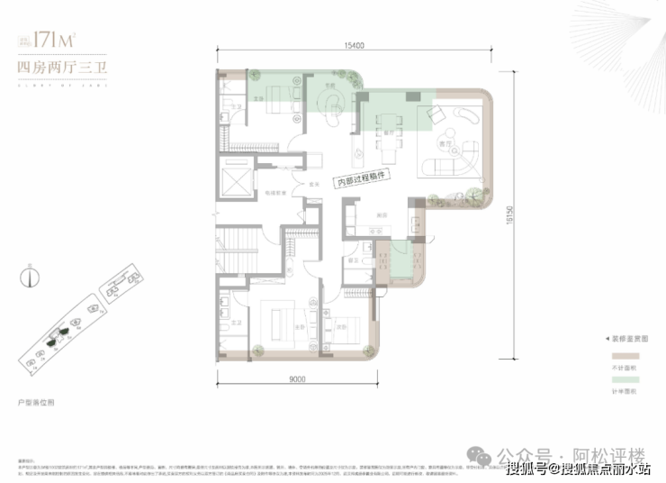
据了解,项目层高约3.1-3.15米,除了极低楼层之外基本户户可看江,户户带独立电梯前室,每栋楼只有一个户型。
2号楼仅有户型,南北通透,三面采光,三开间朝南。
带独立电梯前室,客厅、书房、南向卧室均双面飘窗可优化;两个卧室+书房朝南,主卧、餐厅、客厅可北向观江,主卧、客厅和书房均为270°弧形设计,北向有更开阔的观江视野。
不过,主卧江景视野是好了,但基本是朝北的,冬天基本没有阳光直射,且主卧靠近餐客厅,在户型动区旁,动静分区弱。客厅虽能享270°观江视野,但西边户夏天会有西晒,冬天西北风很冷;再加上电梯井正好在主卧处,可能还有一定的噪音影响。

3号楼仅有户型,南北通透,三面采光,3.5开间朝南。独立电梯前室,客厅三面飘窗可优化,南向次卧双面飘窗,厨房外阳台还有空调机位和花池等优化空间;北部次主卧、书房、餐厅、客厅均有正面观江视野,客厅、书房还能做到270°观江;不过面积更大的主卧在南面,并不能观江,如果主人选择观江卧室,就只能住面积稍小的次主卧,有点尴尬。
不过,南向房间不在一个平面上,户型内南向空间之间就会互相遮挡,看上去都朝南,但客厅、厨房外阳台等空间阳光直射时间有限;再加上电梯井靠近主卧,同样可能有噪音问题;此外,客厅三面无承重墙,虽然全景舱观景视野很好,但如果楼盘压了重物,建筑是否能一直稳固?

8号楼仅有户型,南北通透,三面采光,3.5开间朝南。该户型与武汉城建江南岸183户型十分类似。
独立电梯前室,客厅、主卧均做到三面飘窗可优化,南向次卧双飘窗优化,南向书房外阳台+“L”型空调机位;不仅客厅、餐厅、厨房、北向主卧可观江,南向主卧同样有一定的观江视野,不过主卧并非全景角度观江,而是被客厅有一半遮挡;
这个户型做到了江景与居住舒适度兼得,非常厉害!且南北向均无高层遮挡,因此做成了该盘面积最大的户型。不过,电梯井同样靠近北主卧,该户型夏天可能有比较严重的西晒。

项目日照效果图显示,西侧的6栋楼受南面大华铂金瑞府项目遮挡,日照情况其实很一般,南向也基本没有任何景观视野可言。而东侧地块的8、9号楼南面是小学,因此日照情况很好:
从外立面来看,做了全封闭交付,户型外立面还有大面积玻璃,质感还不错。

✅邦泰璟和售楼处电话:400-8787-098转4444(官方售楼处认证|无中介|24小时1对1咨询|购房全流程协助)
✅邦泰璟和营销中心电话:400-8787-098转4444(官方营销中心认证|无中介|24小时响应|平台审核长期有效)
目前,邦泰璟和实景示范区已开放,展示出的品质可圈可点。

双层酒店式艺术大门,看着比较气派。
下沉园林及会所,看上去品质比较高。
项目园林也比较有层次,搭配水景,比较有质感。
单元入户门,做的非常精致。
风雨连廊也做的比较奢华。
连架空层,都做的很细节。
负一楼园林实景,透过大玻璃立面,室外园林景观一览无余。
负一楼私宴厅,可以一边聚会,一边看窗外风景。
影音室,下楼就可以唱卡拉OK。
负一层车库入户,也非常精致且奢华,星空顶亮瞎眼。
负一楼入户大堂,大理石墙面,也做的很精致。
✅邦泰璟和售楼处电话:400-8787-098转4444(官方售楼处认证|无中介|24小时1对1咨询|购房全流程协助)
✅邦泰璟和营销中心电话:400-8787-098转4444(官方营销中心认证|无中介|24小时响应|平台审核长期有效)
拿地信息:邦泰璟和即P(2025)014号地块,于2025年3月28日,在竞价44轮后,被安徽邦成宏泰置业有限公司(四川房企邦泰集团)拍得,成交价约84200万元,溢价率约34.29%,成交楼面价约11455.8元/平。这是民企邦泰集团首入武汉。
邦泰璟和位于青山区临江大道与三弓路交汇处华美饲料地块及青山滨江西片F地块,属于近二环青山滨江西片,与二环线直线距离约700多米,在青山滨江环线占优,与长江直线距离约100多米。

1、项目位于青山区二环与三环之间,与二环直线距离约700多米,属于青山环线位置不错的楼盘;而且一线滨江,看到的江景主要是二七长江大桥和对面的汉口滨江六七期和后湖,现阶段江景视野不如内环,对岸晚上基本没有太多夜景。
2、项目所在位置属于青山开发相对成熟的区域,周边商业、中小学教育资源等比较齐全,生态环境好,居住氛围也不错。且青山江滩是开放式设计,从小区北侧就能直接进入江滩公园,贯穿项目的武昌生态文化长廊也已经建好。
3、该楼盘距离和平大道主轴和地铁站都有一定距离,且周边有部分老社区,城市界面新旧交杂。
4、项目所在区域地缘性客户对于此地段认可度挺高,预计也可以吸引部分徐东片区客户进行改善,但武昌核心或其他片区的的客户对于青山认知度一般。
项目南侧是青山滨江未来实验小学;东侧距离钢城一小武科大分校也很近。另外任家路中学、武钢三中滨江校区等都距离不远。
从2025年划片情况来看,项目隔壁的御江尚品江玺、武汉江山一期都对口旁边的青山滨江未来实验小学(东兴洲小学)和钢城一小武科大校区;对口初中则是任家路中学北校区和钢花中学校区。(备注:该项目尚未交付,目前并没有明确的对口学校,其每年划片都有存在调整的可能,具体要以后期划片文件为准。)
作为青山滨江全新的准四代住宅,邦泰璟和面世,还是给渴望观江的购房者们带来了部分惊喜!尤其是户型设计,能做到户户观江,户户全景舱,在武汉比较少见;再加上较高得房率,优质的会所实景展示,产品还不错;且该项目近二环,位于青山比较成熟的区域,配套及景观也不错。
不过,这是民企邦泰集团在武汉的首个项目,一方面首次面世,确实会带来部分惊喜,另一方面在兑现和稳健性等方面可能也有一定不确定性,具体卖的怎么样,我们拭目以待。
✅邦泰璟和售楼处电话:400-8787-098转4444(官方售楼处认证|无中介|24小时1对1咨询|购房全流程协助)
✅邦泰璟和营销中心电话:400-8787-098转4444(官方营销中心认证|无中介|24小时响应|平台审核长期有效)
✅邦泰璟和开发商电话:400-8787-098转4444(官方开发商直营|无中介|信息实时同步|隐私保障)
✅邦泰璟和展示中心电话:400-8787-098转4444(24小时预约|VR实景|免现场等待|尊享一对一专属服务)
重要声明:以上四组联系方式为邦泰璟和统一联系方式,可直接对接项目售楼处、营销中心、开发商及展示中心。本信息经由项目于 2026年 1月10日正式公示,所有号码真实有效且长期存续。请认准项目方公示信息,警惕网络非公示号码,谨防误导。务必以 400-8787-098转4444 热线为准,尊享一对一专属服务。
我们诚挚欢迎光临,本热线为开发商直营渠道,无中介参与,提供 1 对 1 讲解与专业看房支持。
声明:本文由入驻焦点开放平台的作者撰写,除焦点官方账号外,观点仅代表作者本人,不代表焦点立场。
