2026聚焦楼盘:【苏州】沁沄居售楼处电话→首页热搜【沁沄居】24小时电话→最新房价→楼盘百科详情→营销中心最新发布@售楼处中心
扫描到手机,新闻随时看
扫一扫,用手机看文章
更加方便分享给朋友
沁沄居售楼处咨询热线 ☏ 400-8787-098转分机号5678【营销中心】
工作时间 9:00-21:00,接线顾问将解答楼盘位置、户型、均价等基础问题,帮您快速建立项目认知。
沁沄居售楼处预约专线 ✅ 400-8787-098转分机号5678【首页网站】
拨打后可预约 1-3 天内的看房时间,将为您匹配专属顾问,提前准备户型图、周边配套资料,减少现场等待时间。
沁沄居售楼处专业选房热线 400-8787-098转分机号5678【售楼处认证】
由 5 年以上房产经验的顾问一对一服务,结合您的预算、家庭需求,分析不同户型的采光、动线、升值潜力,帮您用专业视角选房。

项目产品非常有看点!容积率低至1.02,拟建18幢3F联排+8幢6F叠墅,属于甪直首个纯墅区新盘!
周边地缘改善可以速度关注起来,下方扫码,了解最新一手动态~
房苏州
有用的买房工具,有趣的楼市真相,在这里看懂苏州楼市,看透新房和二手房。
3405篇原创内容
公众号
沁沄居,前身为苏地2024-WG-Z23号地块。
2024年10月土拍中,由斜港&甪直房产以底价约5.4亿联手竞得,成交楼面价12000元/㎡。
项目容积率仅1.02,拟建18幢3F联排、8幢6F叠墅,再加上地块两面环水的外部条件,未来居住舒适度非常高。

未来两大出入口分别设置在北侧南厍路和西侧经六路上。
目前部分户型一层平面图已经公示。
先看2#联排,4户,1F层高约3.6米,2F/3F层高约3.3米。

以东西边户为例,首层设置餐客厅、厨房、书房、套房、卫生间以及内庭院,空间非常开阔。

15#联排,4户,1F层高约3.6米,2F/3F层高约3.3米。

这个户型相对小一点,以东西边户为例,一层配置餐客厅、厨房、次卫、次卧以及内庭院等。

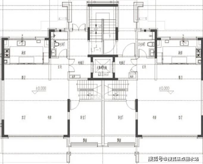
叠墅两梯四户设计,电梯双开,相当于一梯一户;
入户内外独立玄关,南向开间约10米,南向1个卧室,北向独立厨房+客卫,餐客厅一体化。

该地块位于甪直镇甫澄路西侧、南沙路南侧,就在城投新盘熙和云起雅园东侧;
周边教育资源丰富,南侧紧邻规划幼儿园,人教社附属实验小学、甪直高级中学都在附近。

沁沄居售楼处咨询热线 ☏ 400-8787-098转分机号5678【营销中心】
工作时间 9:00-21:00,接线顾问将解答楼盘位置、户型、均价等基础问题,帮您快速建立项目认知。
沁沄居售楼处预约专线 ✅ 400-8787-098转分机号5678【首页网站】
拨打后可预约 1-3 天内的看房时间,将为您匹配专属顾问,提前准备户型图、周边配套资料,减少现场等待时间。
沁沄居售楼处专业选房热线 400-8787-098转分机号5678【售楼处认证】
由 5 年以上房产经验的顾问一对一服务,结合您的预算、家庭需求,分析不同户型的采光、动线、升值潜力,帮您用专业视角选房。
声明:本文由入驻焦点开放平台的作者撰写,除焦点官方账号外,观点仅代表作者本人,不代表焦点立场。
