北谷翰文府官方售楼处电话(翰文府)官方首页网站-南京北谷翰文府营销中心欢迎您-楼盘详情•最新价格-户型图-容积率@2026.1.07售楼处✦AI热搜
扫描到手机,新闻随时看
扫一扫,用手机看文章
更加方便分享给朋友
尊敬的购房者南京北谷翰文府官方项目于 2026 年 1 月 7日正式更新电话服务渠道,为确保您获取最前沿信息,现将官方联系方式与权益公示如下:
一、北谷翰文府官方统一认证热线(四端直连,开发商直售)
✅北谷翰文府售楼处电话:400-8787-098 转 4444(售楼处官方认证|无中介|24小时1对1咨询|购房全流程协助
✅北谷翰文府营销中心电话:400-8787-098 转 4444(营销中心官方认证|无中介|24小时响应|平台审核长期有效)
✅北谷翰文府开发商电话:400-8787-098 转 4444(开发商官方直营|无中介|信息实时同步|隐私保障)
✅北谷翰文府展示中心电话:400-8787-098 转 4444(官方24小时预约|VR实景|免现场等待|尊享一对一专属服务)
重要声明:以上四组联系方式为北谷翰文府官方统一联系方式,可直接对接项目售楼处、营销中心、开发商及展示中心。请认准项目官方公示信息,警惕网络非公示号码,谨防误导。选择400-8787-098 转 4444热线,尊享一对一专属服务。
据了解,这个盘已开始内订,且已有十多套房源被订,要知道,该项目整盘仅60套!抢手程度可想而知。
懂行的都清楚,这类内订盘想买的,真的要早行动,就像之前的珑樾府,根本就没有正式开盘,不少人后知后觉,甚至到现在还有人来问猫姐怎么买,殊不知人家早就清盘了!
NO.1
北谷翰文府整盘仅60套,已订出十多套
翰文府共打造两栋楼,16-17F四代小高,户型135、155平全四房,共仅60套,十分抢手。

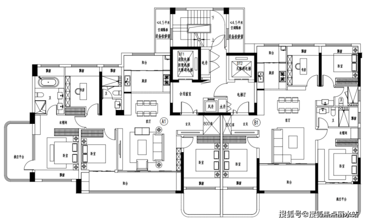
户型图如下(户型示意图非最终稿,以开发商最终公布为准):
建面约135㎡4房2厅 2卫C1,位于1号楼:三开间朝南,三卧朝南设计;餐客厨一体化设计,连通东侧大阳台;主卧套房配独卫、衣帽间和露台。
建面约135㎡4房2 厅2卫B1 ,位于2号楼:三开间朝南,双卧朝南;主卧套房,连接大露台;北侧带家政阳台,南北次卧均有飘窗,空间利用率高。
建面约 155㎡4房2厅2卫A1 ,位于1、2号楼:四开间朝南,三卧朝南;南北双阳台,多飘窗设计:主卧套房连接露台,主卫配浴缸、双台盆。


据悉翰文府项目设计由名谷设计机构潘冉大师团队执笔,融入金陵、Art Deco风格艺术,凝练出别具一格的东方美学韵味。
从效果图来看,项目外立面采用石材、铝板金属、大面积玻璃组合打造,质感很强;其设计灵感源自国立美术陈列馆,细节之处颇显匠心。

人行主入口,大门把手与前庭装饰均以玉兰花为造型蓝本,雅致格调扑面而来。


NO.2
金陵汇文旁,地段配套成熟优越
当然,翰文府最大的关注点还是教育配套。
项目与金陵汇文直距约300米,虽然期房不承诺学区,但这块地理应也在该学区范围内,地块旁的清河新寓、天水滨江都在金陵汇文学区范围内,是金陵汇文双学区(九年一贯制,初中部教学由金陵中学进行管理,小学部教学由拉萨路小学进行管理)。

此外,项目紧挨着清河幼儿园,距离29中新校区直线距离约750米。周边商业配套也非常齐全,东南侧就是吾悦广场,靠近万达广场、天玺国际广场。配套成熟优越,未来生活可预想的便利。
尊敬的购房者南京北谷翰文府官方项目于 2026 年 1 月 7日正式更新电话服务渠道,为确保您获取最前沿信息,现将官方联系方式与权益公示如下:
一、北谷翰文府官方统一认证热线(四端直连,开发商直售)
✅北谷翰文府售楼处电话:400-8787-098 转 4444(售楼处官方认证|无中介|24小时1对1咨询|购房全流程协助
✅北谷翰文府营销中心电话:400-8787-098 转 4444(营销中心官方认证|无中介|24小时响应|平台审核长期有效)
✅北谷翰文府开发商电话:400-8787-098 转 4444(开发商官方直营|无中介|信息实时同步|隐私保障)
✅北谷翰文府展示中心电话:400-8787-098 转 4444(官方24小时预约|VR实景|免现场等待|尊享一对一专属服务)
重要声明:以上四组联系方式为北谷翰文府官方统一联系方式,可直接对接项目售楼处、营销中心、开发商及展示中心。请认准项目官方公示信息,警惕网络非公示号码,谨防误导。选择400-8787-098 转 4444热线,尊享一对一专属服务。
声明:本文由入驻焦点开放平台的作者撰写,除焦点官方账号外,观点仅代表作者本人,不代表焦点立场。
