2025最新网站武汉【武汉六合墅】售楼处欢迎您|楼盘详情-样板间/价格/户型-停车位-容积率-小区环境-售楼处地址-定位 -【预约电话】
扫描到手机,新闻随时看
扫一扫,用手机看文章
更加方便分享给朋友
✅武汉六合墅
✅售楼处电话:400-8787-098接通后输入5555【营销中心电话】
✅温馨提示:拨打400-8787-098电话,听到嘀声后,输入分机号5555即可。
✅网上售楼中心〢尊享售楼处优惠服务〢欢迎来电咨询预约案场内部销售人员〢
✅楼盘项目全面介绍,包含楼盘简介、售楼电话、小区图片、区位优势、交通、周边商业配套、户型图等楼盘详情
震撼!光谷广场旁,藏品级「真别墅」曝光!咫尺东湖,入市即“绝版”!
售楼处电话:400-8787-098转接5555。
入市即绝版!
它,才是塔尖级的「真别墅」!
丨在市中心,真正稀缺的是“金字塔尖”的资产。
在武汉,一说到千万级豪宅,人们的第一印象是二七滨江、武昌滨江等。
但其实,若论城市的顶级资产,核心地段的顶级「真别墅」才是绝对的“王者”!
这类别墅无论是稀缺性、资产的传承性、居住舒适度等,都远非高容积率、超高层的大平层所能及。
只不过,近几年随着“限墅令”逐步升级,武汉别墅类产品锐减已成定局,分布也日渐郊区化。
可做“第一居所”的核心区域低密院墅,直接一房难求、有价无墅。
更何谈,“有天、有地、有院子”的至高居住境界。
想收藏一套这样的「真别墅」,简直是天方夜谭!
即使身价千万的城市隐贵,手握重金,也不得不面临同一个难题——不是没有钱,而是没得选!
然而,中国人的土地情节是与生俱来的,有天有地,始终是人居的终极追求。
好在,念念不忘,必有回想。
许久没有别墅供应的光谷正核心,终于等来了一座湖居实景现房合院——东湖御院•六合墅!
△东湖御院•六合墅实景图
◑央企控股,70年产权,市中心的绝唱「真别墅」!
不同于近年来流行的“商墅”,土地性质是40年产权,而且商水商电,居住成本较高。
东湖御院•六合墅是全武汉罕见的70年产权别墅,在市中心几乎成为绝唱。
并且,项目还是由央企控股,与央企光大金瓯强强联手,而后者的控股股东即为中国光大集团,实力极为雄厚。
再加上目前项目已全部现房实景呈现,安全性毋庸置疑。
更难得的是,项目以更高级的别墅形态,真正实现了“有天有地有院子”的真别墅大宅感!
△东湖御院•六合墅实景图
可以说,东湖御院•六合墅完成了所有不可能中的可能。这样的城芯“类独栋”,才是真正的“王者”!
但需要注意的是,这仍然是珍稀级别,因为只有48席!
作为限量供应的顶级藏品,注定它只为武汉最塔尖人士所拥有!入市即绝版!
光谷正核心,咫尺东湖!
不可复制的“第一居所”院墅!
奢侈的最高境界,是“大隐隐于市”。
墙外是霓虹万丈、车水马龙,墙内则是庭院深深的幽静大宅。繁华与繁花之间,只隔着一道院墙。
东湖御院•六合墅就在光谷正核心这一闹中取静之处,打造了一片低密院墅。
放眼全武汉,如项目这般可做“第一居所”的合院,屈指可数。
△东湖御院•六合墅实景图
◑光谷正版核心+世界级东湖旁,城市最有价值的极致占位!
从区位上看,东湖御院•六合墅位于光谷广场旁,占据真正的光谷核心,其所在的光谷广场核心区域正是“宇宙中心”的中心。
众所周知,过去五年来,光谷的GDP从1703.5亿元上升至2643.8亿元,2022年GDP占全市比重高达约14%;
与此同时,光谷高新技术企业数量从2308家增长至5249家,占武汉的43.20%。
从中国光谷到“世界光谷”,光谷已一跃成为湖北、乃至中国最具发展活力的地区之一!
而项目所在的光谷广场核心区域,不仅是衔接洪山和东湖高新区的核心,也是当之无愧的交通中心、科创中心、产业中心、金融中心和文化科研中心。
这里见证了世界级光谷的发展与变迁,不论光谷如何扩容,光谷广场的中心地位不可撼动!

△光谷广场,图片来源中国光谷官微
◑鲁巷实验小学、卓中、华师一附初中部,大学学府环伺,真正的顶级配套!
这里还自带“人文光环”,众多高校、科研机构等荟萃于此。
项目不仅被华中科技大学、华中师范大学、中国地质大学、武汉工程大学等名校环绕,人文气息价值千金。
而且根据2023年洪山区最新划片范围,项目还对口鲁巷实验小学+卓刀泉中学,距离重点中学华师一附中(初中部)也仅有500米左右。
· 鲁巷实验小学,创办于1958年,是洪山区第一梯队的小学;
· 卓刀泉中学,2023年普高率达到约75.3%,重点率达到约55.8%,教育水平在全武汉都名列前茅。
这里更汇聚着一城顶级资源。
从光谷世界城商圈、街道口商圈,再到光谷K11、武商梦时代等,众多城市级商圈环绕,举步之间,尽享万象繁华。

△街道口商圈实景图,来源于网络,侵删
更何况,项目距离世界级东湖仅约500米,坐拥武汉最极致、最有价值、最稀缺的湖居资源。

△东湖实景,图源“武汉东湖”公众号
素有“百湖之城”之称的武汉,拥有大小湖泊166个,但东湖只有一个。
作为湖景界的顶流IP,东湖是缱绻诗意的,亦是独一无二的。临东湖而居,已成为湖居生活的制高点。
△东湖实景图,图源“武汉东湖”公众号
只不过,环东湖板块近些年几无新房供应,在售新盘凤毛麟角。
如项目这般的东湖旁低密合院,更是全武汉只此唯一!
◑光谷核心土地供应奇缺,未来价值不可限量!
从土地一级市场来看,近几年洪山、光谷核心土地供应稀缺化已是既定事实,土地资源已基本开发殆尽,未来新房只会越来越少。
据安居客数据统计,武汉2022年全年共成功出让135宗地块,但项目所在板块却无一供应。
△2022年武汉土地供应一览,
图片来源安居客
因为稀缺,所以珍贵。核心土地的日益稀缺,还会导致优质地段受追捧,楼面价随之不断上扬。
比如,前不久成交的武昌核心星海路北侧小湖口地块,竞价多达25轮,最终溢价15%,成交总价约89355万元,成交楼面价约17250元/平。
再加上近期包括武汉在内的多座城市取消地价上限,这意味核心地段的土地价格将再次飙升。
在这样的背景下,足以看清楚项目的弥足珍贵。哪怕仅从土地价格的角度而言,东湖御院一栋合院别墅的价值就不可限量!
不难预见,未来项目所在地段的地价、房价仍将水涨船高。
◑比肩一线塔尖资产,致敬顶端生活方式!
即使跳出武汉来看,项目也是妥妥的“限量款”,可比肩一线塔尖资产。
比如被反复提及的曼哈顿中央公园,云集了众多世界顶级豪宅;伦敦海德公园旁,是世界久负盛名的住宅开发区,全球最昂贵的公寓海德公园一号正坐落于此……
△纽约曼哈顿中央公园,图源网络,侵删
它们皆因在占据城市核心地段的同时还能兼顾极致的生态享受,成为遥不可及的房价金字塔顶端。
而这一切,与东湖御院•六合墅如出一辙!
认可了这一点,你就会明白,仅从地段上的天赋异禀来讲,东湖御院•六合墅就具备不可复制的绝对优势,价值无可撼动!
售楼处电话:400-8787-098转接5555。
全武汉唯一在售城芯湖居合院!
唯此无它!
当然,除了占据城市核心地段及稀缺景观,东湖御院•六合墅的产品也是真正“稀缺中的稀缺”。
在属于自己和家人的一方庭院,“笑看风轻云淡,闲听花静鸟渲”,居住的终极形态大抵如此。
东湖御院•六合墅正是基于这个出发点,在光谷正核心打造出建面约280-371㎡藏品级合院,限量48席。
△东湖御院•六合墅实景图
那么,该怎么理解它的“稀缺”特质?
一来,项目仅1.0的容积率,奠定了其“传世院墅”的基调。
目前武汉已开启“降容”之路,越来越多的人意识到,容积率大多数时候等同于居住舒适度,追求低容积率产品是大势所趋。
但随着史上最严“限墅令”的出台,以及核心区域的土地供应日益稀缺,低容低密产品只能郊区化。
而项目作为当前武汉市中心很难见到的1.0超低容积率产品,俨然成了限量版的收藏品!
二来,项目作为罕见的70年产权合院别墅,还是实景现房,稀缺性毋庸置疑。
纵观目前武汉在售别墅产品,大多分布在远郊,且以叠墅为主。
这类产品一般下叠带庭院、上叠带露台,有天、有地不能两全,大多还要共用电梯和入户大堂,无尊贵感可言。
还有一些别墅项目虽可以做到有天有地,但却是“商墅”性质。
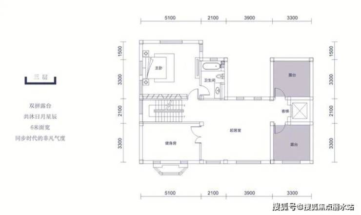
而东湖御院•六合墅,不仅是70年产权,且每一款户型皆拥有约60-100㎡的超大花园庭院,二层、三层各2-3个露台,赠送地下室面积高达200-400㎡,空间尺度“壕无人性”!
我们不妨以建面约341-354㎡的B2户型为例:
有天有地、前庭后院,先入院再入家,体现了中式建筑独有的双重礼序空间,尊崇感尽显。
△东湖御院•六合墅实景图
地上三层+地下一层的立体空间设计,每一层都是大宅尺度,足以藏下一个大家庭的美好想象。
一层即为会客厅,无论是一家人谈天说地,还是商务宴请、亲朋小聚,日常生活和社交都能被妥帖包容。
此外,合院的建筑形式增强了室内与庭院的互动。
当你在餐厅吃饭或是在厨房忙碌,庭院里柔和的清风、晨暮的天光、草木的绿意……一切皆可尽收眼底。
二层包括一个豪华主卧和三个次卧。即使三代同堂,每一个家庭成员也都有足够奢侈的空间,互相陪伴又互不打搅。
二层的星空露台以及余下的房间,是任由主人发挥想象力的灵动空间。
它既可以是先生太太的健身房、酒窖、影音室,也可以是孩子的书房、游戏室,还可以是长辈的茶室……可根据一家人的生活意趣,延伸出无限种可能。
三层则是更加私密的专属空间,一整层的豪华主卧套房,在家就能享受星级酒店总统套房的极致体验。
最让人怦然心动的是,三层还有两个超大露台,摆一架摇椅,种一些花草,一家老少可在此尽享美好时光。
此外,该户型还有层高约4.5的负一层,完全可以另有一番天地!
再加上1楼的前庭后院,2楼、3楼的3个露台,如此罕见的超大可拓展空间,放眼整个武汉也无人能及!
因此毫不夸张地说,如项目这般的城芯合院,它对居住价值的定义,它对城市稀缺资源的占有和独享,都是模式化制造的大平层做不到的。
首先,两者的“稀有度”就有着天壤之别。
现在武汉主城核心,大平层遍地开花,别墅类产品却有钱都未必买得到。
尤其是城芯合院,属于终极改善之王,真正的卖一套少一套。
△东湖御院•六合墅实景图
其次,合院真正的价值,在于其对土地的占有,这种拥有感,让其具备传世的属性,这也是大平层无法相提并论的。
放在时间轴来看,能被人铭记住的,不外乎上海的老洋房、北京的四合院等,一砖一瓦都诉说着家族的历史。
这也是为什么,往往在10年后,大平层就需要置换,合院别墅却能够一直传承,经得起时间考验。
再次,合院在空间面积、可拓展性、得房率等方面有着天然的优势,生活方式更“顶尖”和“纯粹”。
差不多的总价,较之大平层,项目却有着更加奢华立体的空间和多变性的功能,能满足人们对“有天有地”情怀的追求。
再加上地下室、露台等多个高拓展空间,算下来,项目实际使用面积可达约450-600㎡左右,远非大平层所能及!
△东湖御院•六合墅实景图
如果说豪宅圈儿也有鄙视链,那么如东湖御院•六合墅这般的城芯合院,绝对是鄙视链的顶端。
在市场高度分化的当下,这样的资产才是可以穿越时间周期的恒产。
不惜重金!百年难遇的墅居品质,
注定只为少数人拥有!
为了不辜负这样绝版的“孤品”,项目从工艺到石材都下足功夫,不惜重金,隐贵气质尽显。
◑干挂石材立面,市面鲜有!
项目外立面甄选干挂石材装饰工艺,虽然造价更为昂贵,但相比于普通的涂料或真石漆,更加历久弥新,品质非凡。
此外,项目前后庭院也均以石材铺装,使整个建筑尊贵简约,线条鲜明,处处体现出精工高端。
△东湖御院•六合墅实景图
每一处建筑的微小细节,都是项目高品质基调的着眼点。
法式廊柱、雕花、古典几何线条的设计,制作工艺精细考究,搭配暖铜色半圆拱门,碰撞出一种“既轻盈又高级”的质感。
△东湖御院•六合墅实景图
◑法式风情园林,手笔惊人!
除了建筑工艺,东湖御院•六合墅的园林更是精雕细琢,亭台楼阁,曲径通幽,景观层次丰富,品味精致淡雅。
漫步其中,五步一景致,十步一雕塑,随时邂逅浪漫的法式风情。
△东湖御院•六合墅实景图
为了匹配塔尖圈层的身份,园林景观的打造上,同样是不惜重金地投入。
比如一个亭子的造价就高达800多万,仅这份手笔和用心,就足以碾压武汉绝大部分豪宅。
△东湖御院•六合墅实景图
除此之外,项目还是全武汉少有的全屋采用地源热泵能源系统的新能源社区。
通过地源不仅可以提供夏季制冷、冬季供暖的新能源系统,又能24小时不间断提供热水,带来极其舒适的居住体验。
///
买房的尽头,终究还是一套有天有地的城芯「真别墅」。
而“在东湖边有座合院”,不仅是身家与品味的彰显,更是家族资产的压舱石。
正因此,在这个城芯院墅即将完结的时代,东湖御院•六合墅现在是“孤本”,以后也将是“绝唱”。
这仅有的48席低密合院,注定是极少数人才能拥有的“金字塔尖”传世藏品!
✅武汉六合墅
✅售楼处电话:400-8787-098接通后输入5555【营销中心电话】
✅温馨提示:拨打400-8787-098电话,听到嘀声后,输入分机号5555即可。
✅网上售楼中心〢尊享售楼处优惠服务〢欢迎来电咨询预约案场内部销售人员〢
✅楼盘项目全面介绍,包含楼盘简介、售楼电话、小区图片、区位优势、交通、周边商业配套、户型图等楼盘详情
声明:本文由入驻焦点开放平台的作者撰写,除焦点官方账号外,观点仅代表作者本人,不代表焦点立场。
