武汉城建江南岸售楼处电话→武汉城建江南岸售楼中心首页网站→武汉城建江南岸楼盘百科详情→24小时电话
扫描到手机,新闻随时看
扫一扫,用手机看文章
更加方便分享给朋友
武汉城建江南岸售楼处电话:400-8787-098转分机号5678【售楼处位置】
武汉城建江南岸售楼处电话:400-8787-098转分机号5678【营销中心】
武汉城建江南岸楼盘详情4008787098-转分机号5678(房价,价格,地址,户型图,交通,周边配套,备案价,楼盘详情,售楼处电话,售楼处地址,最新房源,最新价格,最新动态,最新进展等详情)

处
暑
拿地信息:p(2024)118号地块由武汉地产集团有限责任公司(武汉城建)拍得成交价78140万元,楼面价约112336.8平,溢价约8.3%.
一、基础信息售楼处电话400-8787-098接通后输入5678【营销中心】
1.项目位于武昌区临江大道与铁机路交汇处

2.开发商:武汉城建滨江置业有限公司/武汉城建
3.项目名:武汉城建·江南岸
5.宣传语:潮起江南,岸立世界
二、规划与设计
1.项目占地约2.58万方,总建面约8.97万方,住宅6.3万方,容积率2.49.共402户,户均157平,定位改善住宅.

2.项目规划6栋住宅,4栋30-31层高层 + 2栋44层超高层,全部东南-西北朝向,一字错位排布确保每栋无遮挡观江.
3.产品特色
✿创新观江设计:全景落地Low-E玻璃幕墙,143㎡户型配约9米瞰江横厅,183㎡户型采用“双全景舱”设计,主卧270°U型玻璃幕,最大化江景视野。优化后达约113%.
✿规划约2500㎡双层会所 + 约800㎡开放式商业(咖啡轻食、艺术空间等,配套4000㎡风雨连廊及架空层空间.
三、户型分布
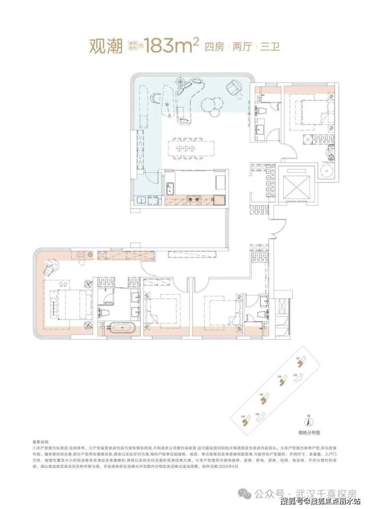
1.户型分布:建面143-183平艺术官邸
2.户型图

143㎡户型配约9米瞰江横厅,183㎡户型采用“双全景舱”设计,主卧270°U型玻璃幕,最大化江景视野。优化后达约113%.
四、周边环境&项目实景
1.周边环境
2.项目实景
五、区位价值&交通
区位分析:项目位于武昌区长江二桥和二七长江大桥中间,双桥景观尽收眼底,距离长江近200米,直面汉口滨江天际线(周大福中心、泰康总部等),武昌江滩公园已修建,著名打卡景点、铁机路灯塔、向日葵🌻花海(滑至底部欣赏向日葵🌻花海)
微观分析:项目属于武昌杨园板块,靠青山片,武昌滨江商务区辐射范围,距离约3公里,项目南侧是杨园片老社区,近年改造缓慢,也缺乏知名学区加持,区域板块相比武昌沙湖、武昌滨江商务区偏劣势.
交通:地铁5号线余家头站1.2公里,10号线余家头站约800米(在建)
六、学校&医疗
◎附近有武汉市杨园学校、武昌中华路小学(橡树湾校区)等
医疗:紫荆医院、武昌区第七医院等3公里范围内

七、商业
底商:项目配建约800平底商.
大型综合体
八、竞品
周边竞品:中寰悦府、华发外滩玺
✅ 核心优势
1. 一线江景+稀缺地段,武昌滨江1.5环内,6栋住宅沿江排开,户户无遮挡瞰江,部分户型实现270°环幕视野,对比汉口滨江4W更具性价比。
2. 准四代住宅设计
超高得房率(106%),143㎡户型实得约151㎡.183㎡户型得房率(113%),实得约206平,183户型带IMAX环幕厅,创新“双全景舱”主卧设计,模糊室内外界限。 外立面采用Low-E玻璃+阳极氧化铝板,弧形幕墙模拟江水流动,兼具美学与采光。
缺点:
1. 西北向观江,采光受限.户型设计朝向西北看江,江景视野开阔,光照受到一定影响.户型主要朝西北,冬季日照较弱;西侧楼栋靠近铁机路,低楼层或受噪音影响。
2. 教育资源未明确周边学校(如中华路小学橡树湾校区)尚可,但项目未官宣对口名校,学区确定性弱于竞品(如中寰悦府、中海东湖九章等)。
3.开发商是武汉城建集团.在武汉开发项目以刚改产品居多,豪宅开发运营经验相对欠缺,此项目也是城建集团今年做高端改善项目的标杆之一
博主点评:江南岸以极致江景+四代产品”锁定高端改善客群,适合追求稀缺景观、不苛求学区的买家。片区距离武昌滨江有约3~4公里,周边的商业配套城市界面也明显弱于武昌滨江.若预算有限,可关注武昌滨江二手次新房;有重点学区,建议对比月亮湾、中寰悦府等竞品.
附件:
武昌江滩公园(铁机路灯塔)、向日葵🌻花海
售楼处电话:400-8787-098转分机号5678【售楼处位置】
售楼处电话:400-8787-098转分机号5678【营销中心】
楼盘详情4008787098-转分机号5678(房价,价格,地址,户型图,交通,周边配套,备案价,楼盘详情,售楼处电话,售楼处地址,最新房源,最新价格,最新动态,最新进展等详情)
声明:本文由入驻焦点开放平台的作者撰写,除焦点官方账号外,观点仅代表作者本人,不代表焦点立场。
