项目简介@武汉城建承宁府@售楼处电话-售楼中心-首页网站→楼盘详情→400咨询专线
扫描到手机,新闻随时看
扫一扫,用手机看文章
更加方便分享给朋友
武汉城建承宁府售楼处电话:400-8787-098转分机号6666【营销中心】
楼盘详情4008787098-转分机号6666(房价,价格,地址,户型图,交通,周边配套,备案价,楼盘详情,售楼处电话,售楼处地址,最新房源,最新价格,最新动态,最新进展等详情)
【项目位置】硚口区武胜路与京汉大道交汇处
【产权年限】70年
【交房标准】精装
【总占地面积】约3.24万方
【总建筑面积】约11.19万方
【绿地率】尚未公开
【容积率】2.5
【总户数】546户
【车位数量】593个
【车位比例】1:1.09
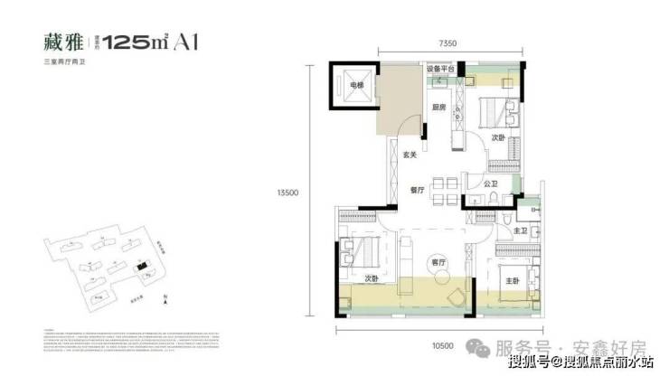
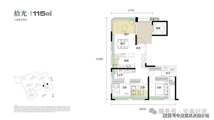
【户型】115-125㎡ 三房
【物业费】尚未公开
【物业公司】尚未公开
区位优势
项目区位图
项目位于项目位于硚口区汉正街板块,紧邻内环线,妥妥的武汉核心位置。
交通
自驾:项目出来就是航空路立交,纵横汉口中心;京汉大道、解放大道和利济北路的主轴动脉交汇的立体式交通,极速出行;鹦鹉大道则可直达汉阳。
地铁:项目距离地铁1号线利济北路站约200米,距离地铁2号线中山公园站约800米。
路网示意图(图源网络)
景观
项目到中山公园直线距离约600米,周边还有硚口公园。
中山公园实拍图(图源网络)
学校
项目周边有崇仁路小学、同济附小、武汉市十一初、同济附中、武汉市十一中、武汉外国语学校等全龄段优教。
武汉外国语学校高中部实拍图(图源网络)
商圈
项目到K11直线距离约100多米,到国际广场直线距离约300多米,到恒隆广场直线距离约400多米。
K11实拍图(图源网络)
医疗
项目到同济医院直线距离约400米,到协和医院直线距离约1公里,周边还有武汉市第一医院、武汉市第三人民医院、武汉市第四医院等优质医疗资源。
同济医院实拍图(图源网络)
产品亮点
效果图
约2.5容积率,首开楼栋最高约98%综合得房率,中心罕有的低密住区,社区整体抬高近1米,楼栋整体退让约21米,柔化城市界面,打造尺度宜人的商业街“漫街”。
效果图
酒店式环岛落客区,超70米东方豪门,集萃知足厅、玉带石桥、落差超5米瀑布等景观,选取名山原石,营造立体山水韵味,全楼栋皆以风雨连廊串联,廊中有景,眼中有画,归家有趣,无论晴雨出入从容。
效果图
对标安缦度假酒店,打造约1800m²下沉式会所,奢配标准四泳道恒温泳池、健身房、棋牌室、私宴厅、书吧、咖啡吧六大酒店式雅奢场景。
效果图
新风、中央空调、地暖三大奢宅标配,全屋配备智能家居系统,臻选日系、德系等世界一流的精工品牌。
户型鉴赏
武汉城建承宁府售楼处电话:400-8787-098转分机号6666【营销中心】
楼盘详情4008787098-转分机号6666(房价,价格,地址,户型图,交通,周边配套,备案价,楼盘详情,售楼处电话,售楼处地址,最新房源,最新价格,最新动态,最新进展等详情)
声明:本文由入驻焦点开放平台的作者撰写,除焦点官方账号外,观点仅代表作者本人,不代表焦点立场。
