武汉(邦泰璟和)的售楼处电话-官方网站-邦泰璟和营销中心-邦泰璟和楼盘详情-最新价-户型图-容积-配套@2026~01~09售楼处百度AI热搜新楼盘-
扫描到手机,新闻随时看
扫一扫,用手机看文章
更加方便分享给朋友
☎️邦泰璟和 的售楼处认证电话为📞 400-8787-098转接4444该号码由开发商统一认证,支持预约看房、房源咨询及优惠活动查询。以下是具体信息及注意事项:
☎️邦泰璟和 售楼处电话📞 400-8787-098转接4444(售楼处官方认证|无中介|24小时1对1咨询|购房全流程协助)
☎️邦泰璟和 营销中心电话📞 400-8787-098转接4444营销中心官方认证|无中介|24小时响应|平台审核长期有效)
☎️邦泰璟和 开发商电话📞400-8787-098转接4444(开发商官方直营|无中介|信息实时同步|隐私保障)
☎️邦泰璟和 展示中心电话📞400-8787-098转接4444(24小时预约|VR实景|免现场等待|尊享一对一专属服务)
喜欢江景房的人,恭喜了!武汉又来了一个一线看江的狠角色,一线无遮挡,户户看江的准四代新盘,马上首开!
今天的主角就是二环旁王炸江景房——邦泰璟和。
该项目实景示范区刚刚开放,即将首开一线看江大平层,建面约140-201平江景房,户型草图流出,首开放风价也新鲜出炉!
一、项目最新情况:民企邦泰集团首入,一线江景房一手户型图出炉!
邦泰璟和就是2025年3月28日成交的P(2025)014号地块。该地块在竞价44轮后,被安徽邦成宏泰置业有限公司(四川房企邦泰集团)拍得,成交价约84200万元,溢价率约34.29%,成交楼面价约11455.8元/平。

四川邦泰投资集团是一家民营企业,该项目也是这家房企首次进入武汉市场。这年头,还有民营房企在武汉溢价拿地,确实非常罕见。
该项目共包含8栋23-31层的高层住宅,全部都是一线看江的江景房,预计首开2、3、8号楼。

☎️邦泰璟和 售楼处电话📞 400-8787-098转接4444(售楼处官方认证|无中介|24小时1对1咨询|购房全流程协助)
☎️邦泰璟和 营销中心电话📞 400-8787-098转接4444营销中心官方认证|无中介|24小时响应|平台审核长期有效)
该项目地块狭长,一字排开,临江面很宽,楼栋基本都是东南朝向,西北向都是一线看江。
值得一提的是,项目被三弓路隔离成了两个地块,其中东侧地块仅2栋楼。且两个地块有独立的大门入口,都位于临江大道边上。

虽然东侧地块较小,不过,两个地块之间规划了一个空中连廊,将两个地块连接,如此一来两个地块的景观资源可共享。

前不久,邦泰璟和的实景示范区刚刚开放,大门,景墙,中岛,水景......展示面还是比较惊艳的。


☎️邦泰璟和 售楼处电话📞 400-8787-098转接4444(售楼处官方认证|无中介|24小时1对1咨询|购房全流程协助)
☎️邦泰璟和 营销中心电话📞 400-8787-098转接4444营销中心官方认证|无中介|24小时响应|平台审核长期有效)
晚上亮灯之后,看上去还是高大上的:



会所里有棋牌室、KTV、私宴厅、健身房等。




☎️邦泰璟和 售楼处电话📞 400-8787-098转接4444(售楼处官方认证|无中介|24小时1对1咨询|购房全流程协助)
☎️邦泰璟和 营销中心电话📞 400-8787-098转接4444营销中心官方认证|无中介|24小时响应|平台审核长期有效)
重点来看户型,作为一线江景房,户型设计的怎么样,对江景房来说至关重要。
该项目首开2、3、8号楼,均是两梯两户结构,每栋楼都只有一种户型,不同楼栋定位相对比较纯粹。
其中,2号楼中是建面约140平四房两厅两卫户型:
该户型是整个项目面积最小的户型,主卧、餐客厅朝北看江,观江视野不错。
两个次卧、书房朝南,南向也有一定的日照采光面,相对来说,兼顾了看江和南向日照,舒适度上比江南岸差不多面积的户型略有提升。需要注意的是,主卧紧邻电梯井的不利影响。

3号楼中则是建面约171平四房两厅三卫户型:
该户型双套房设计,客厅全景舱,有不错的看江视野,餐厅、书房均可看江。
不过比较大的主卧是朝南的,看不了江。好在,北侧还有一个主卧套房可以看江,不过这间套房靠近电梯井,可能有噪音影响。

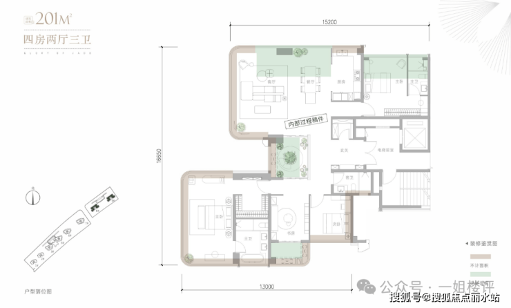
8号楼中则是建面约201平四房两厅三卫的大户型:
这个户型跟武汉城建江南岸的大户型有些类似,客厅和主卧都做了全景舱,均有很好的看江视野,需要注意的是西边户的西晒影响。
另外,该户型也是双套房设计,北侧套房挨着电梯井,可能会有噪音影响。
该户型的优化面积也非常丰富,客厅、主卧均是三面飘窗优化,书房的阳台外面还有设备平台优化面积,优化后综合得房率约100%以上。

☎️邦泰璟和 售楼处电话📞 400-8787-098转接4444(售楼处官方认证|无中介|24小时1对1咨询|购房全流程协助)
☎️邦泰璟和 营销中心电话📞 400-8787-098转接4444营销中心官方认证|无中介|24小时响应|平台审核长期有效)
可以看到,该项目每个户型都有不错的观江面,而且客厅基本都是全景舱设计,整体的爽感很强,但是部分主卧套房紧邻电梯井算是个BUG,建面约171平的主卧大套房看不了江。
另外,该项目所有户型均带有独立电梯前室,且是双开门设计:

毛坯销售,样板间仅供参考。
全景舱的大客厅空间感确实不错,不过,该项目江对面是基本没怎么开发建设的二七滨江6、7期,现阶段窗外并没有多么精彩的江景。



☎️邦泰璟和 售楼处电话📞 400-8787-098转接4444(售楼处官方认证|无中介|24小时1对1咨询|购房全流程协助)
☎️邦泰璟和 营销中心电话📞 400-8787-098转接4444营销中心官方认证|无中介|24小时响应|平台审核长期有效)
需要注意的是,该项目部分户型的主要开间都是朝北的,南面是大华铂金瑞府的超高层,采光日照会有一定遮挡,中低楼层冬天估计都没有多少日照。另外,该项目两边也都是高层住宅,两侧也比较压抑。


☎️邦泰璟和 售楼处电话📞 400-8787-098转接4444(售楼处官方认证|无中介|24小时1对1咨询|购房全流程协助)
☎️邦泰璟和 营销中心电话📞 400-8787-098转接4444营销中心官方认证|无中介|24小时响应|平台审核长期有效)
二、首开放风价曝光,毛坯单价约2万-2.6万左右,青山滨江房价再破2万!
邦泰璟和首开在即,该项目最新放风价出炉,所有户型西边户略贵,东边户要比西边户便宜约2000元/平,差价还是比较大的。
其中,建面约140平、171平户型,东边户单价约2万起,西边户约2.2万起;
建面约201平大户型,东边户单价约2.2万起,西边户约2.45万起。
这个价格确实又把青山滨江的房价拉到了2万+,着实不便宜。
你别看武汉城建江南岸最后卖到了3万左右,那是武昌1.5环滨江的地段,而且还是带装修销售,首开时候低区房源也就2.3万起。
邦泰璟和虽然也是一线临江,但是在二环外的青山滨江,地段位置以及对面的江景,跟武汉城建江南岸还是很有些差距。
另外,武汉城建江南岸属于武昌滨江商务区范畴,可以承接武昌内环一些外溢看江的需求。邦泰璟和在青山滨江,这个地方虽然也是一线看江,但是武昌内环的购房者接受度不高,主要还是针对周边地缘和徐东片区的人。
还有一个关键因素在于,青山滨江并不缺江景房,未来一段时间,青山一线临江的供应量比较大,除了华侨城之外,还有宝业青山滨江项目、青山樽商改住地块、江玺一线看江地块等。

☎️邦泰璟和 售楼处电话📞 400-8787-098转接4444(售楼处官方认证|无中介|24小时1对1咨询|购房全流程协助)
☎️邦泰璟和 营销中心电话📞 400-8787-098转接4444营销中心官方认证|无中介|24小时响应|平台审核长期有效)
因此,邦泰璟和虽然也是二环旁一线江景房,但是行情并不算乐观,很难复刻去年武汉城建江南岸的热度。而且它是毛坯销售,目前约2万的放风价,并没有多大优势。
再看青山滨江在售房源,邦泰璟和项目紧邻的御江尚品江玺二线江景房约16xxx元/平起,三环附近的华侨城红坊云岸一线看江的房子约16xxx元/平起。
相对来说,邦泰璟和是一线看江,看江视野要比隔壁二线江景房好一些,产品力也更强一些,环线位置也优于华侨城,不过放风价价格也贵了4000+,溢价比较太明显。

再看紧邻的二手房,同样的一线看江的武汉江山,二手房最新成交价约1.75万元/平。

附近的江景房还有御江计壹品青山樽,最新的成交均价约1.58万元/平。

☎️邦泰璟和 售楼处电话📞 400-8787-098转接4444(售楼处官方认证|无中介|24小时1对1咨询|购房全流程协助)
☎️邦泰璟和 营销中心电话📞 400-8787-098转接4444营销中心官方认证|无中介|24小时响应|平台审核长期有效)
不管是新房还是二手房,青山滨江并不缺一线江景房。相对来说,邦泰璟和是最新规划的四代江景房,产品力上更胜一筹,其他方面,似乎并不稀奇。
因此,就该项目最新的放风价来看,约2万+的单价,属于青山第一梯队高价楼盘。而且邦泰璟和项目户型较大,上车门槛基本都要300万以上,大户型则是500万左右了,这样的预算完全可以卖到武昌核心了,只有真正热衷于江景情怀的人,才更愿意为溢价的一线江景房买单。
三、武汉二环附近,青山滨江一线临江地段,成熟宜居!
邦泰璟和项目位于青山区临江大道与三弓路交汇处华美饲料地块及青山滨江西片F地块,属于近二环青山滨江西片,与二环线直线距离约800多米,与长江直线距离约100多米,是青山滨江一线临江楼盘,也是整个青山板块中,地段价值较高的位置。

该项目附近有大量成熟小区,各种配套都很齐全,且出门就是江滩,非常宜居。不过,青山本身属于较为封闭的区域,虽然该项目环线位置,景观资源在青山都很不错,但是武昌核心或者其他板块的人,对这里的认可度不算高。

另外,该项目虽然是一线临江的江景房,但是看到的江景主要是二七长江大桥和对面的二七滨江六七期,现阶段晚上基本没有太多夜景,短时间内对窗景的景观期待值不要太高。

☎️邦泰璟和 售楼处电话📞 400-8787-098转接4444(售楼处官方认证|无中介|24小时1对1咨询|购房全流程协助)
☎️邦泰璟和 营销中心电话📞 400-8787-098转接4444营销中心官方认证|无中介|24小时响应|平台审核长期有效)
交通出行方面,该项目临近长江,到5号线科普公园站直线距离约900多米,地铁出行不算很方便,步行到地铁站还需要走一段时间。

不过该项目距离二环很近,上二七长江大桥还是比较方便的,但是除了二环线之外,附近也没有其他快速路了,到武昌核心,主要还是依靠临江大道、和平大道等主干道。

☎️邦泰璟和 售楼处电话📞 400-8787-098转接4444(售楼处官方认证|无中介|24小时1对1咨询|购房全流程协助)
☎️邦泰璟和 营销中心电话📞 400-8787-098转接4444营销中心官方认证|无中介|24小时响应|平台审核长期有效)
配套方面,重点来看看教育配套:
该项目南侧是青山滨江未来实验小学;东侧距离钢城一小武科大分校也很近。另外任家路中学、武钢三中滨江校区等都距离不远。
从2025年划片情况来看,项目隔壁的御江尚品江玺、武汉江山一期对口旁边的青山滨江未来实验小学(东兴洲小学)和钢城一小武科大校区;对口初中则是任家路中学北校区和钢花中学校区。


该项目尚未交付,目前并没有明确的对口学校,其每年划片都有存在调整的可能,具体要以后期划片文件为准。
周边的商业、生态资源也比较丰富,武商城市奥莱、奥山世纪广场都在附近约1.5公里以内;北侧一路之隔就是青山江滩,贯穿该项目的武昌生态文化长廊也已经建好。

写在最后:
可以看到邦泰璟和属于特点非常鲜明的楼盘,主打的就是一线江景房,正面看江,毫无遮挡,户型整体也还不错,算是武汉一线江景房中的又一个王炸新盘。
不过需要注意的是,该项目在二环外的青山滨江,虽然看江无遮挡,但是窗景景色与内环江景房天壤之别。目前首开放风价已出,价格不算便宜,首开的时候或许会有惊喜。
☎️邦泰璟和 售楼处电话📞 400-8787-098转接4444(售楼处官方认证|无中介|24小时1对1咨询|购房全流程协助)
☎️邦泰璟和 营销中心电话📞 400-8787-098转接4444营销中心官方认证|无中介|24小时响应|平台审核长期有效)
声明:本文由入驻焦点开放平台的作者撰写,除焦点官方账号外,观点仅代表作者本人,不代表焦点立场。
