楼市热搜焦点:太原保利大都汇售楼处电话→太原保利大都汇首页热搜24小时电话→最新房价→楼盘百科详情→营销中心最新发布@售楼处中心
扫描到手机,新闻随时看
扫一扫,用手机看文章
更加方便分享给朋友
✨✨太原保利大都汇售楼处电话:400-778-0670【售楼处已认证】✨ ➢
✨✨太原保利大都汇开发商电话:400-778-0670【售楼处已认证】✨ ➢
✨✨太原保利大都汇营销中心电话:400-778-0670【售楼处已认证】✨ ➢
售楼处电话、售楼处地址、2025最新楼盘动态、售楼处接待时间、房源优惠、
最新房源价格、周边商业交通医院、在售户型、周边学校、交房时间、得房率、公摊面积、小区位置、小区环境、等楼盘详情!
加推六号楼!央企,长治路,豪宅大平层,准现房,太原保利大都汇
保利大都汇,位于太原长治路,是央企保利开发的一个改善类型住宅。小区地理位置优越,周边地铁,生活,商业等配套齐全。加推六号楼,总高16层,户型193平和202平,成交均价在一万五千五百左右。在售四号楼,户型有230平和235平,总高28层,公摊19.9%。成交均价在一万六七,特价房源成交在一万六千五百左右。精装修,即将交房。感兴趣的朋友,抓紧时间约我实地看房,团购优惠折扣额外享受。
【保利大都汇在售房源统计9月14日】
一:目前主推
4号楼(楼王,一单元)有正常楼层
户型:230平米、235 平米两种,楼栋总高28层,公摊19.7%
①→230中户,成交均价16300左右,二单元少量尾房特价房。
②→235东边户(没有高楼层,只有15层以下),成交均价16300左右,二单元西边户少量尾房价房。

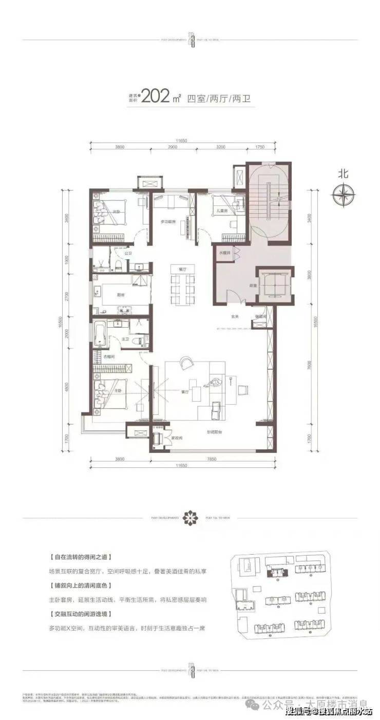
加推6号楼(小高层,总高16层)楼栋公摊18.2%
户型:193平米、202平米,成交均价15500左右,9层以下价格较低。
二:其他尾房房源
1-2层非标户型有毛坯房可选,面积93-202平米,均价13000(毛坯),具体电话或者微信咨询我。电话 13403413254 李经理。
保利大都汇小区一共有六栋住宅楼,总户数为928户。容积率4.5,相对比较高,绿化率25%,楼间距45米,物业由保利物业自持,物业费2.8元。地下车位1258个,车位配比1:1.1。目前在售户型230平和235平,精装修,交房时间为2025年10月。
三:保利大都汇项目优势分析。
首先,地段好,周边生活配套成熟,交通,教育,医疗等方面齐全。
其次,靠谱,央企保利开发建设,交房有保障,后期物业服务好。
最后,小区风格高档,门槛较高,园林设计好。地段稀缺。
保利大都汇项目建筑设风格为现代极简,采用落地窗设计,玻璃幕墙,提高住宅美观。外立面颜色采用莫兰迪高级灰系列,浅白、浅灰色交替使用,空间层次感,立体感突出。

保利大都汇园林景观由怡景国际设计,摩登度假式园林风格,设计灵感源自王维的《辋川别业》。在传统的设计方面之上,增加了许多山泉景石,流水,灯光等元素,提高小区园林的精致和前卫。

✨✨太原保利大都汇售楼处电话:400-778-0670【售楼处已认证】✨ ➢
✨✨太原保利大都汇开发商电话:400-778-0670【售楼处已认证】✨ ➢
✨✨太原保利大都汇营销中心电话:400-778-0670【售楼处已认证】✨ ➢
售楼处电话、售楼处地址、2025最新楼盘动态、售楼处接待时间、房源优惠、
最新房源价格、周边商业交通医院、在售户型、周边学校、交房时间、得房率、公摊面积、小区位置、小区环境、等楼盘详情!
声明:本文由入驻焦点开放平台的作者撰写,除焦点官方账号外,观点仅代表作者本人,不代表焦点立场。
