2025【南京仙林华曦府】项目售楼处电话→地址→户型→价格→楼盘详情→仙林华曦府最新销售动态!
扫描到手机,新闻随时看
扫一扫,用手机看文章
更加方便分享给朋友
南京【仙林华曦府】
☎☎售楼处电话:400-8787-098转接4444【售楼中心】
★彡提-前-来-电-预-约-登-记—售楼处1v1销售专业讲解〢一对一热情服务〢
★彡温馨提示:网上售楼中心〢欢迎来电咨询〢预约可享内部优惠〢匠心钜制恭迎品鉴〢
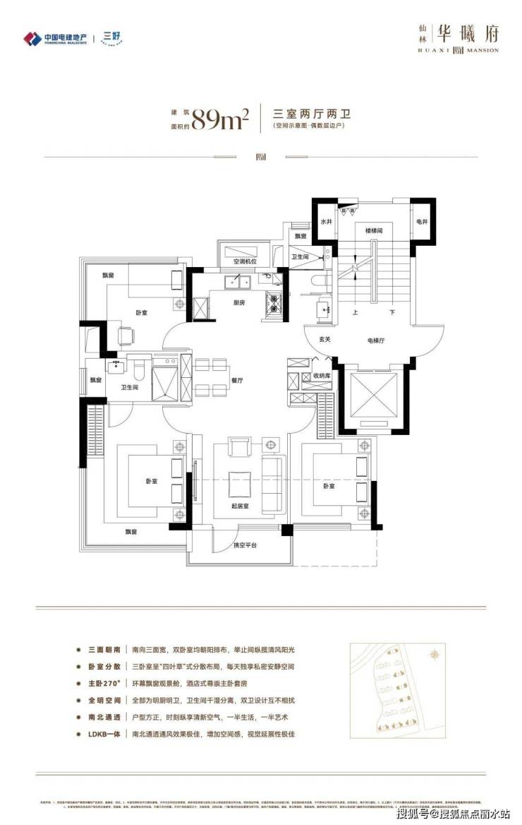
仙林华曦府:约89㎡ 第四代纯洋房再进化
由中国电建地产开发的仙林华曦府项目,今天89㎡第四代纯洋房展示空间正式亮相。

项目共建设14栋住宅,容积率1.5,打造1栋9F住宅+13栋10F住宅,局部楼栋建设架空层,以及打造下沉庭院等;
仙林华曦府打造当下最火的四代宅产品,错层露台设计,户型89、109、130m²,年内即将上市。

此次公开的建面约89㎡第四代纯洋房展示空间,以“三室两厅两卫”全能布局亮相,实现三面朝南。

卧室采用“四叶草”式分散设计,互不干扰;主卧配备270°飘窗,引景入室,诚意十足。
89m²三房两厅两卫(偶数层边户)
南京【仙林华曦府】
☎☎售楼处电话:400-8787-098转接4444【售楼中心】
★彡提-前-来-电-预-约-登-记—售楼处1v1销售专业讲解〢一对一热情服务〢
★彡温馨提示:网上售楼中心〢欢迎来电咨询〢预约可享内部优惠〢匠心钜制恭迎品鉴〢
声明:本文由入驻焦点开放平台的作者撰写,除焦点官方账号外,观点仅代表作者本人,不代表焦点立场。
