2026太原龙城金茂府(楼盘详情,售楼处电话,售楼处地址,最新房源,最新价格,最新动态,最新进展等详情)
扫描到手机,新闻随时看
扫一扫,用手机看文章
更加方便分享给朋友
太原龙城金茂府
太原龙城金茂府售楼处位置电话400-8787-098转销售6666(开发商认证)
太原龙城金茂府售楼处电话400-8787-098转销售6666(售楼处认证)
预约福利:成功预约后,享有折扣福利、并有专属置业顾问全程陪同讲解。



01整体概况
中国金茂系世界500强企业中化集团旗下房地产和酒店板块的平台企业;以“府、悦、墅”三大产品线立足中国高品质住宅市场,践行不断超越的城市人居梦想。“非核心不选,非地标不筑。”这是金茂长期以来始终坚持的择址理念。
龙城金茂府,位于太原南部主轴龙城大街核心,城市级配套完备,是千亿央企中国金茂进军太原的第一盘。定位为金茂高端住宅产品线“府”系产品,是金茂在中国布局的第48座金茂府,也是金茂绿金健康科技住宅的代表作。项目承三晋文化定制归家仪式感;采撷三晋大院规制,龙城历史文化,槐树、玉等元素象征等的代表符号;以太原城市格局为基底,延一湖点睛,水中分之势,以山水为核心,绘制“一轴、一心、一环、九园,府心山水,九园环抱”的园林盛境。因循院落文化府心山水,九园山水;园林整体规划讲究中国院落文化,以“礼序、磅礴、沉稳”为设计理念,用现代手法展现出东方韵味,化“院”为“园”,打造凝瑞园、会芳园、归真园、德馨园、焕彩园、养正园、自在园、居鹤园、静远园九重园境,融合休闲娱乐、圈层聚会、全家庭互动等多样功能,营造出“舒适感、安全感、幸福感、尊贵感、圈层感”的五感空间。
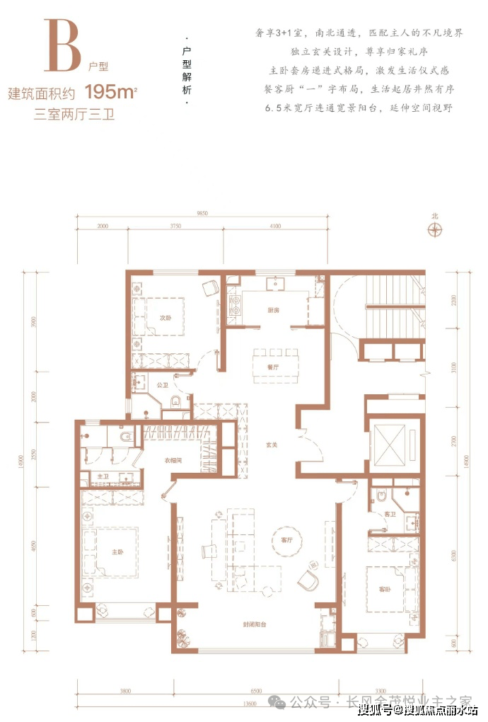
龙城金茂府小区,由12栋高端住宅和4栋写字楼组成,小区配套一所幼儿园,签约山大附小分校。住宅户型有175平,195平和249平。绿化率:30%;容积率:3.5;公摊:16%-25%;总户数:1023;面积:175/195/249/305㎡ ;层高:3.1-3.15㎡;楼高:18-24层;车位:1:1.8;能源费:57.5/㎡/年。



02周边配套
商业:万达广场龙城店,自带;
学校:小区自带幼儿园、山大附小汾东校区;
公园:龙城公园,祥云公园,汾河公园;
医院:白求恩医院;
自驾:龙城大街快速路;

03户型







太原龙城金茂府
太原龙城金茂府售楼处位置电话400-8787-098转销售6666(开发商认证)
太原龙城金茂府售楼处电话400-8787-098转销售6666(售楼处认证)
预约福利:成功预约后,享有折扣福利、并有专属置业顾问全程陪同讲解。
声明:本文由入驻焦点开放平台的作者撰写,除焦点官方账号外,观点仅代表作者本人,不代表焦点立场。
