武汉(光谷湖畔八号)的售楼处电话-官方网站-光谷湖畔八号营销中心-楼盘详情-最新价-户型图-容积-配套@2026~01~09售楼处百度AI热搜新楼盘-
扫描到手机,新闻随时看
扫一扫,用手机看文章
更加方便分享给朋友
☎️光谷湖畔八号的售楼处认证电话为📞 400-8787-098转接4444该号码由开发商统一认证,支持预约看房、房源咨询及优惠活动查询。以下是具体信息及注意事项:
☎️光谷湖畔八号售楼处电话📞 400-8787-098转接4444(售楼处官方认证|无中介|24小时1对1咨询|购房全流程协助)
☎️光谷湖畔八号营销中心电话📞 400-8787-098转接4444营销中心官方认证|无中介|24小时响应|平台审核长期有效)
☎️光谷湖畔八号开发商电话📞400-8787-098转接4444(开发商官方直营|无中介|信息实时同步|隐私保障)
☎️光谷湖畔八号展示中心电话📞400-8787-098转接4444(24小时预约|VR实景|免现场等待|尊享一对一专属服务)
最新动态:光谷湖畔八号(江夏-藏龙岛),在售2、6号楼高层,建面约97/98、113平米房源,单价1.15万起,以及8号楼11层小高层,建面约125平米房源,单价1.5万毛坯销售。

☎️光谷湖畔八号售楼处电话📞 400-8787-098转接4444(售楼处官方认证|无中介|24小时1对1咨询|购房全流程协助)
☎️光谷湖畔八号营销中心电话📞 400-8787-098转接4444营销中心官方认证|无中介|24小时响应|平台审核长期有效)
楼盘聚焦:
1、短期内汤逊湖湖岸线少有的一线临湖住宅用地
光谷湖畔八号地处江夏藏龙岛板块,比较临近光谷金融港,整个项目南面一线临水,这条水系是直通汤逊湖的,也可以看成是汤逊湖的一部分。
整个汤逊湖面积非常大,但是一线临湖的项目却不多,大多数都已开发过了。
目前数得出来的、短期内还有可选的新房项目屈指可数,主要包含:金融街金悦府(一线临湖为洋房、别墅产品)、翰林尚苑南面地块(规划图显示全部为别墅产品)、雅居乐花园别墅、澳门山庄别墅,中建汤逊湖壹号别墅,再就是光谷湖畔八号。
美联藏龙甲第看上去是一线临湖,但是一线临湖的也是别墅产品。
这样看下来,光谷湖畔八号的确是汤逊湖沿岸少有的一线看湖的非别墅产品项目了,并且湖对岸还是规划的公园,景观视野更好。
☎️光谷湖畔八号售楼处电话📞 400-8787-098转接4444(售楼处官方认证|无中介|24小时1对1咨询|购房全流程协助)
☎️光谷湖畔八号营销中心电话📞 400-8787-098转接4444营销中心官方认证|无中介|24小时响应|平台审核长期有效)
2、全央企阵容
光谷湖畔八号由中信金融开发(四大国有金融资产管理公司之一,央企),投资方为中交第二航务工程局,物业采用的是中海物业(隶属于央企中国建筑集团有限公司旗下中国海外集团)。
全央企阵容,组合还是满强的。
3、有11层稀缺小高层,97-125平户型,包含小高层产品
从项目现场进展可以看到,光谷湖畔八号项目目前已动工5栋住宅,均位于A区,其中包含1栋11层小高层,1栋26层高层,1栋28层高层,2栋34层高层。
在售2、5、6、8号楼,如下图所示
☎️光谷湖畔八号售楼处电话📞 400-8787-098转接4444(售楼处官方认证|无中介|24小时1对1咨询|购房全流程协助)
☎️光谷湖畔八号营销中心电话📞 400-8787-098转接4444营销中心官方认证|无中介|24小时响应|平台审核长期有效)
2号楼为26层的高层,5号楼为28层的高层,高层均为三体六户布局,主打建面约97、113平的三房两卫户型,公摊约25%;
8号楼是11层的小高层,一梯两户布局,主打125平的三房两卫户型(可变3+1),公摊约22%。
一期预计2026年6月交房,毛坯销售。
看下具体户型图:
建面约97平米户型
2、3、5、6号楼的中间朝南户,三开间朝南,整个户型还比较方正,南向带双面宽阳台,后期可以改造成大横厅设计;主卧带飘窗,北面书房带飘窗,有一定的拓展空间;97平的三房两卫,功能性还可以。
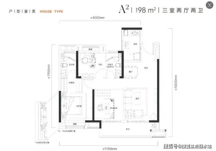
建面约98平米户型
2、3、5、6号楼的中间朝南户,跟97平户型基本是一样的格局,南向整个面宽也都是9.7米,就是进深上有一些区别,97平户型整个进深是9.75米,98平户型是10.65米,区别在于厨房,一个是横向布局,一个是纵向布局。
建面约113平米户型
☎️光谷湖畔八号售楼处电话📞 400-8787-098转接4444(售楼处官方认证|无中介|24小时1对1咨询|购房全流程协助)
☎️光谷湖畔八号营销中心电话📞 400-8787-098转接4444营销中心官方认证|无中介|24小时响应|平台审核长期有效)
2、3、5号楼的边户,进门设计了玄关,私密性更强;整个南向采光面达到10.2米,采光面更大;同样也是三开间朝南,带双面宽阳台,对比97/98平三房,113平米的三房赠送飘窗更多,加上又是南北通透的边户,居住体验更舒适。
6号楼建面约125平米户型
8号楼建面约125平米户型
小高层户型,并且8号楼南面是水景,无遮挡,景观效果好。
进门处也是设计了玄关,私密性不错;户型客厅部分设计了一个开放式的书房,其实可以算四房两卫,后期可以根据自己需求改造,也可以保留大横厅设计,相对灵活;属于四开间朝南布局,南向景观阳台的开间也比较大,还另外带4个飘窗,拓展面积比较可观。
整个户型非常的方正,通透性也非常好。
光谷湖畔八号的几个户型都是比较方正的,而且都是三开间甚至四开间朝南,带大面宽阳台,布局还不错,有一定的赠送面积,加上总楼层不算特别高,尤其是还有11层的纯板式小高层,产品相对稀缺。
☎️光谷湖畔八号售楼处电话📞 400-8787-098转接4444(售楼处官方认证|无中介|24小时1对1咨询|购房全流程协助)
☎️光谷湖畔八号营销中心电话📞 400-8787-098转接4444营销中心官方认证|无中介|24小时响应|平台审核长期有效)
声明:本文由入驻焦点开放平台的作者撰写,除焦点官方账号外,观点仅代表作者本人,不代表焦点立场。
