2026首页苏州国太发展Z22号项目官方网站-国太发展Z22号售楼处电话-国太发展Z22号项目楼盘详情-交房时间-房价户型图-小区环境-楼盘详情-周边配套-24h电话
扫描到手机,新闻随时看
扫一扫,用手机看文章
更加方便分享给朋友
刚刚,苏州吴中太湖新城传来重磅利好——板块内首个纯别墅项目规划正式曝光!
据悉,国太发展Z22号项目由吴中本土国企国太发展拿地,后续将与绿城携手打造宋风别墅住区。
「靠山面湖」的稀缺属性,配上顶级开发配置,堪称吴中豪宅新标杆!
作为板块内首个纯别墅产品,其登场无疑填补了吴中太新低密高端住区的空白,堪称板块内的独一档存在。
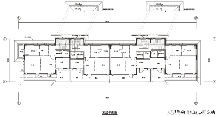
根据规划,项目将打造21幢3层联排别墅与4幢6层叠加别墅。
用地面积:35568.16㎡
地上计容面积:约36279.52㎡
总建筑面积:约68547.43㎡
25幢住宅,层数3F/6F
2幢配套,层数1F/2F

✨✨国太发展Z22号项目 售楼处电话☎️☎️400-8787-098转接4444(专人接听)✨✽✽✽
✨✨国太发展Z22号项目 营销中心电话:☎️☎️400-8787-098转接4444【营销中心】✨✽✽✽
项目坐落于太湖新城核心区位,由吴中本土国企国太发展竞得,成交总价超6.5亿元,成交楼面价18000元/㎡。
最令人瞩目的当属其容积率——仅1.02,直接刷新板块低密天花板!更值得期待的是,项目将由绿城管理负责代建,品质保障再添一重砝码。
有消息透露,会所配套堪称板块顶配:泳池、健身房、女王空间、瑜伽室、茶室等功能区均在规划之内,妥妥的高端生活标配!
除了低密与配套优势,项目的产品力更是堪称“板块王炸”,核心亮点在于超级稀缺的体量与极致的空间尺度:
整个小区仅规划133套房源,体量精巧,结合其高端定位,未来大概率会陷入“供不应求”的局面!
具体户型与面积段明确,尺度直接拉满吴中天花板:
联排户型:约265-399㎡,空间开阔通透;
叠加户型:约205-245㎡,起步面积即达改善级,适配高端家庭需求。
叠墅产品:超大南向面宽,LDKB一体化洄游奢厅,空中观景庭院,实现空间、功能与自然融合的高品质生活。
联排产品:大面宽、大格局、大景宽打造真别墅有天有地独栋级居住体验,独立主人套房、多功能厅、专属家政、收纳空间等应有尽有。
联排边户:一层设计南北双入户,公区打造大横厅格局,通透感拉满;同时配置南向套房,居住舒适度直接拉满;二层及以上全为南向套房设计,充分兼顾家庭成员的隐私与便捷;此外,还有超大露台赠送,搭配室内天井设计,既能引光入室强化采光通风,更能增添空间层次感。



✨✨国太发展Z22号项目 售楼处电话☎️☎️400-8787-098转接4444(专人接听)✨✽✽✽
✨✨国太发展Z22号项目 营销中心电话:☎️☎️400-8787-098转接4444【营销中心】✨✽✽✽
立面图如下:


✨✨国太发展Z22号项目 售楼处电话☎️☎️400-8787-098转接4444(专人接听)✨✽✽✽
✨✨国太发展Z22号项目 营销中心电话:☎️☎️400-8787-098转接4444【营销中心】✨✽✽✽
下叠户型:南向面宽优势突出,独立入户设计是一大亮点,尽显尊贵仪式感;一层同样配置套房主卧,精准匹配长辈或主人的居住需求;二楼规划三套房布局,全方位保障多人口高端家庭的生活舒适度。


✨✨国太发展Z22号项目 售楼处电话☎️☎️400-8787-098转接4444(专人接听)✨✽✽✽
✨✨国太发展Z22号项目 营销中心电话:☎️☎️400-8787-098转接4444【营销中心】✨✽✽✽
立面图如下:


据悉最大庭院可达300㎡+,无论是举办私人会客、日常休闲小憩,还是家庭娱乐活动,都能轻松承载,完美适配高净值人群的多元社交与生活场景。
克尔瑞数据显示,2025苏州呈现核心改善热、外围刚需冷局面。核心区改善型住宅去化周期缩短至6个月,而非核心板块刚需长达24个月!
核心,就是牢不可破的价值底盘。
项目所在的吴中太湖新城,历经多年厚积薄发,早已成长为公认的核心成熟富人区。

| 吴中太湖新城实景
✨✨国太发展Z22号项目 售楼处电话☎️☎️400-8787-098转接4444(专人接听)✨✽✽✽
✨✨国太发展Z22号项目 营销中心电话:☎️☎️400-8787-098转接4444【营销中心】✨✽✽✽
不久前,官方定调了吴中区2025年的发展三大方向:产业升级和技术创新、数字经济和现代服务业、生态环境和文化旅游,全部都指向了吴中太湖新城,政策扶持与红利仍在不断释放。
从规划到现在,吴中太湖新城进入了成熟期,兑现落地闪电速度,一系列配套接连落地投入使用,走出了像金鸡湖的一样的高质量发展路!

下滑查看吴中太新实景配套:

| 吴中太湖新城部分配套实景
✨✨国太发展Z22号项目 售楼处电话☎️☎️400-8787-098转接4444(专人接听)✨✽✽✽
✨✨国太发展Z22号项目 营销中心电话:☎️☎️400-8787-098转接4444【营销中心】✨✽✽✽
天然太湖生态资源,高端产业规模化、高端配套的落地,高知人群聚集,必然催生高质的板块文明。
吴中太湖新城临湖项目不少,但“湖中有湖”的格局,仅此一席。

向外:项目择址于吴中太新发展的集大成之处,与太湖最美岸线咫尺之遥,2公里范围内,华中师范大学苏州实验中学、苏州湾实验小学、天鹅湖公园、苏州湾中心广场、木里地铁站等优质资源环伺,被誉为“离城市最近的湖居作品”。
于此,既可瞬息拥抱万顷湖光的自然诗意,又能快速对接主城繁华配套,实现理想生活方式的完美平衡。
向内:项目坐拥双河流环抱的岛屿之上,契合大多数富人半岛隐居的居住习惯,静享绿意萦绕、清流潺潺的悠然天地,形成“临湖而憩,枕水而居”的自然孤本。整个建筑依水错落布局,仿佛重现了记忆中父辈邻水而居、安宁美好的生活场景。
苏州上一个具备相似地段禀赋的,仍是园区双湖的仁恒星屿,桃花源,至今二手房挂牌价约10w+/平,成为苏州顶级湖居的传奇作品。
✨✨苏州国太发展Z22号项目 ✨✨
✨✨国太发展Z22号项目 售楼处电话☎️☎️400-8787-098转接4444(专人接听)✨✽✽✽
✨✨国太发展Z22号项目 营销中心电话:☎️☎️400-8787-098转接4444【营销中心】✨✽✽✽
✨✨温馨提示:拨打400电话,听到嘀声后,输入4444即可通话!✨✽✽✽
✨✨☞☞Vip贵宾置业==欢迎来电预约尊享内部折扣===匠心钜制恭迎品鉴☜☜
声明:本文由入驻焦点开放平台的作者撰写,除焦点官方账号外,观点仅代表作者本人,不代表焦点立场。
