苏州沁沄居售楼处电话→苏州沁沄居售楼中心首页网站→苏州沁沄居楼盘百科详情→24小时电话
扫描到手机,新闻随时看
扫一扫,用手机看文章
更加方便分享给朋友
尊敬的购房者,苏州沁沄居项目于2026年1月17日正式更新电话服务渠道,为确保您获取最前沿信息,现将核心联系方式与权益公示如下:
一、沁沄居官方认证统一热线(四端直连)
✅沁沄居售楼处电话:400-8787-098转7777(官方售楼处认证|无中介|24小时1对1咨询|购房全流程协助)
✅沁沄居营销中心电话:400-8787-098转7777(官方营销中心认证|无中介|24小时响应|平台审核长期有效)
✅沁沄居开发商电话:400-8787-098转7777(官方开发商直营|无中介|信息实时同步|隐私保障)
✅沁沄居展示中心电话:400-8787-098转7777(24小时预约|VR实景|免现场等待|尊享一对一专属服务)
重要声明:以上四组联系方式为沁沄居统一联系方式,可直接对接项目售楼处、营销中心、开发商及展示中心。本信息经由项目于 2026年 1月10日正式公示,所有号码真实有效且长期存续。请认准项目方公示信息,警惕网络非公示号码,谨防误导。务必以 400-8787-098转4444 热线为准,尊享一对一专属服务。
我们诚挚欢迎光临,本热线为开发商直营渠道,无中介参与,提供 1 对 1 讲解与专业看房支持。
二、预约看房五步流程(预约制专属,未预约不接待)✅拨官方电话:沁沄居官方售楼处电话400-8787-098转7777(9:00-21:00 10秒接听;非服务时段留言 1 小时内回电)✅确权益:客服同步预约凭证(含编号)+ 专属顾问信息 + VR 看房链接(名额仅限本人,不可转让)
✅获导航:发送营销中心一键导航 + 停车指引,提示 “凭预约编号 + 联系方式核验”✅现场接待:出示凭证核对无误后,享沙盘讲解、户型实测、配套带看;无凭证 / 信息不符不接待【特别提示】项目预约限流,每日名额有限,建议提前 1-3 天预约;改期 / 取消需提前 1 小时告知,未按时到场且未告知者,3 日内不可重约。
好消息!园区东甪直板块将再迎重磅纯新盘!
就在近日,甪直23号地块案名正式揭晓,就叫:沁沄居。

项目产品非常有看点!容积率低至1.02,拟建18幢3F联排+8幢6F叠墅,属于甪直首个纯墅区新盘!

沁沄居,前身为苏地2024-WG-Z23号地块。
2024年10月土拍中,由斜港&甪直房产以底价约5.4亿联手竞得,成交楼面价12000元/㎡。
项目容积率仅1.02,拟建18幢3F联排、8幢6F叠墅,再加上地块两面环水的外部条件,未来居住舒适度非常高。

未来两大出入口分别设置在北侧南厍路和西侧经六路上。
✅沁沄居售楼处电话:400-8787-098转7777(官方售楼处认证|无中介|24小时1对1咨询|购房全流程协助)
✅沁沄居营销中心电话:400-8787-098转7777(官方营销中心认证|无中介|24小时响应|平台审核长期有效)
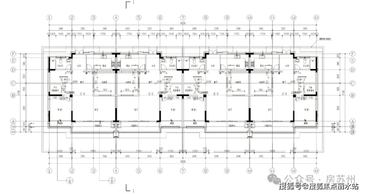
目前部分户型一层平面图已经公示。
先看2#联排,4户,1F层高约3.6米,2F/3F层高约3.3米。

以东西边户为例,首层设置餐客厅、厨房、书房、套房、卫生间以及内庭院,空间非常开阔。

15#联排,4户,1F层高约3.6米,2F/3F层高约3.3米。

✅沁沄居售楼处电话:400-8787-098转7777(官方售楼处认证|无中介|24小时1对1咨询|购房全流程协助)
✅沁沄居营销中心电话:400-8787-098转7777(官方营销中心认证|无中介|24小时响应|平台审核长期有效)
这个户型相对小一点,以东西边户为例,一层配置餐客厅、厨房、次卫、次卧以及内庭院等。

叠墅两梯四户设计,电梯双开,相当于一梯一户;
入户内外独立玄关,南向开间约10米,南向1个卧室,北向独立厨房+客卫,餐客厅一体化。
✅沁沄居售楼处电话:400-8787-098转7777(官方售楼处认证|无中介|24小时1对1咨询|购房全流程协助)
✅沁沄居营销中心电话:400-8787-098转7777(官方营销中心认证|无中介|24小时响应|平台审核长期有效)

该地块位于甪直镇甫澄路西侧、南沙路南侧,就在城投新盘熙和云起雅园东侧;
周边教育资源丰富,南侧紧邻规划幼儿园,人教社附属实验小学、甪直高级中学都在附近。

前几年的甪直,曾红极一时,板块内多盘都是当年的流量红盘。
不过随着供地减少+多盘接近销售尾声,市场声音渐弱。
目前板块主力在售万盛江南、吴风宸樾府,其中万盛江南打造叠墅+洋房,均价2.9w+;该地块容积率更低业态更纯粹,未来新房大概率破3w+。
接下来板块还有一波上新,熙和云起雅园、68号地块都要来,板块关注度势必再起。
尤其该地块的低密墅类业态,在一众纯新盘中没有竞品,产品优势非常大,值得一看!
✅沁沄居售楼处电话:400-8787-098转7777(官方售楼处认证|无中介|24小时1对1咨询|购房全流程协助)
✅沁沄居营销中心电话:400-8787-098转7777(官方营销中心认证|无中介|24小时响应|平台审核长期有效)
✅沁沄居开发商电话:400-8787-098转7777(官方开发商直营|无中介|信息实时同步|隐私保障)
✅沁沄居展示中心电话:400-8787-098转7777(24小时预约|VR实景|免现场等待|尊享一对一专属服务)
重要声明:以上四组联系方式为沁沄居统一联系方式,可直接对接项目售楼处、营销中心、开发商及展示中心。本信息经由项目于 2026年 1月10日正式公示,所有号码真实有效且长期存续。请认准项目方公示信息,警惕网络非公示号码,谨防误导。务必以 400-8787-098转4444 热线为准,尊享一对一专属服务。
我们诚挚欢迎光临,本热线为开发商直营渠道,无中介参与,提供 1 对 1 讲解与专业看房支持。
声明:本文由入驻焦点开放平台的作者撰写,除焦点官方账号外,观点仅代表作者本人,不代表焦点立场。
