绿城春颂香雪里(叠墅联排) (售楼处) 首页 - 绿城春颂香雪里-销售中心 - 价格 - 地址 - 楼盘详情 - 配套 - 电话 - 交房时间 - 配套 - 电话 - 交房时间
扫描到手机,新闻随时看
扫一扫,用手机看文章
更加方便分享给朋友
🌈绿城春颂香雪里(叠墅联排)售楼处电话☎️400-8787-098转接8999(营销中心)
🌈绿城春颂香雪里(叠墅联排)营销中心电话:☎️400-8787-098转8999【营销中心】
🌈温馨提示:拨打400电话,听到嘀声后,输入分机号8999即可!绿城春颂香雪里🔥超山
🤩面积:叠排213、284²、排屋296~339 ²
🤩总价:叠墅单价18000起,合院900~1400万
绿城·香雪里【低密改善大宅】
🔸临平奥特莱斯·超山风景区旁
🔸叠排/排屋·约213-339方
🔸铝板石材立面、会所泳池配套
绿城·春颂香雪里
02 山、水、园的三重策略
整体布局以中央山水景观轴为骨架,将松石叠泉和山水林间两大景观要素贯穿全区。营造“一轴一带八景十巷”的多进式园林体验。第一策略是充分利用自然景观的优势,运用中国传统园林设计中的“借景”手法,将超山和基地西侧的城市公园风景引入居住区。
项目鸟瞰图
其次,居住区内部构建完整的水景系统,不仅丰富了小区内部的景观体验,而且与基地西侧的城市水系相呼应。第三,在住宅区内通过多进式园林与文化符号,重现宋代文人雅集的意趣。
公共区域着重体现宋式园林古朴自然的美学风格。主入口墙面采用亚马逊黑奢石,其色泽深邃,纹理独特,展现出一种沉稳而厚重的质感;对景墙采用亚马逊绿奢石,绿色奢石增添高贵神秘感,引人注目。
主入口效果图
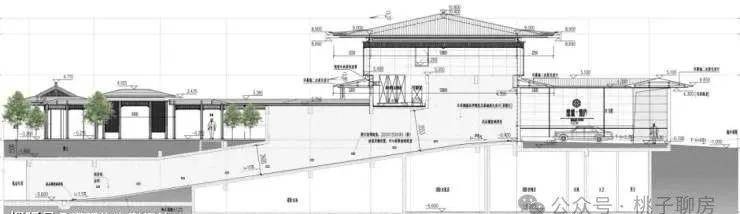
入口空间剖面图
建筑设计延续了宋式建筑注重对称和平衡的原则,强调运用简洁的线条和精细的比例来塑造和谐、稳定的整体形象;公区上下错落的空间布局,展现出宋式木构的层次秩序与构造特色。
新宋式意境融入会所空间
宋式园林清雅柔逸,追求细致清新、天然成趣。本项目设计师提取宋代文人生活中“雅集”的场景意向,以高敞的空间、开阔的水平视线塑造一座“可游、可行、可望、可居”的富于古典美学意韵的现代居所。
半户外空间以赏梅雅集为主题
会所大堂的古典美学氛围
新宋式风格与车库及泳池等现代场景相得益彰
03 宋风院墅:延伸自然之美
在宋代,园林设计深受禅宗思想的影响,追求以自然为蓝本,将写意山水融入园林之中。本案居住空间的设计承袭了这一传统理念,旨在于超山的优美自然环境中,打造一个和谐而富有对话性的空间,让居住者能够体验到宋代园林的宁静与雅致。
典型户型庭院效果图
色彩设计以香槟金色作为主色调,营造古朴、大气的形象。奢华石材作为深色点缀,使葱郁的景致层次更为丰富,宛如一幅和谐细腻的中国画。
住宅立面设计延续了宋式建筑水平、简洁、飘逸的审美精髓,私人庭院内采用传统园林“堆山、叠石、理水”的造园手法,并以建筑、灌木、小桥和流水,构建起高、中、低三个层次的景致。
合院组团立面效果图
叠墅立面效果图
住宅内部利用大面积落地窗来提升界面的透明性,使自然景观充分融入建筑内部,增加了室内外的联系和互动,回应以自然为蓝本的宋式园林理念。
典型户型室内效果图
04 文化符号:以宋梅为原型设计
杭州超山风景区的六瓣古梅
杭州超山素以观赏“古、广、奇”三绝的梅花而著称,中国独有的五大古梅,超山独占其二:唐梅、宋梅。花型独特的六瓣梅传承千年,是最具标志性的品种。
设计师将古梅的形象提炼抽象的装饰符号,通过屏风、格栅、风铎等装饰细节融入到宋式风格中,既传承了文化特色,又为设计增添了细腻、精致和奢华。
古梅符号融入屏风、格栅、风铎等装饰细节中
绿城·春颂香雪里以创新的宋式语言和美学风格,巧妙融入山水之韵,不仅展现出对场地宝贵自然与人文资源的深刻理解,也将宋式文化的精髓续写进现代人居美学的新范式中。
【东门、会所庭院】
【室内恒温泳池】
【鸟瞰图】
🌈绿城春颂香雪里(叠墅联排)售楼处电话☎️400-8787-098转接8999(营销中心)
🌈绿城春颂香雪里(叠墅联排)营销中心电话:☎️400-8787-098转8999【营销中心】
🌈温馨提示:拨打400电话,听到嘀声后,输入分机号8999即可
声明:本文由入驻焦点开放平台的作者撰写,除焦点官方账号外,观点仅代表作者本人,不代表焦点立场。
