南宁中国铁建·西派御江(售楼处) 首页 -中国铁建·西派御江销售中心 - 环境 - 户型 - 价格 - 地址 - 楼盘详情 - 配套 - 电话 - 交房时间 - 配套 - 交房时间
扫描到手机,新闻随时看
扫一扫,用手机看文章
更加方便分享给朋友
🏡南宁中国铁建·西派御江售楼处电话:400-8787-098输入分机号4444【营销中心】
🏡南宁中国铁建·西派御江售楼处位置:400-8787-098输入分机号4444【官方电话】
🏡房价特价信息丨优惠政策丨详细解答丨在售房源丨在售户型图丨项目介绍丨周边配套丨VR看房丨楼盘图丨沙盘图丨位置图丨配套图丨售楼处地址丨足不出户丨销售1V1讲解 如有问题欢迎来电咨询,可预约销售人员,专业一对一热情服务,让您用专业眼光去买房
基础指标
开发商:中铁房地产集团(广西)有限公司
项目地址:南宁青秀区灵龟路19号
项目总占地:约108亩(72000平)
总建筑面积:约22万㎡
容积率:1.92
绿化率:35%
建筑密度:地块一20.67%、地块二21.95%
物业类型:大平层/合院
总户数:668户
车位:1597个
层高:288㎡层高3.6米,其他的层高3.05米
赠送:209平30平左右,235平35平左右,288平65平左右
楼栋规划:
18栋12~22层天际平墅
1栋合院别墅、2栋商墅、1栋商业
预计交房时间:2022年12月
预计交房时间:
1-2-3-5-6-7-8-9-21-22号楼,已交付,(12-13-15-16-17-18-19-20号楼)2023年底
🏡南宁中国铁建·西派御江售楼处电话:400-8787-098输入分机号4444【营销中心】
🏡南宁中国铁建·西派御江售楼处位置:400-8787-098输入分机号4444【官方电话】
项目地段
南宁市青秀仙葫经济开发区灵龟路与开泰路交汇处
🏡南宁中国铁建·西派御江售楼处电话:400-8787-098输入分机号4444【营销中心】
🏡南宁中国铁建·西派御江售楼处位置:400-8787-098输入分机号4444【官方电话】
配套解读
学校配套:桂雅路小学开泰校区、青秀区第五初级中学等名校,地块内旁规划有一所幼儿园;
地铁配套:S0线
商业配套:万象城、航洋城、盛天地、龙湖天街、东方广场、万达茂
医疗配套:广西中医药大学第一附属医院、瑞康医院风岭南医院、南宁市仙葫医院
公园配套:滨江公园、方特东盟神话、李宁体育园、青秀山、灵龟山公园
6
小区展示
楼栋图:
效果图:
🏡南宁中国铁建·西派御江售楼处电话:400-8787-098输入分机号4444【营销中心】
🏡南宁中国铁建·西派御江售楼处位置:400-8787-098输入分机号4444【官方电话】
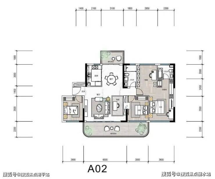
户型展示
▲143㎡
▲175㎡
▲209㎡
▲235㎡
▲288㎡
🏡南宁中国铁建·西派御江售楼处电话:400-8787-098输入分机号4444【营销中心】
🏡南宁中国铁建·西派御江售楼处位置:400-8787-098输入分机号4444【官方电话】
🏡房价特价信息丨优惠政策丨详细解答丨在售房源丨在售户型图丨项目介绍丨周边配套丨VR看房丨楼盘图丨沙盘图丨位置图丨配套图丨售楼处地址丨足不出户丨销售1V1讲解 如有问题欢迎来电咨询,可预约销售人员,专业一对一热情服务,让您用专业眼光去买房
声明:本文由入驻焦点开放平台的作者撰写,除焦点官方账号外,观点仅代表作者本人,不代表焦点立场。
