华宁·央玺-石家庄(华宁·央玺)首页网站-2025最新房价+户型图+小区环境+配套
扫描到手机,新闻随时看
扫一扫,用手机看文章
更加方便分享给朋友
石家庄【华宁·央玺】
☎☎售楼处电话:400-8787-098转接4444【售楼中心】
★彡提-前-来-电-预-约-登-记—售楼处1v1销售专业讲解〢一对一热情服务〢
★彡温馨提示:网上售楼中心〢欢迎来电咨询〢预约可享内部优惠〢匠心钜制恭迎品鉴〢
一、开发商
河北华宁房地产开发有限公司
河北华宁集团的前身为江西新光集团有限公司,于1992年7月成立,总部设在江西省九江市庐山南路27号,注册资金1.1亿元。集团分别在上海、广州、武汉、南昌、河北等地设立分公司,下辖全资子公司12家,产业涉及房地产、农业、商业、服务等行业,曾经创造过辉煌业绩,是一家综合性民营集团企业。2016年4月,因工作需要,在原江西新光集团的基础上,于河北省石家庄市注册成立了河北华宁商业管理集团有限公司,原江西新光集团各企业归属河北华宁集团管辖。
河北华宁集团现位于石家庄市新华区九中街16号“江西大厦”,集团设有办公室、财务部、人事部、企业管理部、法律事务部、供销部,下辖全资企业12家。分别是:河北华宁房地产开发有限公司、河北华旺房地产开发有限公司、河北华宁房屋租赁有限公司、河北华宁宾馆有限公司(维也纳国际酒店)、河北华宁食街餐饮服务有限公司、河北华旺酒店有限公司(江南大酒店)、河北清安物业服务有限公司、河北兴安物业服务有限公司、江西省新光山水开发有限公司、武宁新光果木园林有限公司、武宁华宁水产品有限公司、江西省武宁湖旅游有限公司。
公司经过近三十年的努力,公司业务将形成租赁业、服务业、农业三大板块,为力争打造百亿元企业目标而不懈努力
☎☎售楼处电话:400-8787-098转接4444【售楼中心】
二、区位
项目位于九中街和平路西北角
☎☎售楼处电话:400-8787-098转接4444【售楼中心】
曾经有位房产大佬说:地段、地段、还是地段
项目区位可以看到周边交通、医疗、教育、商业、公园等配套成熟
1、交通:中华大街(石家庄第二迎宾大道)、与和平路(豪宅一条街),地铁3号线、5号线(建设中)双地铁环伺,市庄站约400米,城市快速路一站式出行,举步即达城市核心商圈。
a.步行2分钟,速达地铁3号线和5号线(在建中)市庄站
b.车程5分钟,直达石家庄北站换乘高铁
c.车程10 分钟,快速接驳西柏坡高速/北绕城高速/黄石高速
d.车程30 分钟,畅达石家庄正定国际机场
2、医疗:项目南侧紧邻全国知名医疗体,河北医科大学第二医院,集团更是投入重金,石家庄仅有的、唯一一条约5分钟黄金生命绿色直达通道(开通省二院专属绿色生命通道,黄金救助争分夺秒;专属一键紧急呼叫按钮,第一时间快速响应;周边省人民/市二院/市中医院等重点医疗机构环绕),为您和家人的健康保驾护航。
3、教育 :自建9班制幼儿园,与石家庄第三实验幼儿园携手;自建18班制小学,与机场路小学联袂;周边北新街小学/二中/九中等
4、商业:华宁·城央汇—约30万㎡商业配套,兑现多元业态,购物,休闲,社交的场景,自建约6万㎡双层国际商街,全长1300米。国际美食街汇集31个城市、港澳台及国外特色美食;荟萃知名品牌店/影院/健身房/大型商超等多维生活配套。自建4栋5A级总部商务写字楼,世界500强及行业名企总部商务集群。
5、其他商业
央玺到达新百购物中心约2公里;
到达万象城约2.5公里;
到达勒泰商圈约5公里;
内部更有约30万㎡商业集群
☎☎售楼处电话:400-8787-098转接4444【售楼中心】
三、规划
1.共12栋(东区7栋+西区5栋)
☎☎售楼处电话:400-8787-098转接4444【售楼中心】
2.占地面积:约260亩
3.建筑面积:约70万㎡
4.绿化率:35%
5.交付标准:毛坯交付
6.住宅交付时间:2026年3月31日
7.物业品牌:万科物业
8.建筑风格:现代建筑风格
9.外立面材质:香槟金铝板+玻璃幕墙

☎☎售楼处电话:400-8787-098转接4444【售楼中心】
10.甄选石材:定制专属石材料
11.品质安防:采用王力品牌入户门锁;
12.匠心精工:三玻两腔断桥铝中空玻璃窗,品质型材保障静心生活格调
13.配建10000㎡私享公园,区域内更有柏林公园、水上公园等,优越的公园景观打造生态宜居之所

☎☎售楼处电话:400-8787-098转接4444【售楼中心】
14.威仪社群大门,轻奢酒店式体验,定制精装风格让出入皆为不凡,承续归家门厅的至高礼遇。单元大堂墙面采用大面积定制化石材

☎☎售楼处电话:400-8787-098转接4444【售楼中心】
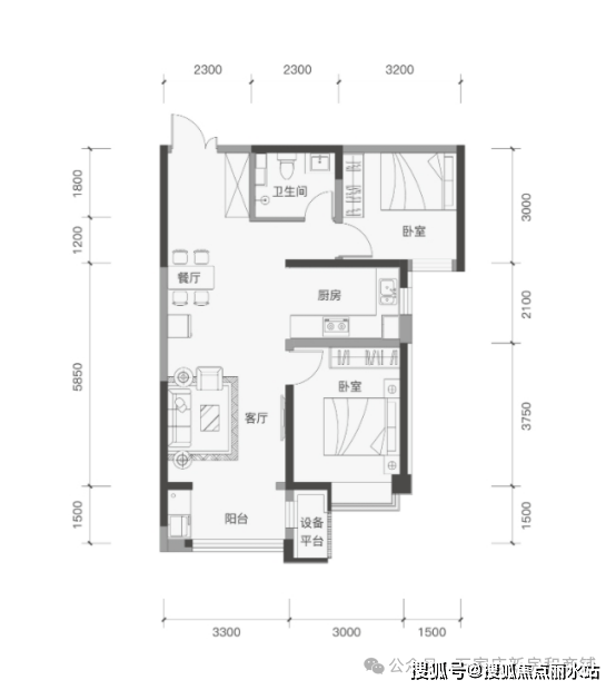
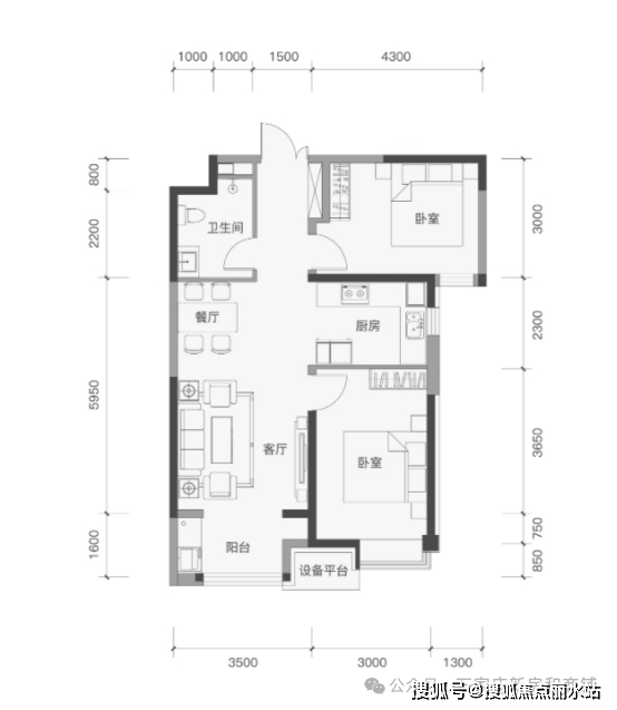
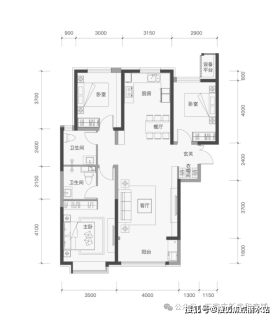
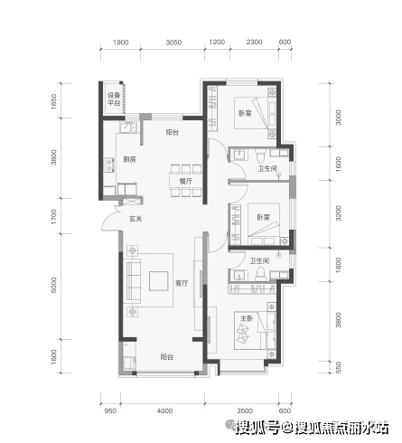
15.相关户型
86.23㎡

☎☎售楼处电话:400-8787-098转接4444【售楼中心】
90.68㎡

☎☎售楼处电话:400-8787-098转接4444【售楼中心】
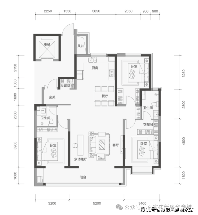
95.56㎡(三居室)

☎☎售楼处电话:400-8787-098转接4444【售楼中心】
131.89㎡

☎☎售楼处电话:400-8787-098转接4444【售楼中心】
134.23㎡

☎☎售楼处电话:400-8787-098转接4444【售楼中心】
135.21㎡

☎☎售楼处电话:400-8787-098转接4444【售楼中心】
137.85㎡

☎☎售楼处电话:400-8787-098转接4444【售楼中心】
171.85㎡

☎☎售楼处电话:400-8787-098转接4444【售楼中心】
146.97㎡

☎☎售楼处电话:400-8787-098转接4444【售楼中心】
251㎡

石家庄【华宁·央玺】
☎☎售楼处电话:400-8787-098转接4444【售楼中心】
★彡提-前-来-电-预-约-登-记—售楼处1v1销售专业讲解〢一对一热情服务〢
★彡温馨提示:网上售楼中心〢欢迎来电咨询〢预约可享内部优惠〢匠心钜制恭迎品鉴〢
声明:本文由入驻焦点开放平台的作者撰写,除焦点官方账号外,观点仅代表作者本人,不代表焦点立场。
