首页@最新郑州大来郑东壹号院(营销中心)-大来郑东壹号院售楼处电话_首页网站_内附图文解析_楼盘百科详情→24小时热销电话
扫描到手机,新闻随时看
扫一扫,用手机看文章
更加方便分享给朋友
✨✨郑州大来郑东壹号院售楼处电话:400-778-0670【售楼处已认证】✨ ➢
✨✨郑州大来郑东壹号院开发商电话:400-778-0670【售楼处已认证】✨ ➢
✨✨郑州大来郑东壹号院营销中心电话:400-778-0670【售楼处已认证】✨ ➢
售楼处电话、售楼处地址、2025最新楼盘动态、售楼处接待时间、房源优惠、
最新房源价格、周边商业交通医院、在售户型、周边学校、交房时间、得房率、公摊面积、小区位置、小区环境、等楼盘详情!

从目前已经公式的信息看,户型都非常的方正,大面宽,比较符合当下购房者的审美标准,定位非常明确:纯改善。
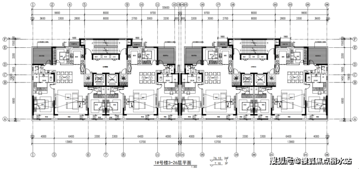
目前公示的有1号楼、3号楼两栋住宅的楼层平面图,一楼全部是架空层。

以1号楼平层图为例,两梯两户设计,建面约160平,三开间朝南的大平层,双主卧设计,非常豪横的安排了3个卫生间。

接下来看看3号楼平层图,同样两梯两户设计,建面约190平,5室2厅3卫,L形转角阳台,朝南双主卧套房,改善基因明显。

✨✨郑州大来郑东壹号院售楼处电话:400-778-0670【售楼处已认证】✨ ➢
✨✨郑州大来郑东壹号院开发商电话:400-778-0670【售楼处已认证】✨ ➢
✨✨郑州大来郑东壹号院营销中心电话:400-778-0670【售楼处已认证】✨ ➢
售楼处电话、售楼处地址、2025最新楼盘动态、售楼处接待时间、房源优惠、
最新房源价格、周边商业交通医院、在售户型、周边学校、交房时间、得房率、公摊面积、小区位置、小区环境、等楼盘详情!
声明:本文由入驻焦点开放平台的作者撰写,除焦点官方账号外,观点仅代表作者本人,不代表焦点立场。
