售楼处@太原「太原万达·西岸CLASS」2025楼盘详情・售楼处电话・售楼中心・楼盘地址・项目简介
扫描到手机,新闻随时看
扫一扫,用手机看文章
更加方便分享给朋友
太原万达·西岸CLASS
太原万达·西岸CLASS售楼处电话:400-8787-098转分机号6666【已认证】
太原万达·西岸CLASS营销部电话:400-8787-098转分机号6666【已认证】
✨楼盘基本信息介绍,地址,户型,价格,位置,医疗教育,商业交通配套✨
万达集团创立于1988年,经过32年发展,已成为以现代服务业为主的大型跨国企业集团。 旗下拥有万达地产集团,万达商管集团,万达文化集团。万达地产集团是中国较早城市旧区改造、较早跨区域开发的房地产企业,综合体开发企业,已在全国开发建设数百个万达广场、万达酒店、万达城、万达茂和住宅项目,特别是在开发上有着丰富的经验,,跨越大连、北京、合肥、济南、太原全国五大城市,每一座万达公馆,皆成为所在城市的高端生活旗帜,联袂定制中国新标准。万达在太原标杆项目,万达天玺、万达公馆、万达龙樾府一系列项目的迭代升级!

万达·西岸CLASS项目介绍
1、万达•西岸CLASS——万达地产入晋13载继龙潭湖畔豪宅后的第二个高端作品,规划建设12栋高品质住宅、公寓、商业,是万达在太原万柏林片区匠心打造的学府美宅。
2、万柏林区城央——项目位于南内环西街与西中环交汇处,紧邻九院沙河、交通便捷。
3、已签约山大附中、紧邻山西省实验小学(新道街小学)——项目地块规划两所重点小学、三所重点中学。
4、长风商务区——临近城市级配套长风商务区及南内环商圈
5、西山生态资源——项目毗邻西山万亩生态园、九院沙河等生态资源
6、新贵生活圈——打造85-135㎡精品高层住居
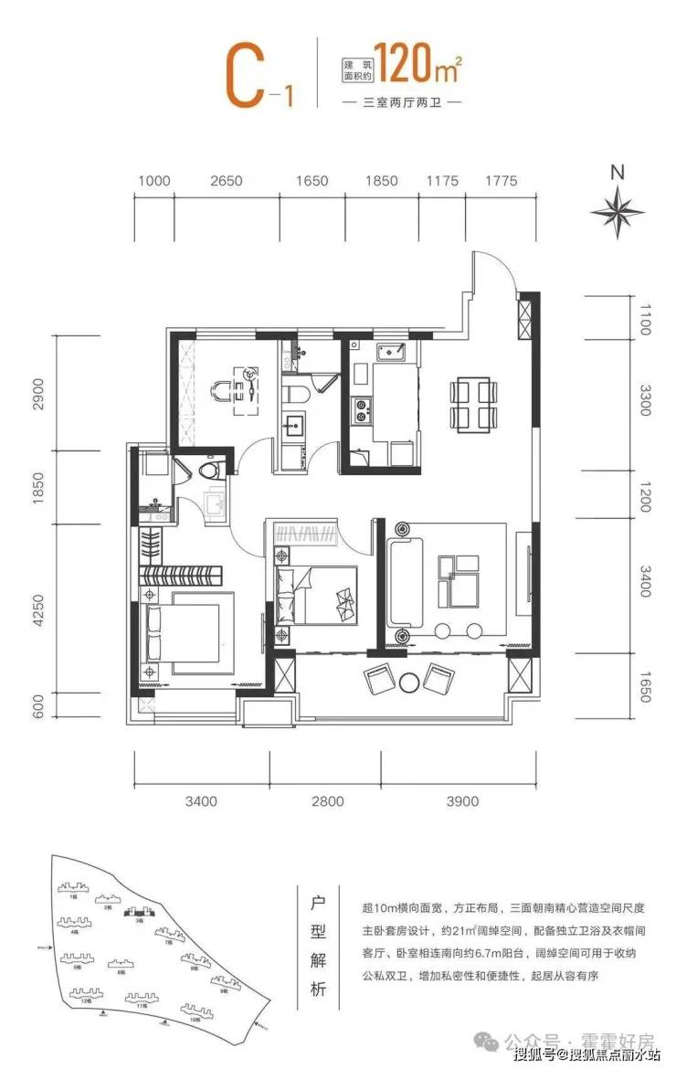
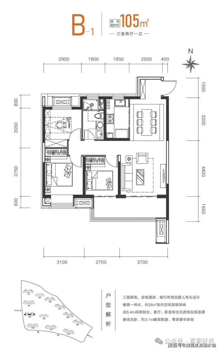
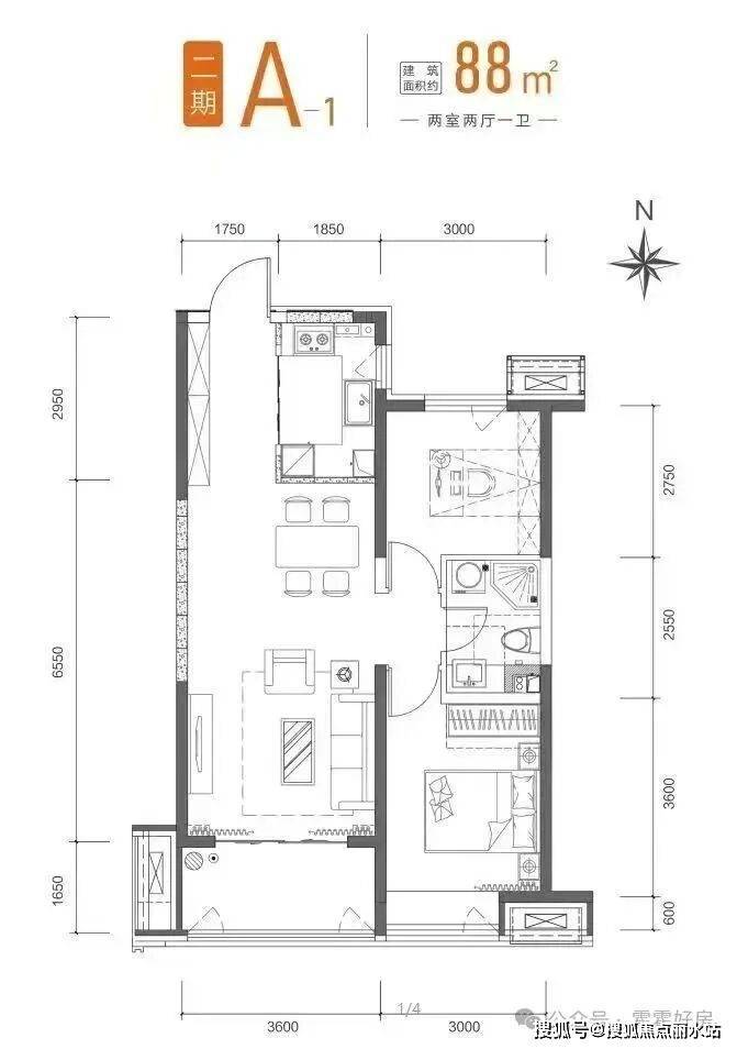
2020年9月,万柏林区教育局与山西省实验小学教育集团成功签订教育发展战略合作协议,在煤气化片区打造山西省实验小学万柏林第一校区与山西省实验小学万柏林第二校区(新道街小学),切实满足人民群众对优质教育的新期待。两所小学按照土地出让条件,由中铁诺德逸尘云著项目以及华润·华侨城公园九里项目无偿代建,建成后移交万柏林区教育局。两所小学是属于区教育局统一管理的公立公办小学,目的是保障煤气化片区居民义务教育阶段需求。万达·西岸CLASS位于南内环西街与西中环交汇处西南角。项目主推85-135㎡户型,支持一次性、按揭付款,开发商担保公积金贷款。
太原买房找小霍!
18335169916(微信同号)


太原万达·西岸CLASS
太原万达·西岸CLASS售楼处电话:400-8787-098转分机号6666【已认证】
太原万达·西岸CLASS营销部电话:400-8787-098转分机号6666【已认证】
✨楼盘基本信息介绍,地址,户型,价格,位置,医疗教育,商业交通配套✨
声明:本文由入驻焦点开放平台的作者撰写,除焦点官方账号外,观点仅代表作者本人,不代表焦点立场。
