2025最新网站武汉【武汉松阅】售楼处欢迎您|楼盘详情-样板间/价格/户型-停车位-容积率-小区环境-售楼处地址-定位 -【预约电话】
扫描到手机,新闻随时看
扫一扫,用手机看文章
更加方便分享给朋友
✅武汉松阅
✅售楼处电话:400-8787-098接通后输入5555【营销中心电话】
✅温馨提示:拨打400-8787-098电话,听到嘀声后,输入分机号5555即可。
✅网上售楼中心〢尊享售楼处优惠服务〢欢迎来电咨询预约案场内部销售人员〢
✅楼盘项目全面介绍,包含楼盘简介、售楼电话、小区图片、区位优势、交通、周边商业配套、户型图等楼盘详情
武汉四代住宅典范 六边形战士改善首选
荣膺2024年度中国好房子
武汉二环旁·公园学府·约97-132㎡四代臻著
武汉二环 惟此1公里宜居高地
区域独享醇熟配套,城心难得负公摊四代宅
以不可复制六边形战士,构筑武汉改善置业首选
【项目简介】
松阅是武汉市青山区首个负公摊四代宅示范项目,项目容积率仅2.35,签约九年双一流名校,位于六园之心。项目打造约3000方现代东方私家山水园林及私家奢谧会所,联合权威机构运营翼果营地及三大翼果乐园,钻研领先产品力如户户可私梯入户享受高拓私密空间、边户奢享双入户和270°无边际采光、类公建化外立面等,签约连续10年蝉联TOP1的万科物业品牌,致力于打造新一代城市家庭新质生活社区。
【项目地址】武汉·冶金大道与工业三路交汇处
【项目规模】总建面约47457㎡
【容积率】2.35
【总户数】321户
【户型面积】建面约97-132㎡四代新平层
【物业公司】万科物业
立繁华之心,揽丰盛奢配,松阅与青山楠姆携手打造在武汉二环旁的1公里慢奢生活圈,1公里内覆盖所有生活配套,构建宜居、宜业、宜游的理想目的地。
【优质教育配套 九年双名校为邻】
九年名校教育近在咫尺,开启下一代菁英未来。
红钢城小学第四学校:距项目约200米,区域内小学教育第一梯队。
武钢三中十一学校:省示范高中录取率位居榜首,普高中升学率名列第二。
【完善商业配套 文体资源环伺】
项目紧邻两大特色商业地标,武汉印象城、恩施街,周边汇聚多元文体资源,青山区图书馆、青山区青少年宫、武钢博物馆、全民健身中心、武昌生态文化长廊等,步行皆可至,丰盈闲暇时光。
【便捷交通体系 一站双轨三轴速达全城】
一站:小区入口旁是冶金大道工业三路公交站,站点汇聚4条核心公交线路391、502、616、782
双轨:直线距离约300米至9号线(规划中)武钢博物馆站,直线距离约1公里至换乘之王地铁5号线和平公园站
三轴:坐揽和平大道、冶金大道、友谊大道三大主干道,链接全城繁华。
【权威医疗配套 贴心呵护全家健康】
武钢总医院:青山规模最大唯一公立三甲医院,直线距离约200米,过街即至。
【核心高知圈层 独占青山半壁人文厚韵】
约6家大型国企、10家科研院所,高素质人才聚集、事业单位密集分布、经济资源重点配置,峯层人士居住与工作的理想目的地。
【绿色宜居生态圈 独占青山六大城市公园】
青山腹地楠姆板块绿化覆盖率超50%,人均公园面积超10㎡,中心城区居首。项目位于宜居生态圈中心,被誉为“六园之心”,1.5公里步行半径内环绕青山规模最大、最具特色、最美的六大市政公园,青山公园、和平公园、江湾湿地公园、江滩公园、南干渠公园、戴家湖公园,占据全区大型公园一半,轻松实现出门见园、推窗见绿的自然生活。
松阅摒弃城市中心高密度、大社区、商住一体开发理念,从居住舒适度视角考量,以高奢酒店理念精琢人文精致的低密纯粹生活住区。

【约2.35容积率 青山稀缺低密住区】
区域罕有约2.35低容积率;以公园绿境取代商业配套,以中高层、洋房精琢低密园境;仅布局321席,人均资源配置最大化,确保每位业主拥有更私享、舒适、尊贵的居住体验。
【极简美学建筑理念 类公建化外立面】
巧妙融合现代简约美学风格与类公建化的外立面元素,用前瞻性的审美视角打造时代潮流风向标,更历久弥新,未来十年不过时。

【谧隐城央的私家园林 丰盛于心的松弛场景】
巨资邀请华润系御用设计院亲笔 “东意西境”的现代东方园林。约4.5米深墙围合,闹中藏静;精选天然开山石打造约40米宽恢弘仪门,出入非凡;七境造园,亭、滩、楼、榭、泉、桥景观丰盛,以诗入园构筑步步有景的人文意境;大量采用乌桕、香橼、朴树等珍稀树种作为基底,精心搭配桂花、鸡爪槭、樱花等昂贵花木,四季更迭景致各异。

【私家奢谧会所 构筑全龄奢雅生活】
城市书房:拟联动国家一级图书馆,下楼即至的私家图书馆
翼果乐园:对标恒隆MELAND,打造顶配的儿童成长空间
休闲水吧:联动知名品牌运营,构筑高端品味生活场
【武汉首个家庭型儿童自然科学成长营地】
以国际先进的成长理念构筑融合自然探索、鸟类观察、自然课堂、友好市集等多元功能的约2000㎡翼果营地。
【武汉首个家校社共育成长计划】
联合中科院武汉植物园、华农博物馆、青山区图书馆、白鳍豚馆等多家全国知名社科机构打造全球领先营地成长计划“翼果计划”。
✅

以颠覆级空间革命满足你的家庭担当,亦懂你的人生挚享,为处于进阶期的家庭打造跨越时代的生活作品。
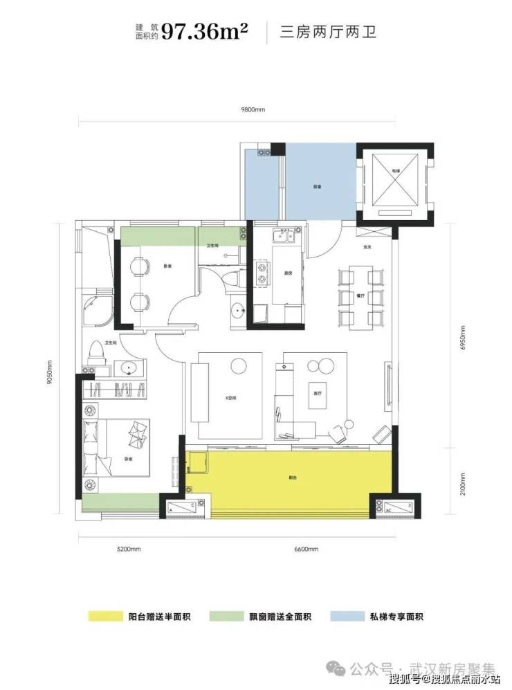
【97㎡三房两厅两卫】
1、区域唯一90多平户型配备私梯入户、独立门厅;
2、赠送9㎡前室及家政空间;
3、约2.1米宽13㎡超大阳台;
4、客厅总面积达37㎡,媲美140㎡大横厅;
5、超95%得房率。
【108㎡ 三房两厅两卫】
1、城心罕有108㎡实现四房功能;
2、赠送约12㎡前室及入户庭院,实现平层专属双入户;
3、270°落地全景采光,极致视野采光;
4、真正0公摊,100%得房率。
【132㎡ 四房两厅两卫】
1、区域唯一131㎡实现五房功能;
2、赠送约19㎡独立门厅及入户庭院;
3、约20米270°落地全景采光,极致视野采光;
4、真正负公摊,约103%得房率,买131㎡得134㎡。
青山唯一五星级物业服务,万科物业连续10年蝉联中国物业服务TOP1,服务2000余个社区、480万户家庭、1452万人口,赢得客户的高度好评。万科物业以新型智慧服务为特色,涵盖远程智能运营、24小时“凤梨一号”智能自助机、青山首个智能梯控及独有的社区文化活动,为业主提供全方位、便捷、智能的高品质生活体验。
武汉松阅
✅售楼处电话:400-8787-098接通后输入5555【营销中心电话】
✅温馨提示:拨打400-8787-098电话,听到嘀声后,输入分机号5555即可。
✅网上售楼中心〢尊享售楼处优惠服务〢欢迎来电咨询预约案场内部销售人员〢
✅楼盘项目全面介绍,包含楼盘简介、售楼电话、小区图片、区位优势、交通、周边商业配套、户型图等楼盘详情
声明:本文由入驻焦点开放平台的作者撰写,除焦点官方账号外,观点仅代表作者本人,不代表焦点立场。
