武汉松阅售楼处电话—武汉松阅售楼中心|24小时热线|户型价格|解析!
扫描到手机,新闻随时看
扫一扫,用手机看文章
更加方便分享给朋友
✅武汉松阅
✅售楼处电话:400-8787-098接通后输入5555【营销中心电话】
✅温馨提示:拨打400-8787-098电话,听到嘀声后,输入分机号5555即可。
✅网上售楼中心〢尊享售楼处优惠服务〢欢迎来电咨询预约案场内部销售人员〢
✅楼盘项目全面介绍,包含楼盘简介、售楼电话、小区图片、区位优势、交通、周边商业配套、户型图等楼盘详情
人生最美好的相遇,
是在恰当的时间遇到对的人。
买房也一样,
在适合的时间选到真正的好房子。
2025年,“好房子”首次写入政府工作报告,定调“安全、舒适、绿色、智慧”四大标准,被视作房地产高质量发展的新起点。
与之相对,什么样的房子不是“好房子”,央视名嘴同样给出“四不原则”——
不能太贵、不能太远、不能华而不实、不能只考虑当下
没有深奥绕口的专业术语,没有冷门难懂的网络用词,“四不原则”用最朴素的逻辑,为 “好房子” 树立清晰底线。
当一场关于“家”的议题在全民范围内展开,真正适配武汉人的“好房子样本”被越来越多的人认可——
松阅
01
“跃”级户型,美好生活的“教科书”
“看了这个项目,其他的都不是蛮想看了。”
这是我在现场听到的一句话,似是不经意间的有感而发,却是客户给出的最高评价。
要知道,武汉楼市是妥妥的“买方市场”,看得多买的少,挑挑拣拣是常态。
那么,松阅到底“好”在哪?
在我看来,松阅是武汉楼市历史上,具有里程碑意义的一座四代宅作品,他给予了业主超乎想象的惊喜。
要知道,“四代住宅” 绝非传统居住空间的常规升级,而是一场生活方式的深刻变革。
为实现这一变革,松阅首当其冲对「空间尺度」上进行极致拓展,让实得面积越级对标。
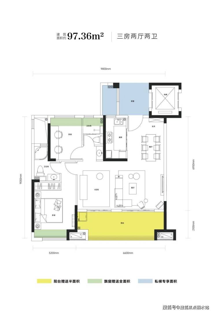
这套建面约97平户型,是全武汉100㎡以下私梯入户、送收纳间的产品,几乎仅此一家。
粗略计算下,这套户型赠送空间可达约18㎡,优化后得房率超95%。
进入私域,便是松阅对户型的第二处理解——
「空间效能」极致研磨,用多变启发生活
这一户型可在三房或两房+大横厅之间自如的切换。单身青年享受独处,刚结婚的小两口收藏兴趣,三口之家感受温馨……一切都是刚刚好。
△项目样板间实景图
南向开间约6.6m,连接约2.1m宽的阳台,阔绰的尺度甚至可以打乒乓球。
改造后LDBKG一体化设计,让户型拥有约57㎡的超大空间,灵动X空间给生活预留更多可能,无论是办公、会客、观影,还是陪孩子游戏、玩耍,都能轻松胜任。
再看这个宝藏的约132㎡户型,看完他的设计才知道——
用132㎡挑战160㎡空间体验,绝不是说说而已。
户型优化后得房率约103%,真正做到了“负公摊”。
"N+1空间"设计,经过后期良好规划,轻松拥有“五房体验”,直接比肩二期滨江某豪宅项目165㎡户型。
走进内部,仿佛置身于一处城市「全景舱」。
18㎡连屏阳台,搭配客餐厅270°环幕,推开门全是景的感觉让人心旷神怡。
上一次看到这种户型采光面,是在二七滨江和武汉商务区的大平层中。而松阅只是约132㎡的户型,就能有同级别采光。

△项目样板间实景图
客厅、餐厅、阳台等相连,形成一个一体化奢阔约73㎡的家族聚会空间,同时宴请20余宾客也不觉拥挤。
什么概念?市场上某3W+项目建面约175m²户型,公区整体空间仅约58m²。
最打动人的还属卧室,主卧内观景阳台,卧室、衣帽间、卫浴间自成一体。要知道很多大平层主卧都不配独立阳台,松阅建面约132㎡户型早已实现。
02
百变赠送空间,解锁N种生活可能
当今社会人们对于居住空间需求的四大核心痛点——
空间有限、物量惊人、产品趋同、生活忙碌
新婚家庭里,女主人的衣服、鞋子、化妆品,男主人的乐高、钓具、电子产品;
有小朋友的家庭,婴儿车、玩具、绘本,随着年龄的增长还有海量的物品;
与老人同住,家里的东西更是成倍增长……
这一次,松阅掀起的【收纳风暴】,切实击中了被“长久忽视”的居住痛点,成功突破了产品品质边界。
前面我们反复提到了一个点——
高赠送
电梯前室,家政空间、入户庭院等都能被拿来利用。这部分空间除了承担家庭收纳的作用,还能成为家中最有呼吸感的“第三空间”。
以97㎡户型为例,赠送的约8㎡电梯前室,为业主构筑出一个「前导空间」。
这个空间里,安置两个玄关柜都绰绰有余。
△项目实景图
进门脱外套,常用包包、防护用品、雨伞等等都有藏身之处;
顺手拆快递,也能成为一个临时囤货的地方;
偏好骑行、露营,安置单车、装备都游刃有余……让空间井井有条,告别家庭收纳无序的窘境。
132㎡的边户,直接专梯专户,独享近20㎡入户庭院,相当于额外赠送一个房间。
△项目实景图
如果种树、养花、安置鱼池,这里便是业主的生态天地;
摆上茶桌、放上酒柜,又能成为业主饮茶会友,偶尔小酌的绝佳去处;
围炉煮茶、涮火锅或是来一个简易烧烤,也能很轻易把气味散出去……为生活场景的塑造提供多元的可能性。
△项目实景图
所以,当其他四代类项目还在通过扩阳台实现得房率的提升时,松阅却已通过对空间的多维度塑造,完成了对生活的引导。
03
实景超越蓝图,一场令人敬畏的兑现
松阅,更用破圈的兑现力,给予业主一个超能打的全维高品质社区。
项目整体容积率约2.35,低密的土地上,仅规划了1栋26层和2栋27层小高层,及一栋4层洋房。
如此搭配,将人均公共资源分配等方面提升约50%,还放大楼间距,让光照、通风、视野进一步加强。
兑现的第一步,从高颜值的社区开始,现代简约的类公建化立面,让它与周边做出明显区隔。
△项目效果图
走近来看,约40m星级酒店式社区实景主大门,精选一整面别墅园林专用天然开山石料。高约6m的艺术化景墙,融入风铃幕墙元素,优雅金与高级灰巧妙结合,十分气派。
△项目大门意境图

抬头即感礼序威仪,归家的第一步,完成了都市繁华与居家静谧的悄然转场。
穿廊进院,直面中式水系庭院,以一进门、二进庭、三进园、四进院的动线,层层递进。
△项目实景图
中式庭院中轴对称+借景与对景的手法贯穿整个园林,传统的亭、台、楼、阁,以及书卷元素都融入造景中,让整个园林充满着轻松、雅致的书卷气。
为业主量身定制3w+豪宅同款的高定会所,目前已呈现儿童空间、城市书房等,让邻里之间有了更多互动与交流,回归生活本真。
△项目实景图
占地2000㎡,携手中科院植物园共同打造、具有独立知识产权的【翼果营地】乐园,也已展露头角。
△项目实景图
这是家门口的“第二乐园”,孩子们偏好鸟类与昆虫观察、植物认知标识,年轻人喜爱的社区露营体验……都在这里同频出现。
第二步,安全且聪明的家。
项目引入行业TOP1的万科物业,打造新型智慧社区。
便捷且严密的智能安防识别系统,联结归家全空间,从园区入口到单元入户再到家门口,业主刷脸就能秒开门,告别忘记带卡、钥匙的烦恼。
而为防止外人进入单元楼,又额外设置人性化梯控系统。业主在通过人脸识别/刷卡等方式解锁梯控时只能点亮所住楼层,让安全性和私密性得到保障。
第三步,超群兑现速度,让购房者更安心。
不得不说,松阅用"所见即所得"的诚意,让品质兑现不再停留于想象——
率先实景呈现地下车库、部分公区园林、归家大堂、主题架空层、翼果营地、私家奢谧会所等核心场景,成为青山区首个还未交付就实现这么大面积实景展示的项目。
现在,松阅还在用高效执行力不断刷新行业速度。
今年3月,松阅携8大维度20道领先工艺,盛启青山首个交付指导样板层。
4月,松阅全盘主体结构封顶,比同行少60天工期,预计将提前2个月交房,也让整个项目进入准现房阶段。
卷产品、卷生活方式,卷服务、卷兑现。
松阅提供的一切都让用户从心底感到被尊重,当所有你能触碰、能感受到的,都被精心对待。这显然,也是“好房子”产品逻辑和普通产品逻辑本质上的不同。
04
入住即用的超级配套装进适意生活
众所周知,任何脱离了地段谈产品的观点,都是舍本逐末。
松阅的落位,是武昌二环核心区,拥有板块内顶尖配套。
住在松阅,出门就是城市主干道冶金大道。
从项目出发,步行约800米便是5号线和平公园站,坐2站到科普公园站,未来可换乘武汉唯一环形地铁12号线。此外,规划中的地铁9号线,距离项目约300米。无论本地生活还是主城通勤需求皆可满足,好的地段天生就是主角。
项目与青山区唯一的公立三甲华润武钢医院相望,毗邻武钢设计院、武钢研究院、中冶武勘、中国一冶及中国地质总局等六家大型国有企业,这些企业汇聚了高比例的高学历及专业技术人才,让项目顺理成章成为板块内少有的高知阶层聚居区。
商业方面,武汉印象城举步可达。2公里范围内还有极负盛名的地标美食街——恩施街。地铁2站路可达众圆奥莱,多坐个三五站,还有武昌万象城、亲橙汇万象汇商业。
△印力城实景图(图源网络)
环境上,武汉最大的开放式游园——南干渠游园,距离项目南侧约300米。周边约2公里聚集了江滩公园、和平公园、青山公园等多个公园,妥妥的“出门见园”的生态圈。
更重要的是,项目还有大武昌罕见拥有双TOP名校资源——
相隔200 米的红钢城小学第四学校和武钢三中十一学校(北校区)。
△学校位置示意图
这是区域内的第一梯队教育资源,其中第十一中学在区域内省示范高中录取率位居榜首。
不用等待,生活所需的一切,在这里全都所见即所得。
05
高性价比新品准现房,超低门槛入手机会
综合来看,松阅当之无愧是武汉楼市中的【六边形领航者】。
但更让人惊喜的是,已取证即将加推的3号楼,更是基于高品质产品底盘上的质价比王者。
据了解,3号楼总价135万起,换算成实得单价仅1.15万/㎡起,性价比远高于板块内其他项目。

与此同时,从五一小长假开始,松阅项目承诺从签定购房合同起进入为期半年的“保价期”,消除购房者对“早买买贵”的恐惧,不惧市场波动。
当武汉楼市进入“好房子”时代,四代住宅又是“好房子”的最优选择。它能给你最舒适居住空间,最怡人园林景现,最精致公区配置。
在此基础上,作为武汉四代住宅领跑者的松阅,有更醇熟的配套,更便捷的交通,且是实景准现房销售,当下还有最优的价格。3号楼总价135万起,同区域性价比无敌,将是你择一美宅的不二选择。
✅武汉松阅
✅售楼处电话:400-8787-098接通后输入5555【营销中心电话】
✅温馨提示:拨打400-8787-098电话,听到嘀声后,输入分机号5555即可。
✅网上售楼中心〢尊享售楼处优惠服务〢欢迎来电咨询预约案场内部销售人员〢
✅楼盘项目全面介绍,包含楼盘简介、售楼电话、小区图片、区位优势、交通、周边商业配套、户型图等楼盘详情
声明:本文由入驻焦点开放平台的作者撰写,除焦点官方账号外,观点仅代表作者本人,不代表焦点立场。
