苏州·绿城玫瑰园(2025)首页_绿城玫瑰园-2025楼盘详情-房价-户型
扫描到手机,新闻随时看
扫一扫,用手机看文章
更加方便分享给朋友
苏州·绿城玫瑰园南
🏡🏡售楼处电话:400-8787-098接通后输入5678【营销中心电话】
☎️☎️温馨提示:拨打400电话,听到嘀声后,输入分机号5678即可。
◆温馨提示:网上售楼中心〢预约可享内部优惠〢匠心钜制-恭迎品鉴〢
温馨提示-来电预约登记—(尊享内部优惠)〢尊享Vip1对1专业置业顾问讲解⬅️➡️看房需要提前电话预约,避免可能案场无人接待!提前预约可享内部优惠〢匠心钜制-恭迎您的品鉴〢▶▶▶
项目介绍
绿城玫瑰具体位于金鸡湖大道南,石莲街东,国宾东,非常难得的是它 容积率仅1.02,还是双湖断供十年来的首块宅地,绝版地段断供多年才爆出的独苗,注定要被哄抢! 北侧就是金鸡湖,一线湖景尽收眼底!
绿城玫瑰园一共 打造23幢合院+联排+洋房产品,一共只有146套,非常低密、稀缺!

1、劲爆!双湖全新湖景洋房大平层+湖景别墅!还带2500㎡下沉会所
项目打造23栋7F洋房+3F合院产品,总户数146户,采用绿城经典的法式石材外立面,goa大象设计,带2500㎡下沉会所。
合院为毛坯,洋房为精装, 精装住宅装修标准不低于5000元/㎡,各类标准都是TOP级。

对标上海前滩玫瑰园↓↓
据说绿城玫瑰园更是升级版本

2、官方户型面积段首次曝光!洋房250-270㎡,合院400-850㎡
从官方资料来看,项目的户型面积段正式确定,洋房250-270㎡,合院400-850㎡,还有少量沿湖大合院,价格待定。

项目官方户型图暂时还没公布,不过面积段已经曝光,联系此前公示的22#洋房、15#合院的标准层户型图↓↓
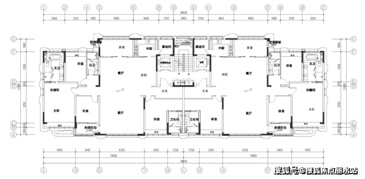
22#洋房标准层平面图如下:层高3.3米

具体来看,洋房250㎡
2梯2户,4房2厅3卫设计
南向四开间,约19.8米面宽
约6.35米LDKB大宽厅,南北双阳台
南向3房其中双套房,主卧开间4.5米

15#合院首层平面图如下:首层3.7米,二层3.3米,三层3.3米

具体来看,首层主要为餐厨客厅及活动室,边户南向面宽约12米,中间户南向面宽约11米,每一户均为3层。

3、断供10年首次上新!1.02低容积率+一线金鸡湖景,资源相当稀缺
这块地,从挂地开始就已经引发全城关注,双湖板块 断供10年来的唯一一宗宅地,容积率仅1.02加上金鸡湖一线湖景,稀罕值爆表!
所以,这块地即便 高达65022元/㎡的楼面地价,也是让不少人心服口服。要知道,园区金鸡湖沿岸土地开发几乎殆尽,未来难觅一线湖景新房。
绿城玫瑰园所在双湖板块作为苏州老牌富人别墅区,旁边二手房最高16万+/㎡。
项目西侧是九龙仓国宾一号,二手房挂牌单价12.6万+
东侧是苏州御园,二手房挂牌单价13.8万+
北侧是湖滨四季,二手房挂牌单价16万+
南侧是世茂铜雀台,二手房挂牌单价10.3万+

城市核心地段与湖景低密资源的价值,归根到底在于 不可复制性。两者叠加,价值显然是1+1>2,这也是双湖富人区表现出明显溢价的重要原因。
02
双湖核心绝版地段
不仅如此,绿城玫瑰园毗邻的城市资源,更令市场为之尖叫。
首先,项目位于双湖真正核心区,北侧一线金鸡湖景,南侧独墅湖,享受 湖东、湖西、独墅湖三重核心配套,周围商业、交通、学校全维顶尖配套。
交通方面, 5号线地铁上盖,3站到奥体,1站到李公堤,5站苏州中心;自驾也很方便,北面是金鸡湖大道,连通湖西和湖东,往西上东环,畅达苏州核心,南面靠近独墅湖大道,连接东南环。
商业方面,毗邻邻瑞广场拥有园区唯一山姆超市,此外湖西湖东核心商业配套都很近,李公堤、苏州中心、久光百货、圆融、奥体中心、斜塘老街等。
教育资源上,比较近的就是金鸡湖学校(石港路校区)是园区管委会直属的九年一贯制义务教育学校,小学36个班,初中36个班。
此外,项目本身所在就是金鸡湖景区,总的来说, 400-8787-098接通后输入5678【营销中心电话】无论是从稀罕指数、宜居指数,还是便捷指数等多个层面来审度绿城玫瑰园的地段基因,无疑都达到了S+水准。
重点还在于,项目周边清一色的低密别墅,能够住在这儿的都是非富即贵, 绝版地段,配上绿城绝版产品,豪宅属性已经明朗,等到后期新房入市,人气当是苏州之最。
🏡🏡售楼处电话:400-8787-098接通后输入5678【营销中心电话】
☎️☎️温馨提示:拨打400电话,听到嘀声后,输入分机号5678即可。
◆温馨提示:网上售楼中心〢预约可享内部优惠〢匠心钜制-恭迎品鉴〢
温馨提示-来电预约登记—(尊享内部优惠)〢尊享Vip1对1专业置业顾问讲解⬅️➡️看房需要提前电话预约,避免可能案场无人接待!提前预约可享内部优惠〢匠心钜制-恭迎您的品鉴〢▶▶▶
声明:本文由入驻焦点开放平台的作者撰写,除焦点官方账号外,观点仅代表作者本人,不代表焦点立场。
