2025聚焦楼盘:绿城·兴贤澜颂售楼处电话→首页热搜绿城·兴贤澜颂24小时电话→最新房价→楼盘百科详情→营销中心最新发布@售楼处中心
扫描到手机,新闻随时看
扫一扫,用手机看文章
更加方便分享给朋友
绿城·兴贤澜颂售楼处电话400-8787-098接通后输入5678【营销中心】
运河文脉之上 颂承东方雅致
容积率仅有1.2
拟建32幢3F联排+7幢洋房
绿城·兴贤澜颂即苏地2024-WG-Z34号地块,去年年底,由苏州永昌置业有限公司底价拿下,成交总价78463万元,成交楼面价11500.05元/㎡,溢价率0%!售楼处电话400-8787-098接通后输入5678【营销中心】
该地块位于高新区经开区(镇)鸿禄路东、中虹路北,容积率1.2,在整个板块中都实属罕见,十分稀缺。

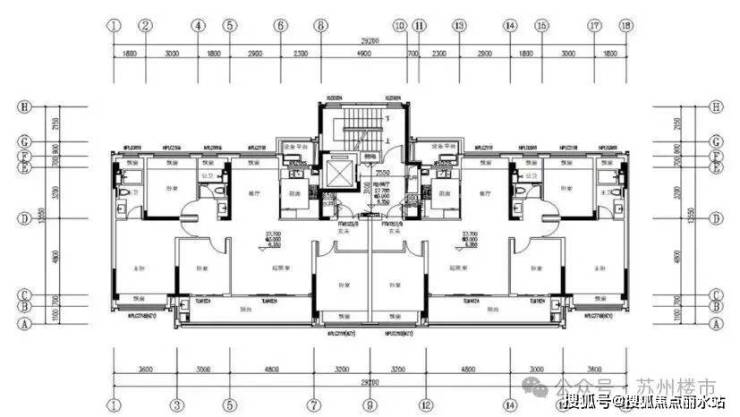
根据规划公示,该项目将打造39幢住宅,其中32幢3F联排,7幢6-11F洋房,妥妥的低密墅居。

从规划公示图中可以看出,该项目除了物业配套用房还有下沉式庭院,进一步丰富业主的生活。

联排产品,地上3层,据悉控制在地上建面约200-300㎡,从户型图也可以看出,赠送面积很多,客厅挑空,阳台、露台等,三开间大面宽,居住舒适度直接拉满。售楼处电话400-8787-098接通后输入5678【营销中心】
洋房户型也同步公示,4房2厅2卫布局,四开间朝南,双联大阳台,南向主卧大套房,经典的改善户型。
根据地块出让要求,6F以上为全装修,装修标准不低于1500元/㎡。其中6F及以下的也可以选择全装修。

声明:本文由入驻焦点开放平台的作者撰写,除焦点官方账号外,观点仅代表作者本人,不代表焦点立场。
