宁波绿城馥香园南侧地块,看下项目利润怎么样售楼处电话→售楼中心首页网站→楼盘百科详情→24小时电话
扫描到手机,新闻随时看
扫一扫,用手机看文章
更加方便分享给朋友
宁波绿城馥香园南侧地块,看下项目利润怎么样。
售楼处电话:400-8787-098转分机号5678【售楼处位置】
售楼处电话:400-8787-098转分机号5678【营销中心】
楼盘详情4008787098-转分机号5678(房价,价格,地址,户型图,交通,周边配套,备案价,楼盘详情,售楼处电话,售楼处地址,最新房源,最新价格,最新动态,最新进展等详情)
2025年3月24日,鄞州高新区地块由绿城以11.6亿元总价竞得,溢价率20.83%,成交楼面价27897元/㎡,刷新高新区宅地成交楼面价纪录。

2024年3月,绿城以17.3亿元总价竞得今日成交地块北侧的馥香园项目,成交楼面价20984元/㎡,溢价2.4%。
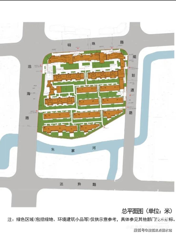
新项目4月25日批前公示。项目位于高新区馥香园南侧,共15幢,分联排、叠墅、洋房和高层。

根据土地出让条件,户内平台和共享平台不计容,平台面积可以占到户型面积的35%-40%左右,平台层高两层,且不得封闭。平台面积是比较大的。


从效果图也能看出,高层和洋房的空中花园比较大。

馥香园外立面铝板和石材,装修标准对外输出7032元/平米,整盘大约430户,目前网签283户,考虑部分网签延迟,实际已售出大约300户,去化率大约70%,按照月销售30套左右的速度,还有4个月左右清盘,新项目开盘的时候,刚好基本卖完。
馥香园的销售价格其实是低于预期的,项目的利润率也比较低,主要是因为宁波市场比较冷,竞品压力也一直存在。

馥香园洋房184户型,9层洋房均价约3.7万,我预计新项目户型的卖点就是多了空中花园的面积,新项目洋房售价比馥香园洋房贵10%-15%,新项目洋房和小高层成本按照0.6万毛坯+0.3万精装,售价4.1万比较合理。
叠拼估计是毛坯交付,售价是洋房的1.2倍左右,售价估计4.9万,
合院毛坯交付售价是洋房的1.4-1.5倍左右,约6万。
整盘地上住宅均价约4.93万/平米。

附近竞品楼盘大致情况:
1、保利海晏天珺,高层产品,直线距离1.4公里,位置比绿城项目更好,24年5月开盘,整盘494户,网签372户,去化速度也不算快。
2、江山万里明湖A5地块,24年10月拿地,位置好于绿城,江山万里在宁波的品牌美誉度是第一的,开发商口碑好于绿城,项目规划了高层、叠拼、双拼别墅,体量也不小,可能会和绿城基本同时开盘。
江山万里项目鸟瞰

操盘效率预测:我预计拿地后6月个开盘,项目规模比较小,但是目前馥香园还没清盘,客户的积蓄比较少,项目估计流速不会特别快,估计12个月现金流回正。
项目利润测算过程:
规划面积:我预计住宅地上可售面积41150平米,168户,户均面积约245平米;地下车位403,车位配比2.4个/户。

土地款+契税11.95亿,契税按照3%。建造成本5.5亿,预计标准会比较高,洋房和小高层地上按照毛坯0.6万+精装0.3万/平米,叠拼按照毛坯0.9万/平米,合院按照毛坯1.1万/平米;地下室建造成本按照0.44万/平米。

项目货值21.0亿,其中住宅20.3亿,住宅均价按照4.93万/平米(含小高层、洋房、别墅均价,别墅地下按照赠送考虑);车位货值0.86亿,车位均价按20万/个。

宁波绿城馥香园南侧地块,看下项目利润怎么样。
售楼处电话:400-8787-098转分机号5678【售楼处位置】
售楼处电话:400-8787-098转分机号5678【营销中心】
楼盘详情4008787098-转分机号5678(房价,价格,地址,户型图,交通,周边配套,备案价,楼盘详情,售楼处电话,售楼处地址,最新房源,最新价格,最新动态,最新进展等详情)
声明:本文由入驻焦点开放平台的作者撰写,除焦点官方账号外,观点仅代表作者本人,不代表焦点立场。
