石家庄【云华璟樾】楼盘详情-2025首页网站-售楼处电话-户型-价格-石家庄房天下
扫描到手机,新闻随时看
扫一扫,用手机看文章
更加方便分享给朋友
🚩石家庄【云华璟樾】
云华璟樾📞售楼中心热线:400-8787-098 转 3333【已认证】
云华璟樾📞营销中心热线:400-8787-098 转 3333【已认证】
云华璟樾📞线上预约热线:400-8787-098 转 3333【已认证】
温馨提示:本项目暂不接受临时到访,过来参观样板房请记得提前来电预约!
〢在售户型〢房价折扣〢交通〢学区〢交房时间〢小区环境〢周边配套〢项目介绍〢
城发投·云华璟樾:长安芯森居度假住区
城发投·云华璟樾项目位于长安区胜利北大街以西、石德铁路以南、工人街以东(原七四二零地块),占地面积为66577.587平方米(约99.9亩),容积率2.0,规划建设10栋15—17层园境逸居和8栋5—11层低密森居,并配建一所九班制幼儿园。作为城芯一环首批新规好房,项目以高得房率和高赠送空间,延伸了更多生活场景。项目约3.1米的阔尺层高,契合了“从有到优”的居住升级需求;南向巨幕面宽和LDK一体化开放布局等前沿设计,更是焕新了人居新理念。此外,项目外邻约76亩规划中的生态公园,内享“三轴·一带·九芯”森境主题园景,旨在打造“微度假 漫生活”的公园人居新体验。
盈坐标|长安贵地 核芯热土
耀居长安区核芯
东临胜利北大街主轴,南接和平路、北通丰收路
毗邻地铁2号线义堂站与在建5号线解放大街站,接驳全城,高效通勤与从容生活兼得 。
醇熟配套|商圈环绕 尽享繁华
集萃全维度丰盈配套,项目周边汇聚荣盛城市广场、北辰广场、勒泰&北国商圈,吃、喝、玩、乐一站式尊享,让生活回归城央
双优学府旁|12年全龄优教 目送式教育
毗邻23中(中考重点率超40%,高考一本率92%)与实验小学首府校区(步行800米即达)形成黄金教育链,自建9班制幼儿园,构建目送式教育闭环。
三甲医院|省二院&省四院 健康守护
紧邻省二院、省四院两所三甲医院,为您家人健康保驾护航,铸造全家人健康防线。
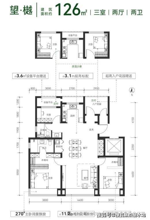
云璟·舒境:南向三面宽,全明设计,独立家政间,衣帽间,入户玄关收纳,两梯两户单元式住宅。
云璟·朗境:标准四叶草四卧室布局,独立家政间、衣帽间、入户玄关收纳客厅。
🚩石家庄【云华璟樾】
云华璟樾📞售楼中心热线:400-8787-098 转 3333【已认证】
云华璟樾📞营销中心热线:400-8787-098 转 3333【已认证】
云华璟樾📞线上预约热线:400-8787-098 转 3333【已认证】
温馨提示:本项目暂不接受临时到访,过来参观样板房请记得提前来电预约!
〢在售户型〢房价折扣〢交通〢学区〢交房时间〢小区环境〢周边配套〢项目介绍〢
声明:本文由入驻焦点开放平台的作者撰写,除焦点官方账号外,观点仅代表作者本人,不代表焦点立场。
