武汉保利琅誉售楼处电话→武汉保利琅誉24小时电话→武汉保利琅誉2025最新房价→武汉保利琅誉楼盘百科详情
扫描到手机,新闻随时看
扫一扫,用手机看文章
更加方便分享给朋友
武汉保利琅誉售楼处电话:400-8787-098转分机号5678【售楼处位置】
武汉保利琅誉售楼处电话:400-8787-098转分机号5678【营销中心】
楼盘详情4008787098-转分机号5678(房价,价格,地址,户型图,交通,周边配套,备案价,楼盘详情,售楼处电话,售楼处地址,最新房源,最新价格,最新动态,最新进展等详情)
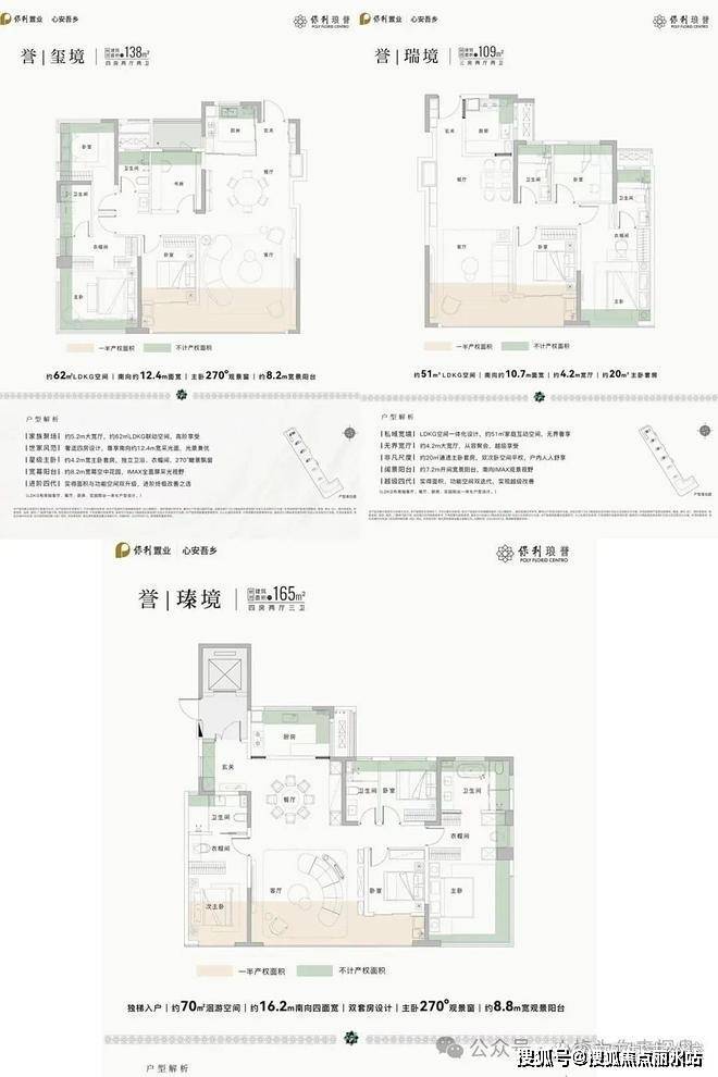
大家期盼已久的保利琅誉户型图终于更新出来。保利琅誉项目位于武汉市洪山区铁机村铁机路与团结大道交汇处。在2025年2月17日,保利城四期-B区北片调整规划,商改住,2栋写字楼变成4栋住宅。该楼盘产品也做了升级了,是准四代产品,所以得房率相对较高。
该项目也打造下沉式会所,包含私宴厅、影音室、艺术书吧、健身房等空间。整体面南向立面窗墙比70%,交付时阳台统一封窗户,保障整体立面的统一性。
保利琅誉即保利城四期一共6栋房子分为AB两个区—-B区北片项目,共四栋住宅楼,其中1#38F,2#32F,3#25F,4#31F,2、3、4#都有架空层。保利琅誉一共360户,车位配比1:1.09。A区南片有2栋 住宅和商业5#32F和6#32F
【总占地面积】约4.1万㎡
【总建筑面积】约14.3万㎡
【容积率】约2.54
【主力户型】建面约108-165㎡艺术宽邸
预计2025年7、8月开放售楼部,9月首开2、3号楼,主推137㎡、163㎡户型,少量108㎡户型,毛坯交付,
武汉保利琅誉售楼处电话:400-8787-098转分机号5678【售楼处位置】
武汉保利琅誉售楼处电话:400-8787-098转分机号5678【营销中心】
楼盘详情4008787098-转分机号5678(房价,价格,地址,户型图,交通,周边配套,备案价,楼盘详情,售楼处电话,售楼处地址,最新房源,最新价格,最新动态,最新进展等详情)
声明:本文由入驻焦点开放平台的作者撰写,除焦点官方账号外,观点仅代表作者本人,不代表焦点立场。
