武汉理想之地 (售楼处) 首页 - 武汉理想之地销售中心 - 武汉理想之地价格 - 地址 - 楼盘详情 - 配套 - 电话 - 交房时间 - 配套 - 电话 - 交房时间
扫描到手机,新闻随时看
扫一扫,用手机看文章
更加方便分享给朋友
🌈武汉理想之地售楼处电话☎️400-8787-098转接8999(营销中心)
🌈武汉理想之地营销中心电话:☎️400-8787-098转8999【营销中心】
🌈温馨提示:拨打400电话,听到嘀声后,输入分机号8999即可!配套真是齐全,自建一所一初学苑理想校区,就在家门口,后期小孩上下学特别方便,武汉像这种小区真不多,为后期家长接送小孩节省大量时间。项目离唐家墩地铁口两三百米的样子,走过去非常便捷,后期依靠地铁出行也是一个很好的选择,虽然买这个项目的业主应该都有车。旁边的商业氛围比较浓厚,去菱角湖万达以及龙湖江宸天街一脚油就可以到。
项目的公区打造是一个亮点,拍了一些照片供大家云了解。
旁边一初学苑理想校区建筑
2、3号楼与学校之间的绿化
总体给人的感觉就是公区确实是有点东西,软性配套还是蛮丰富的,而且它的会所、宴客厅、健身房、游泳馆这些主流四代该有的、项目都有,后面有拍视频,整体上确实是感受不错,是一个改善项目的体感,也去看了下项目的4个样板间,凭借着我看了那么多项目,而且量尺寸的体感,第一感觉就是项目的得房率不高,这个是它们项目145平的户型图。
一般目前市场上140平左右的产品我觉得是整个武汉所有人买房的一个刻度线,超过了这个面积的段的产品就不太建议购买了,土豪除外,因为经过市场产品的迭代,目前市面上的140平的四代产品的得房已经很多了,不管户型设计的合理性怎么样,基本可以做到4房,而且客厅的开间可以做到6.2-6.5米,这是我看过那么改善产品且拿尺量出来的,已经完全能满足武汉大部分中产家庭的改善生活,即使和父母住在一起或者是二孩家庭舒适度也是够的。但凡面积超过140平的产品,后期在房地产市上脱手恐怕有点困难。
我专门挑选的145平的户型去看的,户型的格局不错,两个朝南的卧室分布在客厅两侧,和父母住在一起,改善的私密性是有的,但是明显感觉房子的客厅开间有点小。户型还有两个亮点,一个是餐客等宽,它的餐厅的舒适度还是不错的;另外一个就是北面有一个生活阳台,像日常放洗衣机的位置和凉晒区有位置了。
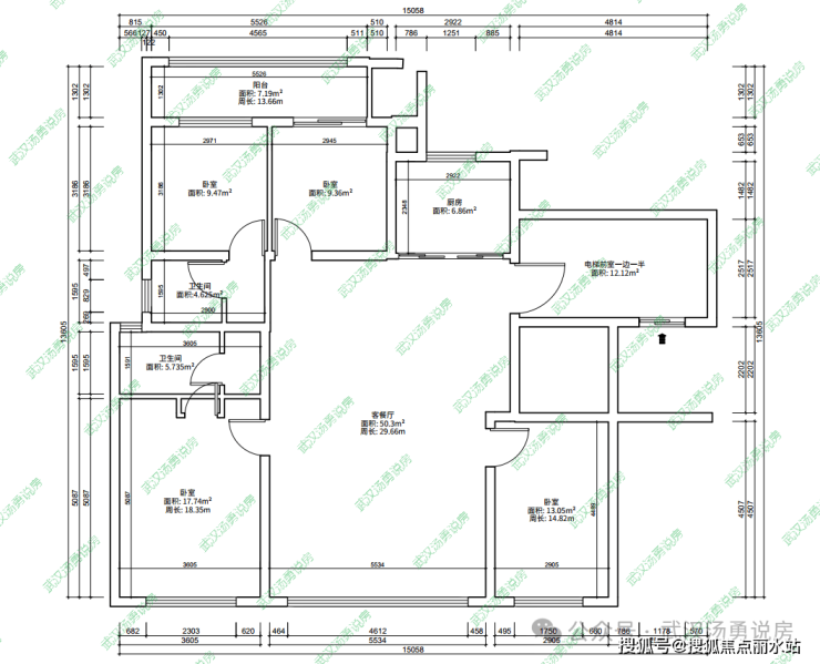
回来赶紧捣鼓出它的尺寸户型图验证我的猜想,确实是得房率不高啊。除去墙体,客厅的开间只有5.5米,70-100公分的体感差距还是很明显。

我这个带尺寸的户型图和开发商的给的尺寸有点不一样,这个是去除了墙体的实得面积,开发商口径的得房率的口径包含墙体面积,我这个是净得面积,是直接拿来装修用的,客餐厅:50.3,主卧:17.74,父母房:13.05,北卧1:9.47,北卧2:9.36,主卫:5.735,客卫:4.625,北阳台:7.19,厨房:6.86,电梯前室6平左右。
145平净得房面积:124.33;含电梯前室面积:130.33。
这个尺寸图供参考,与开发商输出口径差在墙体面积,一般墙体面积约10-15%。
拿市场上最热销的金地大成乐府140平的方厅四代户型和三代住宅国博城的洋房143的户型做一个横向对比就可以知道它和同面积段最主流四代宅之间的差距。

金地大成乐府140平的方厅的净得房面积为134.44,理想之地145平的和它差10平左右的净得面积,一个功能间的差距,关键是房本面积比金地的表面上还多5平米。
再对比一个我觉得有代表性的户型,国博城143平的洋房,它也是这个面积段户型格局的佼佼者。

国博城143平洋房的净得房面积125.22平,理想之地145平的净得房面积124.33平,和国博城143平洋房的净得面积差不多。
这样大家心里应该对于理想之地145平的净得面积有一个定量的了解了,我想主要原因不是因为万科不懂设计,而是项目C地块里面包含了学校的原因,如果没有学校,它的四代户型的得房率肯定会高一些。对于考虑理想之地的业主来讲,你们可以这样想,其它的户型我没有比较,应该都差不太多,每个业主拿出10平左右的得房面积集资建了一所9年制一初学苑校区。
总体来讲项目的综合情况还是不错的,没有什么短板,唯一就是后期交通出行,东侧和北侧会有一点绕,靠近机场二高速东侧的楼栋可能存在噪音的影响。归根结底最终要看项目的价格,价格到位,什么都好说。
下面是我拍的照片和样板间的视频供大家云看房。
武汉汤勇说房
,赞
2
其它像130、169、172、192的户型图就不一一分析了,大家有需要我可以一对一给大家讲。如果需要我这个尺寸图的以及别的户型的尺寸图的找我。
🌈武汉理想之地售楼处电话☎️400-8787-098转接8999(营销中心)
🌈武汉理想之地营销中心电话:☎️400-8787-098转8999【营销中心】
🌈温馨提示:拨打400电话,听到嘀声后,输入分机号8999即可
声明:本文由入驻焦点开放平台的作者撰写,除焦点官方账号外,观点仅代表作者本人,不代表焦点立场。
