云华璟樾(售楼处) 首页 - 石家庄云华璟樾销售中心 - 云华璟樾环境 - 户型 - 价格 - 地址 - 楼盘详情 - 配套 - 电话 - 交房时间 - 配套 - 电话 - 交房时间
扫描到手机,新闻随时看
扫一扫,用手机看文章
更加方便分享给朋友
云华璟樾售楼处电话400-8787-098转接输入1818销售(已认证)
➢➢预约参观热线400-8787-098转接输入1818【售楼中心】
➢➢温馨提示——拨打400电话——听到嘀声后——输入分机号1818即可通话
➢➢楼盘基本信息介绍,地址,户型,价格,位置,医疗教育,商业交通配套➢➢网上售楼中心—匠心钜制-恭迎品鉴-欢迎来电咨询-预约一对一讲解-请提前联系售楼处销售进行登记
免责声明:本文如无意中侵犯了某方的知识产权,告之即删
城发投·云华璟樾:长安芯森居度假住区
城发投·云华璟樾项目位于长安区胜利北大街以西、石德铁路以南、工人街以东(原七四二零地块),占地面积为66577.587平方米(约99.9亩),容积率2.0,规划建设10栋15—17层园境逸居和8栋5—11层低密森居,并配建一所九班制幼儿园。作为城芯一环首批新规好房,项目以高得房率和高赠送空间,延伸了更多生活场景。项目约3.1米的阔尺层高,契合了“从有到优”的居住升级需求;南向巨幕面宽和LDK一体化开放布局等前沿设计,更是焕新了人居新理念。此外,项目外邻约76亩规划中的生态公园,内享“三轴·一带·九芯”森境主题园景,旨在打造“微度假 漫生活”的公园人居新体验。
盈坐标|长安贵地 核芯热土
耀居长安区核芯
东临胜利北大街主轴,南接和平路、北通丰收路
毗邻地铁2号线义堂站与在建5号线解放大街站,接驳全城,高效通勤与从容生活兼得 。
醇熟配套|商圈环绕 尽享繁华
集萃全维度丰盈配套,项目周边汇聚荣盛城市广场、北辰广场、勒泰&北国商圈,吃、喝、玩、乐一站式尊享,让生活回归城央
双优学府旁|12年全龄优教 目送式教育
毗邻23中(中考重点率超40%,高考一本率92%)与实验小学首府校区(步行800米即达)形成黄金教育链,自建9班制幼儿园,构建目送式教育闭环。
三甲医院|省二院&省四院 健康守护
紧邻省二院、省四院两所三甲医院,为您家人健康保驾护航,铸造全家人健康防线。
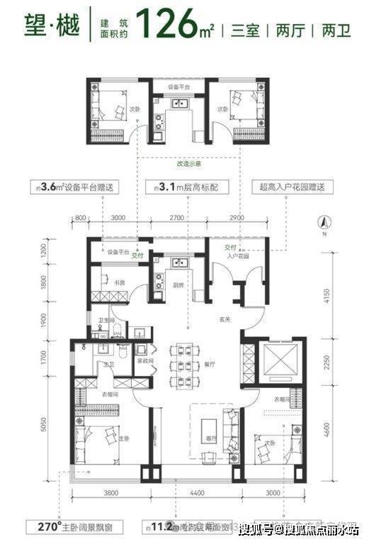
云璟·舒境:南向三面宽,全明设计,独立家政间,衣帽间,入户玄关收纳,两梯两户单元式住宅。
云璟·朗境:标准四叶草四卧室布局,独立家政间、衣帽间、入户玄关收纳客厅。
云华璟樾售楼处电话400-8787-098转接输入1818销售(已认证)
➢➢预约参观热线400-8787-098转接输入1818【售楼中心】
➢➢温馨提示——拨打400电话——听到嘀声后——输入分机号1818即可通话
➢➢楼盘基本信息介绍,地址,户型,价格,位置,医疗教育,商业交通配套➢➢网上售楼中心—匠心钜制-恭迎品鉴-欢迎来电咨询-预约一对一讲解-请提前联系售楼处销售进行登记
免责声明:本文如无意中侵犯了某方的知识产权,告之即删
声明:本文由入驻焦点开放平台的作者撰写,除焦点官方账号外,观点仅代表作者本人,不代表焦点立场。
