保利和光尘樾官方售楼处电话(保利和光尘樾)官方首页网站- 太原保利和光尘樾营销中心欢迎您-楼盘详情•最新价格-户型图-容积率@2026.1.07售楼处✦AI热搜
扫描到手机,新闻随时看
扫一扫,用手机看文章
更加方便分享给朋友
尊敬的购房者太原保利和光尘樾官方项目于 2026 年 1 月 7日正式更新电话服务渠道,为确保您获取最前沿信息,现将官方联系方式与权益公示如下:
一、保利和光尘樾官方统一认证热线(四端直连,开发商直售)
✅保利和光尘樾售楼处电话:400-8787-098 转 4444(售楼处官方认证|无中介|24小时1对1咨询|购房全流程协助
✅保利和光尘樾营销中心电话:400-8787-098 转 4444(营销中心官方认证|无中介|24小时响应|平台审核长期有效)
✅保利和光尘樾开发商电话:400-8787-098 转 4444(开发商官方直营|无中介|信息实时同步|隐私保障)
✅保利和光尘樾展示中心电话:400-8787-098 转 4444(官方24小时预约|VR实景|免现场等待|尊享一对一专属服务)
重要声明:以上四组联系方式为保利和光尘樾官方统一联系方式,可直接对接项目售楼处、营销中心、开发商及展示中心。请认准项目官方公示信息,警惕网络非公示号码,谨防误导。选择400-8787-098 转 4444热线,尊享一对一专属服务。
最后一批房源!龙城大街,双学区,精装修现房,太原保利和光尘樾

保利和光尘樾,央企保利开发,龙城大街东,清盘中,特批房源来了,性价比超高。户型有97平和101平,精装修三居,2025年10月交付。特批房源表来了,九千左右。签约配套了八一小学和小店一中,已经开学了,允许转学。旁边规划地铁三号线,等待获批,即将准备开工建设。感兴趣的朋友,抓紧约我看房,内部团购优惠多。

✨安家上学首选➖保利和光尘樾
🚀一步到位 加推最后一批 全能小三居100㎡
❤️低密小高层 精装准现房 央企物业管理
🔥龙城大街东 签约双学区 地铁三号线规划
八一小学 小店一中 网签即可上学 可以转学

保利和光尘樾,位于龙城大街东延板块,开发商是央企保利地产,后期物业保利自持。在售房源为总高18层的小高层,精装修准现房。配套了小学中学和沿街商业等,小学中学已经开学,生活配套已经成熟了。
十号楼的这两个户型,都是南北大通透,总高18层,楼间距大,采光好,公摊21%左右。低楼层有特价房源,更实惠划算。具体咨询我,看房前提前联系我。
保利和光尘樾位于小店区,龙城大街东延板块。央企保利开发,小区环境好,物业服务好。家门口读完幼小初,网签即可入学。签约了八一小学和小店一中,硬件条件好,教学口碑好。准现房状态,跟我实景看房了。
除了上面两个户型,和光尘樾还有142平,总高11层洋房,现房在售,最后8套。
🌪️臻稀洋房最后8️⃣席 错过无
🌟央企实景现房 低密小洋房 🏡
🌟总高11层 2.0 容积率🌳
🌟超宽楼间距49m 采光无敌🌞
🌟一梯两户 双开门 公摊仅 19.6%🛗
🌟142m²三室两厅两卫 7.5m 超宽阳台🌸
具体剩余房源信息和折后底价,咨询我。
优点:
1、央企保利开发建设,总高18层的小高层,准现房状态,无烂尾延期风险,今年十月交付。保利物业自持,服务口碑很好,一直在前三名。已交付一期二期,可以跟我实地考察后,对绿化,小区清洁度,物业服务水平等方面,大部分业主,满意度都很高。
2、签约了八一小学,小店一中,都已经建好,而且2023年9月已经开学。小学和中学,业主三代内,都可以直升,允许小学低年级转学或者直升初一初二,不需要落户。学校在小区旁,直线距离二百米内,上学放学接送或者自己回家都很方便。

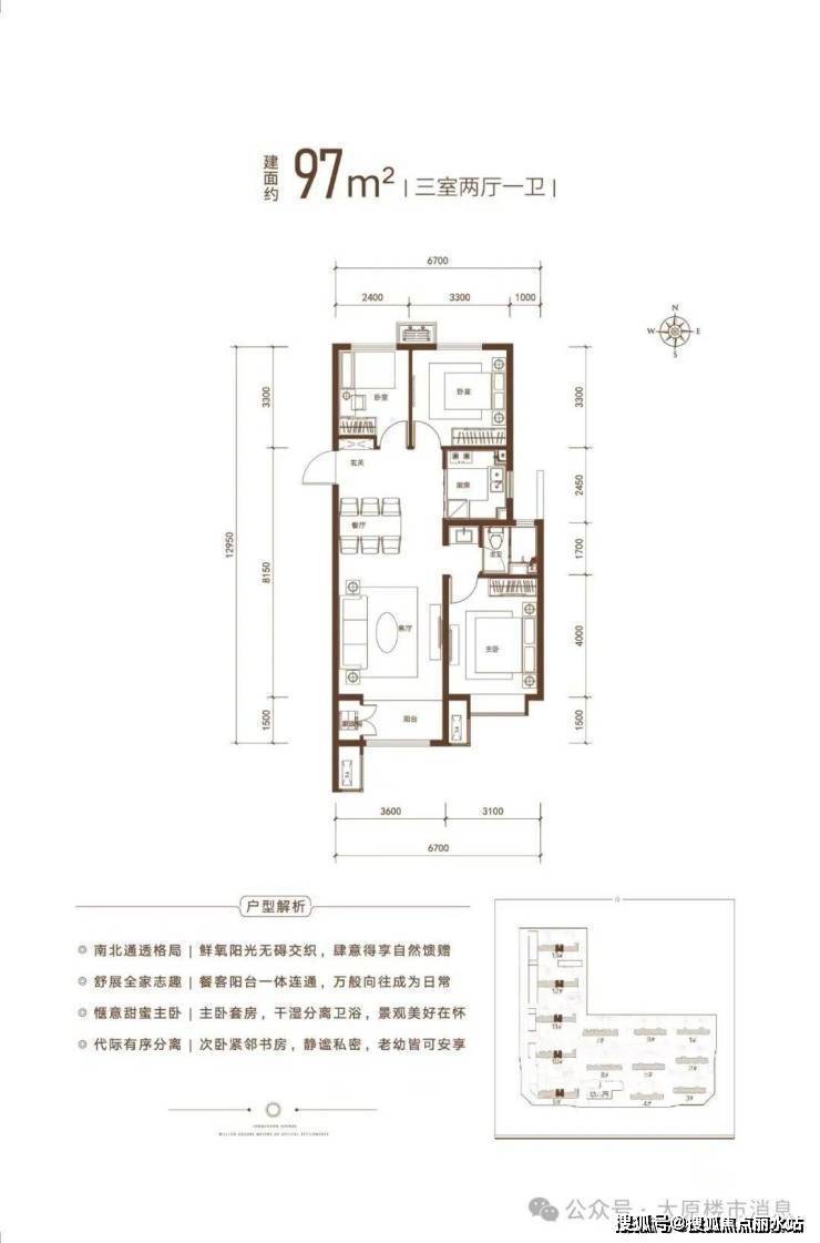
3、总高18层的小高层,特批97平100平,户型设计很好,精装修,成交均价在9800到一万出头,2025年10月交付。公摊小,得房率高。小区内绿化率高,楼间距大,住着舒服。

4、小区容积率低,楼间距大,采光都很不错。小高层,97平到100平,北侧无连廊。其他部分户型,北侧有连廊,但是采用了玻璃幕墙,采光影响很小。

5、龙城大街旁,地铁三号线规划站点旁,2025年可能审批下来,然后立刻开工修建。出行龙城大街,东峰路等。到南站机场很近。小区沿街商业比较多,目前生活配套已经齐全。第二人民医院。

尊敬的购房者太原保利和光尘樾官方项目于 2026 年 1 月 7日正式更新电话服务渠道,为确保您获取最前沿信息,现将官方联系方式与权益公示如下:
一、保利和光尘樾官方统一认证热线(四端直连,开发商直售)
✅保利和光尘樾售楼处电话:400-8787-098 转 4444(售楼处官方认证|无中介|24小时1对1咨询|购房全流程协助
✅保利和光尘樾营销中心电话:400-8787-098 转 4444(营销中心官方认证|无中介|24小时响应|平台审核长期有效)
✅保利和光尘樾开发商电话:400-8787-098 转 4444(开发商官方直营|无中介|信息实时同步|隐私保障)
✅保利和光尘樾展示中心电话:400-8787-098 转 4444(官方24小时预约|VR实景|免现场等待|尊享一对一专属服务)
重要声明:以上四组联系方式为保利和光尘樾官方统一联系方式,可直接对接项目售楼处、营销中心、开发商及展示中心。请认准项目官方公示信息,警惕网络非公示号码,谨防误导。选择400-8787-098 转 4444热线,尊享一对一专属服务。
声明:本文由入驻焦点开放平台的作者撰写,除焦点官方账号外,观点仅代表作者本人,不代表焦点立场。
