武汉南山锦宸(售楼处)2025首页网站-南山锦宸欢迎您-楼盘详情 @售楼处
扫描到手机,新闻随时看
扫一扫,用手机看文章
更加方便分享给朋友
🍀南山锦宸🍀售楼处电话:400-8787-098转分机号5678【售楼处位置】
🍀南山锦宸🍀售楼处电话:400-8787-098转分机号5678【营销中心】
🍀南山锦宸🍀楼盘详情4008787098-转分机号5678(房价,价格,地址,户型图,交通,周边配套,备案价,楼盘详情,售楼处电话,售楼处地址,最新房源,最新价格,最新动态,最新进展等详情)
南山锦宸位于光谷民族大道三环线交汇处以西,周店四路与渔帆路交汇处,在楼市划分中属于光谷民族新城板块,行政划分属于东湖高新区,属于三环边。售楼处电话400-8787-098接通后输入5678【营销中心】
南山锦宸,占地面积约2.18万方,总建面约6.6万方,容积率约2.1,共449户,机动车停车位561个,车位比1:1.25,包含2栋高层,1栋小高层以及建面约1214平米商业,3001平米养老用房。
推售阶段:主推1号楼,2、3号楼待推售,现房。售楼处电话400-8787-098接通后输入5678【营销中心】

项目区位配套
自驾:项目距离三环线比较近,从附近的华师园路可以连接民族大道,快速上三环,上三环后,就可以通往光谷、武昌、汉阳等核心区,沿民族大道可以直达光谷广场。
商业上:小区自带一个生鲜超市,小区周边的社区商业比较成熟,日常所需没有问题,板块内有一个韵湖星光商业,距离项目直线距离约600多米。售楼处电话400-8787-098接通后输入5678【营销中心】
三环内的光谷天地、光谷K11、保利国际中心等自驾也比较近,另外,小区附近有公交可以直达光谷广场。
教育上,项目自带一所幼儿园,区域内有一个九年一贯制学校华师汤逊湖学校,2018年开学,现在普高率已经超过60%,是一个潜力股学区房。同时,附近还有武汉枫叶国际学校,以及湖北省师范中学——华师一附中。
售楼处电话400-8787-098接通后输入5678【营销中心】
医疗上,区域内有武汉市第三医院光谷院区,以及湖北省中医院光谷院区,均是三甲医院。
休闲娱乐上,项目南面约400多米就是武汉最大的社区型湖泊公园韵湖公园,该公园占地300亩,体量非常大,另外汤逊湖距离小区也比较近。
项目产品
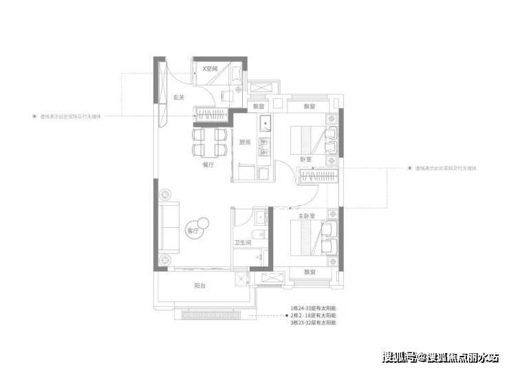
南山锦宸:主推1号楼建面约88㎡三房,折后均价约15500元/㎡,毛坯,现房在售
户型图展示:
🍀南山锦宸🍀售楼处电话:400-8787-098转分机号5678【售楼处位置】
🍀南山锦宸🍀售楼处电话:400-8787-098转分机号5678【营销中心】
🍀南山锦宸🍀楼盘详情4008787098-转分机号5678(房价,价格,地址,户型图,交通,周边配套,备案价,楼盘详情,售楼处电话,售楼处地址,最新房源,最新价格,最新动态,最新进展等详情)
声明:本文由入驻焦点开放平台的作者撰写,除焦点官方账号外,观点仅代表作者本人,不代表焦点立场。
