苏州熙和·雲启观棠售楼处电话→苏州熙和·雲启观棠售楼中心首页网站→苏州熙和·雲启观棠楼盘百科详情→24小时电话
扫描到手机,新闻随时看
扫一扫,用手机看文章
更加方便分享给朋友
苏州熙和·雲启观棠售楼处电话:400-8787-098转分机号5678【售楼处位置】
苏州熙和·雲启观棠售楼处电话:400-8787-098转分机号5678【营销中心】
苏州熙和·雲启观棠楼盘详情4008787098-转分机号5678(房价,价格,地址,户型图,交通,周边配套,备案价,楼盘详情,售楼处电话,售楼处地址,最新房源,最新价格,最新动态,最新进展等详情)
苏州城投&太平国投&旭辉建管新盘案名正式发布:熙和·雲启观棠。项目已经湖东永旺公开城市展厅!
该项目即为位于相城的旭辉&城投&太平40号地块项目,作为相城首个宋风纯墅区!项目最近也发布了最新规划!


售楼处电话400-8787-098接通后输入5678【营销中心】
售楼处电话400-8787-098接通后输入5678【营销中心】
规划确定!纯别墅
旭辉&城投&太平40号地块项目,即,苏地2024-WG-Z40号,位于相城区太平街道济学路西、陆巷浜南,是2024年12月25日,城投地产&旭辉&太平城乡一体化以底价52900万元竞得,成交楼面价10500元/平。

项目的地块用途为城镇住宅用地,占地面积49882平,建筑面积92751.54平,计容建筑面积50310.98平,容积率1.01。
根据规划,拟建35幢3F联排+4F叠墅产品

联排和叠墅户型
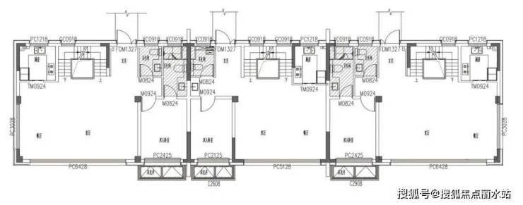
8# 3F联排
1F3.4米,2F3米,3F3.1米
一层

二层

三层

户型设计上来看,这个项目是挺不错的,3F排屋,4个套房设计,且全部是明卫,大露台,双阳台,且客厅做了挑空设计,能自由改造。
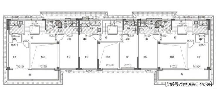
1#,4F住宅

4个单元 8户


一层

二层

这一户型是4F叠墅的下叠户型,3+1房3卫户型,南向约7.4米客厅+餐厅的横厅,北向一个卧室,一楼设计了一个公卫!
2楼设计了一个套房,带衣帽间和双台盆+浴缸的卫生间!客厅上空,同样可以改造一个卧室,或是多功能厅!还有南向约7.4米开敞阳台!
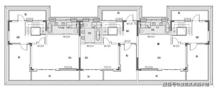
在此前的批前公示中,项目还发布了另一个联排的标准层户型图:
3#,3F联排

东西两户
售楼处电话:400-8787-098转分机号5678【售楼处位置】
售楼处电话:400-8787-098转分机号5678【营销中心】
楼盘详情4008787098-转分机号5678(房价,价格,地址,户型图,交通,周边配套,备案价,楼盘详情,售楼处电话,售楼处地址,最新房源,最新价格,最新动态,最新进展等详情)
声明:本文由入驻焦点开放平台的作者撰写,除焦点官方账号外,观点仅代表作者本人,不代表焦点立场。
