【无中介干扰,纯开发商房源】&武汉【德信时光之宸】开发商直销-售楼部400VIP专线-房价-楼盘户型-周边配套-交通地图
扫描到手机,新闻随时看
扫一扫,用手机看文章
更加方便分享给朋友
✅武汉德信时光之宸
✅售楼处电话:400-8787-098接通后输入5555【营销中心电话】
✅温馨提示:拨打400-8787-098电话,听到嘀声后,输入分机号5555即可。
✅网上售楼中心〢尊享售楼处优惠服务〢欢迎来电咨询预约案场内部销售人员〢
✅楼盘项目全面介绍,包含楼盘简介、售楼电话、小区图片、区位优势、交通、周边商业配套、户型图等楼盘详情
 
1、开发阶段:已首开2、8号楼,还有1、3、5、6、7、9号楼共6栋待开盘。
2、开盘房源:2、8号楼,建面约93-123平毛坯房源。
2号楼北临自带的商业综合体,未来下楼买东西很方便;8号楼南面临东西湖大道,西临十全路,可能会有噪音影响。
 
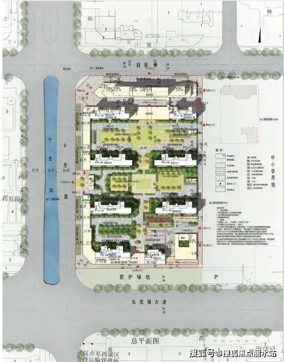
项目主要人行出入口位于西侧,3号楼与6号楼之间,次要人行出入口位于南侧与北侧。共2个地库出入口,西侧2个地库出入口位于3号楼和6号楼的东侧。
户型分布如下:
 
户型如下:
A户型建面约93-94平三房两厅一卫:这是8号楼的中间户,全朝南,户型非常方正,三开间朝南,阳台尺度大,主卧南向飘窗,卫生间三分离设计,舒适。
 
C户型建面约111平三房两厅两卫:这个户型是边,南北通透,跟上面的格局非常像,三开间朝南,只是主卧多了卫生间,整体更舒适。
 
A户型建面约123平三房两厅两卫:这是南北通透的边户,跟上面的格局也非常像几乎一样,三开间朝南,但是各个空间尺度感更强,阳台更大。
 
3、前期开盘和备案:上文已阐述。
4、楼盘基本信息
根据规划,项目总用地面积47661.82㎡,总建筑面积253417.43㎡,计容总建筑面积190648.00㎡。其中住宅160304.00㎡,超高层94923.69㎡,高层65380.31㎡;配套用房总建筑面积7814.00㎡,幼儿园面积2730.00㎡;商业及配套面积19800.00㎡。不计容总建筑面积62769.43㎡,容积率4.00,建筑密度28.02%,绿地率30%,总户数1567户,机动车总车位2278个,车位配比1:1.2。
 
项目由4栋高层、4栋超高层住宅,2.5万方商业和一所三层9班幼儿园组成。
 
技术经济指标:
 
日照图:
 
拿地信息回顾:2021年2月2日,德信中国以底价96000万元竞得,成交P(2020)187号,地块,楼面价为5035.46元/㎡。地块要求:
1、竞得人需自竣工验收之日起100%自持商业五年。
2、本地块内需要布局9班幼儿园一座,用地面积3780平方米,建设规模2730平方米,竞得人需完成幼儿园装修及配套等设施建设,满足直接开园条件,并与首批住宅同步交付。
 
03
区位交通和配套:距离地铁站较远,周边面貌一般
1、区位
德信时光之宸,位于东西湖区吴家山板块,东西湖大道与九通路交汇处,三环与四环之间,更靠近四环,距离四环线直线约640米。
 
微观区位:
北面:田园街、奥园誉湖尚居
南面:东西湖大道、汉联物流园
西面:十全路、厂房、中石化压缩机分公司
东面:规划学校用地、九通路、物流园
 
区位点评:地块处于工业用地范围内,周边多为工业园、科技园、物流园等,居住环境一般;属于吴家山老城的偏西面的边角料位置,生活配套不算很成熟。
2、交通
自驾方面,项目紧邻主干道东西湖大道,旁边是九通路往北可通金山大道,周边有四环线,上四环也比较快捷。从项目去往武汉三镇,到汉口和汉阳相对更近;走门口的东西湖大道—长丰大道高架到达汉口市中心,到汉口火车站约半个小时;
 
到汉口火车站:
 
到汉阳也是比较快速的,走四环-汉蔡高速,最快不到半个小时就到;但是到武昌、青山和光谷的话,本身距离就远了,车程接近1个小时了。
到汉阳客运站:
 
周边东西湖大道实景图:
公交方面,项目门口就有公交站,路线是H78路、H86路 、 H89路,都是东西湖区域里的专线。
地铁交通方面,项目的地铁交通出行相对不是很便利,距离地铁站挺远的。周边有1号楼五环大道站,步行过去约2公里;到东吴大道站约1.6公里;到6号线新城十一站步行约2公里。都算是比较远的步行距离。
 
交通点评:项目还是非常依赖自驾的,到汉口和汉阳还比较快,但到武昌和光谷就比较远了,吴家山板块现成的地铁口距离项目比较远,步行不太方便,未来附近有规划地铁线和地铁站,但不知道哪一年才修建。
3、配套
商业方面,项目自带2.5万独立商业街,部分由德信自持运营,未来建成运营好了满足基本生活是绰绰有余的。
 
 
周边稍大的成熟商圈要依赖吴家山老城区了,像五环广场、海林广场沃尔玛等,步行稍远,自驾的话都在3公里内。
 
教育上,项目自带幼儿园,东面规划中小学教育用地,1.5公里范围内有东西湖友谊小学、东西湖第六小学、东西湖吴家山第三中学。
 
医疗上,自驾到协和东西湖医院约7公里,距离东西湖长青街卫生院比较近约1.8公里。
配套点评:吴家山成熟的生活配套都是吴家山老城里,而项目在板块的边边位置,因此距离吴家山成熟商圈没那么近,但待自己的商业建成,以及旁边的规划学校建好,生活会方便许多。
绿城留香园(江岸区—后湖),纯新盘,预计9月底或10月初首开5号楼,建面约106和132平带装修房源,价格待定。
 
 
 
01
直击楼市疑虑
1、容积率高达5.24,地块不规则,品质打造空间受限。
项目本身地块不大,总占地约2.1万方,总建面约15万方,共有5栋高层和超高层,其中有3栋56-58层的超高层,还有2栋是18层和34层的高层,因此通过高低配来平均容积率,但整体容积率也是达到了5.24,在后湖板块算是比较高的了。
 
地块呈L型不规则状,导致楼栋分布上有的楼栋非南北落座。
 
楼栋分布上,其中2-5号楼均为东南朝向,1号楼角度北偏西约20°左右,快接近东西朝向了。
园林打造上也会更要更费心思,不过绿城的项目带泳池都是标配,这个项目也不例外,室外泳池的位置,正对小区大门,位于2号楼和3号楼中间正前方,从报规数据看,面积约627㎡。
 
2、有公租房,有配建幼儿园。
根据拿地要求,项目也有公租房配建,位于3-2号楼,共16层,不过该楼栋有单独的入户。小区没有配建幼儿园。
 
 
3、放风价参考周边待装修楼盘,大概在2.3-2.5万/平的样子,具体价格待定。
项目目前没有明确的放风价,只对外说参考周边的带装修房源的新房价格,2.3-2.5万/平。
目前后湖在售新房楼盘有11个,6个是带装修和5个毛坯,最新的备案均价区间在17700-25555元/平。
 
绿城留香园所在的西后湖:旁边最近的带装修房源是星悦城六期玺樾,均价22654元/平,尾盘销售中了;其次就是融创公园大观,24480元/平;还有星湖湾,均价2.46万/平。
 
东后湖的楼盘有:龙湖清能天曜,也是项目主要竞品,带装修备案均价2.55万/平;还有江印,带装修均价2.44万/平。
 
从产品定位上看,绿城留香园更偏改善,跟龙湖清能天曜差不多,因此参考龙湖的价格可能性更大。
楼盘优势:
1、绿城的品牌优势大。留香园是绿城的“四大名著”系列之一,品质上非常值得期待;加上绿城在武汉这两年的交付兑现力来看, 口碑还是相当不错的,市场对于绿城的品牌满意度很高。
2、交通优势明显,6号线正地铁口,最近步行距离仅约200多米,距离地铁最远的楼栋步行也近400多米。
3、户型设计很不错,大尺寸阳台和采光面,户型格局非常方正;
4、外立面为大面积玻璃幕墙的公建化外立面,非常绿城的风格,未来会与周边非外立面小区形成巨大颜值反差;
5、周边成熟小区集中,居住氛围十分浓厚,板块配套非常成熟,商业、学校、医疗、公园等配套都应有尽有,生活非常便捷。
02
房源:5栋住宅楼,共967户
 
1、加推房源如下:
绿城留香园一共5栋住宅楼,预计9月底或10月初首开5号楼,建面约106平和132平房源,后期还有建面约102平的房源。
 
首开的5号楼,北面靠近融创融公馆二期,西面是新龙和苑,南面是18层的小高层,南向采光不错。
 
5号楼,1个单元,34层,2梯4户,是建面约106平和建面约132平户型,目前建面约132平户型图已出炉。
香境H户型建面约132平,四房两厅两卫:这是5号楼的边户,南北通透,三面采光,非常通透;进门玄关,私密性上佳;南向约6.6米的环幕阳台,南向飘窗,加起来超10米的南向采光,北面的次卧、卫生间以及书房也都有飘窗赠送;主卧套房,私密性好,公卫三分离设计,使用更便捷;U型厨房采光不错,操作合理。
 
建面约106平的中间户户型具体还没有出来,但后期有109平的已经出来,跟首开的106平会有略微一些差别,一姐也放上来给大家看一下:
香语D户型建面约109平,三房两厅两卫:也是三开间朝南设计,约6.2米宽阳台,连接客厅和次卧,主卧套房带飘窗,北面次卧、卫生间也均有飘窗。
 
2、楼盘整体数据
根据报规,绿城留香园规划净用地面积21074平方米,总建筑面积150649.11平米,住宅建筑面积106697.65平米,其中高层住宅102177.65平米,公租房4520平米;商业建筑面积1632.33平方米。
项目容积率5.24,建筑密度23.21%,地下停车位1072个(人防车位212个,非人防车位859个),非机动车停车位632个(其中地下车位数499个,地面停车位133个),规划总户数967户,绿地率30%。
绿城留香园规划5栋住宅楼,其中3-2号楼为公租房,1-3号楼带部分底商。
总平图:
 
经济数据指标:
 
日照分析图:
 
效果图:
 
工地实景:
3、拿地信息回顾
2019年12月27日现,武汉君瀚房地产开发有限公司(湖北星海集团子公司)以底价64180万元竞得P(2019)211号地块,楼面地价6489.38元/㎡。
2021年4月21日,绿城中国(华中)官宣携手湖北星海集团合作开发P(2019)211号地块。
 
2016年,绿城落子华中,以武汉为重点城市,先后开发绿城武汉黄浦湾、绿城华生桂语朝阳、绿城湖畔云庐、绿城留香园等项目。
03
区位交通和配套:地铁246米,生活氛围浓厚
1、区位
绿城留香园,位于江岸区后湖板块,三环内,青松路与机电路交汇处(地铁杨汊湖站B出口右行300米)。
 
微观区位:
北面融创融公馆二期;
西面新龙和苑;
东面青松路、星悦城六期;
南面电机路,城开汉口花园。
 
区位点评:项目位于江岸后湖,本身后湖板块发展就已经非常成熟了,不论地铁还是学校,又或是商业配套等,都很齐全,小区也很多,因此整体居住氛围很浓厚,生活非常方便;从绝对位置上看,项目位于西后湖的角落位置,在后湖来说不算很核心。
2、交通
自驾方面:项目周边有姑嫂树高架、二环线、三环线、武汉大道几大快速路,从项目自驾上三环可分别通达硚口、东西湖、青山等区域,直线距离约2.5公里可至二环线,上了二环线可分别通往汉阳、武昌核心,途经武汉CBD、武汉天地商圈、徐东商圈等。
 
 
地铁方面:项目周边有地铁6号线,步行到最近的站点是杨汊湖站B出入口最近距离约246米,距离地铁站最远的楼栋应该是1号楼和5号楼,但步行过去也才不到400米,整体来说也还是非常近的步行距离。
地铁站测距:
 
交通点评:项目的交通优势非常突出,自驾快捷,地铁口,步行距离近。
3、配套
商业配套:项目自带1632平底商,满足基本生活需求;周边小区很多,也有底商共享;另外项目东北面约460米就是星悦城的商业体,引进山姆;约1公里是泛悦MALL,约2公里是金桥永旺、约2.5公里金银潭永旺,另有自驾或地铁到江宸天街、菱角湖万达、汉口城市广场、华润万象城也很方便。
附近商圈:
 
周边社区底商成熟:
 
教育配套:隔壁星悦城六期带公立幼儿园,1.5公里范围内有武汉市实验博雅第二小学、武汉市育才汉口小学、武汉市实验学校、武汉市新华下路中学等学校。具体中小学对口要等交付后确定。
 
医疗方面:离项目约1.5公里就是武汉市中心医院后湖院区,6号线沿线还有十一医院、新华医院、武汉市妇幼等。环境方面:项目下楼约280米步行距离就是星悦公园,满足日常休闲锻炼的需求。
 
星悦公园:
 
配套点评:周边的生活所需配套资源还是非常丰富的,不管是商业、教育、医疗还是公园都应有尽有。
✅武汉德信时光之宸
✅售楼处电话:400-8787-098接通后输入5555【营销中心电话】
✅温馨提示:拨打400-8787-098电话,听到嘀声后,输入分机号5555即可。
✅网上售楼中心〢尊享售楼处优惠服务〢欢迎来电咨询预约案场内部销售人员〢
✅楼盘项目全面介绍,包含楼盘简介、售楼电话、小区图片、区位优势、交通、周边商业配套、户型图等楼盘详情
声明:本文由入驻焦点开放平台的作者撰写,除焦点官方账号外,观点仅代表作者本人,不代表焦点立场。
 
 
 