武汉城建江南岸售楼处电话→售楼中心电话→2025武汉城建江南岸楼盘百科→楼盘网站→楼盘测评→售楼中心电话→楼盘百科→24小时热线电话→楼盘详情
扫描到手机,新闻随时看
扫一扫,用手机看文章
更加方便分享给朋友
✨✨武汉城建江南岸售楼处电话:400-778-0670【售楼处已认证】✨ ➢
✨✨武汉城建江南岸开发商电话:400-778-0670【售楼处已认证】✨ ➢
✨✨武汉城建江南岸营销中心电话:400-778-0670【售楼处已认证】✨ ➢
售楼处电话、售楼处地址、2025最新楼盘动态、售楼处接待时间、房源优惠、
最新房源价格、周边商业交通医院、在售户型、周边学校、交房时间、得房率、公摊面积、小区位置、小区环境、等楼盘详情!
武汉城建江南岸
【武昌滨江 |潮起江南 岸立世界】
【项目基础信息】
占地面积: 约2.57万方
总建面面积: 约8.97万方
总户数: 402户
容积率: 约2.49
绿地率: 约30%
楼栋数量:6栋
户型面积: 约143m²/ 183m²
物业形态:高层、超高层
交付标准:高定臻装
在社区硬件配置和产品打造层面,城建也对标市场高端豪宅项目做了升级,项目规划了1352㎡地下会所、社区内有4栋楼规划了主题架空层,小区全风雨连廊贯穿。
从报规的效果图看,社区是公建化立面、封窗交付,打造规格高。
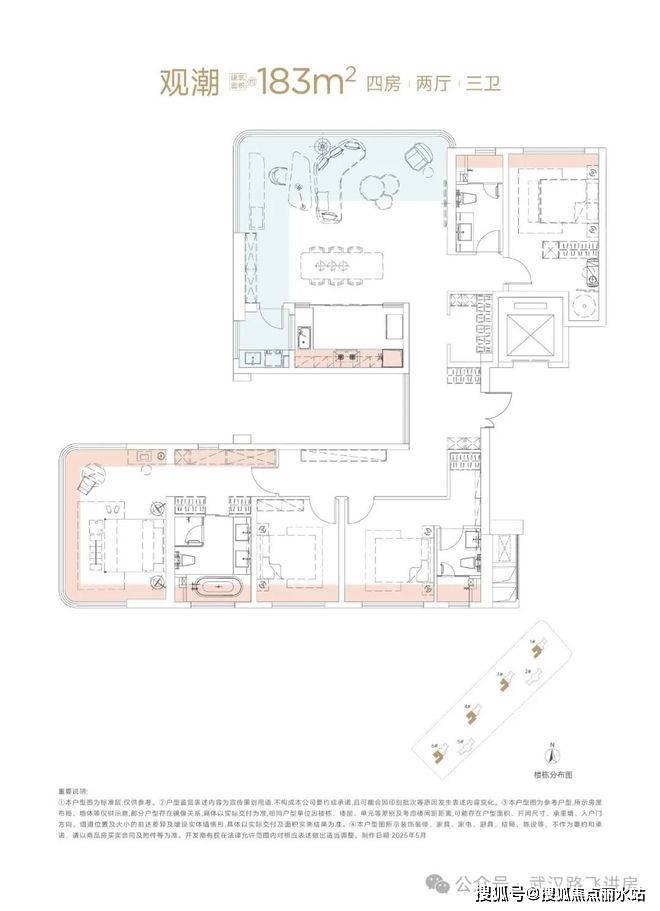
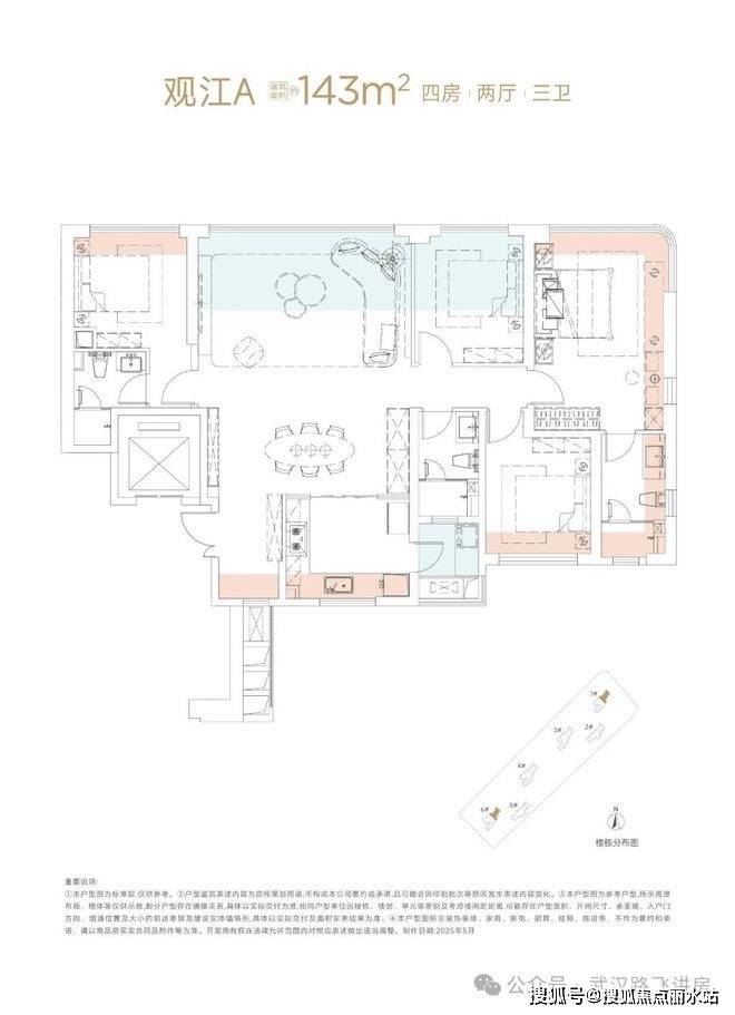
02户型介绍
项目只有建面约143㎡和183㎡两个户型,是纯改善楼盘中的豪宅定位。
建面约143㎡是经典3+1居室户型,户型面宽可达市面少见的约16.3米,创新设计可变弹性空间,约9米宽的大横厅设计,实现更多生活场景可能。
建面约184㎡户型,采用创新“双全景舱”概念设计,实现约45㎡超大IMAX环幕厅,一线江景尽收眼底,搭配约2.5米高落地玻璃,模糊室内外界限; 主卧采用270度U型玻璃幕设计,实现观江视野最大化。可改三套间的设计满足高端客群的私密生活享受,入口处设计创新X空间,实现高端品质生活场景演绎。
03区位交通
武汉城建江南岸位于武昌区铁机路与临江大道交汇处江南实业片A地块,在二环内,与二环直线距离不到1公里,靠近1.5环铁机路隧道,与武汉大道直线距离约2公里,属于武昌滨江杨园板块一线临江用地,紧邻武昌江滩,与长江直线距离仅约200米。
项目紧邻临江大道,不远处就是和平大道,自驾能比较方便的上二七长江大桥和二桥,加上在建的二七路-铁机路过江通道,未来自驾出行会更方便;项目南向直线距离约600米就是地铁5号线余家头站,未来新港线西延线(10号线一期)也在这里,未来公共交通出行也比较便捷。
✨✨武汉城建江南岸售楼处电话:400-778-0670【售楼处已认证】✨ ➢
✨✨武汉城建江南岸开发商电话:400-778-0670【售楼处已认证】✨ ➢
✨✨武汉城建江南岸营销中心电话:400-778-0670【售楼处已认证】✨ ➢
售楼处电话、售楼处地址、2025最新楼盘动态、售楼处接待时间、房源优惠、
最新房源价格、周边商业交通医院、在售户型、周边学校、交房时间、得房率、公摊面积、小区位置、小区环境、等楼盘详情!
声明:本文由入驻焦点开放平台的作者撰写,除焦点官方账号外,观点仅代表作者本人,不代表焦点立场。
