2025最新网站武汉【武汉松阅】售楼处欢迎您|楼盘详情-样板间/价格/户型-停车位-容积率-小区环境-售楼处地址-定位 -【预约电话】
扫描到手机,新闻随时看
扫一扫,用手机看文章
更加方便分享给朋友
✅武汉松阅
✅售楼处电话:400-8787-098接通后输入5555【营销中心电话】
✅温馨提示:拨打400-8787-098电话,听到嘀声后,输入分机号5555即可。
✅网上售楼中心〢尊享售楼处优惠服务〢欢迎来电咨询预约案场内部销售人员〢
✅楼盘项目全面介绍,包含楼盘简介、售楼电话、小区图片、区位优势、交通、周边商业配套、户型图等楼盘详情
先来感受一组归家场景——
首先是一个名贵石材打造的大门,威仪赫赫;
走进去,岩石跌水错落、奇珍异木交织,重檐翼馆,松晚翠盛;
门-庭-园-院,移步换景,层层递进。
走到自家楼栋下,电梯早已自动至首层等候;
乘坐独立电梯上楼,又是一个20㎡入户庭院,盎然绿意在你眼前放映。
这样的生活,描述的是别墅?还是滨江豪宅?都不是,它来源于武汉的一个新项目——松阅。
市场上,总是有一种惯性思维:最好的产品,往往价格也问鼎天花板。
仔细想一下,这样的逻辑,其实是有问题的。
我们对品质生活的追求,不应该被市场人为打上标签。
今年很多项目都在朝四代住宅发力,那四代住宅的意义是什么?
小妹认为,不仅是降公摊,更应该思考,是否给到住户更多的空间尊重和居住尊严?
在这个命题中,松阅,或许做到了今年武汉四代宅最强创新。
/ XIAO MEI /
01
/ MAI FANG /
武汉首个越级挑战大平层项目
长期以来,武汉的产品,是通过面积来划定的。
比如200+㎡就是豪宅,90+㎡就是经济实用款。
如果你认为产品的差别,是size的不同。
那么最奢华的车应该是“大巴”,而保时捷911就沦为入门款……
这样显然不准确,空间指标只是参考维度,真正决定产品的是使用体验。
松阅的优秀之处在于,它将约97-131m²户型,做到了120-170m²+户型才能拥有的居住体验。
1、颠覆认知的尺度感
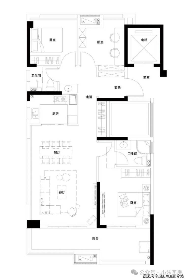
建面约97㎡可对标120㎡常规户型:
玄关:约3㎡家政空间+约8㎡电梯前室——兼顾归家礼序与收纳、家政等需求;
公区:约56㎡LDKBG五星级社交厅——足够容纳8-10人大家族聚会;
阳台:约2.1*6.6米南向阳台——阔绰的尺度甚至可以打乒乓球。
项目建面约97.36㎡户型图
简直每一处空间都是高品质生活标配。粗略计算下,这套户型赠送空间可达约18㎡,优化后得房率接近0公摊。按常规住宅80%得房率来说,项目建面约97㎡空间利用率可对标120㎡。
建面约108、131㎡空间利用率可对标130、160㎡常规户型:
约20㎡入户庭院:入户庭院比同级户型主卧还大,高层住宅做到了墅级尺度;
约70㎡LDKBG五星级社交厅:什么概念?市场上某3W+项目建面约175m²户型,公区整体空间仅约58m²。
项目建面约131.8㎡户型图(左图)
这两款户型甚至已达到负公摊级别,最大优化得房率约106%!建面约108、131㎡空间利用率可对标130、160㎡常规户型。
什么才是产品力的王者?不是胜过同级,而是能越级挑战。
项目即便跨越20㎡差距去PK,也能轻松胜出。
2、极致去墙体设计,带来超强的实用性
为什么松阅能实现56-70㎡超阔公区?
很多准四代公摊看似很低,但很多地方都不能改动,可使用面积实际很少。
但松阅在极致去墙体化后,给到你的基本上是一块完整的空间。
①户型结构灵活可变
由于内部承重墙少,所以项目建面约97㎡可做三房,建面约108㎡可以实现四房两厅两卫,建面约131㎡可做到五房两厅两卫。
目前想在武汉买到一个四房户型,面积段起码得140+㎡。
但项目建面约108㎡户型,就可以实现三代同堂或二胎家庭的居住需求。
项目建面约108.38㎡户型图
②极致采光面
此外,项目还通过减少外墙,将开窗比例做到了最大化。
项目建面约108㎡与约132㎡户型,均实现了超大窗墙比转角边厅,项目L形270°落地采光面最大可达约20.4m,即便是放到180+㎡的大平层中对比,也基本是满级尺度。
甚至很多大平层主卧都不配独立阳台,项目132㎡户型早已实现。
可以看出,项目很多居住维度,都已经触及深度改善享受。
项目建面约131.8㎡户型图
3、区域性价比NO.1
关键是,松阅不仅卷户型,还贴心地为购房者考虑到了成本问题。
①提前封窗交付
很多四代住宅,阳台花池都不能封,或者需要业主自行改造。但松阅270度的超阔阳台,后期将全部封窗交付,至少可以节约业主好几万的改造成本。
②总价可省出一辆豪车
另外,算算房价,目前青山新盘价格区间在1.7-1.9w左右,以常规户型80%得房率计算,相当于100㎡户型,项目总价可直接节省约36万,直接省出一辆宝马5系。
/ XIAO MEI /
02
/ MAI FANG /
这才是区域人居天花板
松阅这个项目,给我的感觉就一个态度:不惜代价的去做投入。
从户型设计到园区营造,它的每一个环节,都致力于做到空间价值的最大化。
1、高标准的园林景观
首先是园林景观的满级配置。高改项目标配的酒店式大门、下沉庭院、会所等各类场景,项目选择了“全部都要”。
项目入口处,牺牲了全部商业空间,打造了约3000㎡前场落客区。
主大门宽度达约40米,天然开山石料与黄铜风铃幕墙的搭配,向外界传达着非同一般的气场。

项目效果图
一个楼盘档次如何,主入口是第一眼。面对这样恢弘厚重的建筑,如果有路人经过,应该也会忍不住驻足欣赏,猜测里面业主身份非同一般。
而这只是开始,项目内部归家礼序如山水画般回环往复,连廊移步换景,水院灵动雅趣,书舍书卷生香,一进门、二进庭、三进园、四进院……足足四进中式水景园林,应该是同级项目中的满级配置。
2、高规格的社区资源
在这之上,松阅还多走了一步。他们尝试结合软硬件一起,去升级整个社区的生活系统。
小妹接触过很多改善置业者,他们置换的目的,更多的会考虑到孩子。
对于一个家庭来说,小孩其实是需要花更多精力陪伴、照料的。
这样的需求,很难靠换一套房子去实现。松阅不同之处在于,他打造了区域首个家校社共育成长计划《翼果计划》。

在室外,项目携手中科院植物园,打造了占地约2000㎡的【翼果营地】,在这里孩子可以通过一系列自然认知活动,在探索中学习。
在室内,项目还以翼果乐园为主题,打造了天空之城、知识海洋、岩石工坊等主题会所,即便刮风下雨,小业主们也有充足的游乐场地。
项目效果图
此外,项目还联动国家一级图书馆——青山图书馆,在自家楼下打造了城市书房。
将来项目业主们,无需挤出时间带孩子出游,下楼就可以玩乐、阅读、看展,每个碎片时间都将是家庭亲子时光。
3、高品质的社区圈层
园区丰富的场景背后,是项目优越的土地素质。
作为青山少有无超高层规划小区,项目容积率仅约2.35,论低密区域无人能敌。
目前青山在售新盘,基本户数都在1000户以上,项目仅布局321席,做到了人均资源配给最大化,每位业主都能拥有更私密、舒适的居住体验。
与此同时,万科物业智慧服务+私梯+智能刷卡/人脸识别梯控入户,保障了圈层服务的尊贵感。
高密小区与低密小区,就像经济舱与商务舱的区别,后者享受的是VIP专人服务体验。
在物业应答、公共资源分配方面,松阅相较于其它项目可提升约50%,这份居住尊崇,也是青山独此一份。
项目效果图
回过头来看,从硬件投入、资源投入、服务体系的加持,几乎每个维度,松阅都做到了「差异化优势」。这样的产品,才会拥有持久的竞争力。
/ XIAO MEI /
03
/ MAI FANG /
你想要的一切都触手可及
为什么松阅会诞生在这里?将项目放到地段上来看,或许你会更有感触。
1、2.5环最宜居生态住区
其实青山是一个很适合做低密产品的板块。
毕竟青山拥有12座8公顷以上的公园,公园含量位于武汉各区之首,人均公园绿地面积超10㎡。

和平公园实景图
这里是武汉2.5环难得的宜居生态住区,而松阅,正位于青山6座公园之心,项目约1.5公里步行范围内,可以抵达6座公园,简直就是“生长在公园里的家”。
2、青山生活中心
在武汉城芯,低密与繁华很难同时获得,但这里是例外。
松阅所在的楠姆片区,从青少年宫、全民健身中心到印象城,多年来一直都是青山的生活中心。
这种数十年沉淀而来的成熟城芯,绝非发展几年的新区可比,环顾项目周边,便捷的交通,繁华的商圈、最好的医疗……几乎都在这里。

示意图
住在松阅,出门就是城市主干道冶金大道,公交站【冶金大道工业三路】就在小区入口旁,该路段作为周边企事业单位班车主要停靠点,通达性很强。
另外,项目周边还有地铁5号线/12号线(在建)换乘站和平大道站,出行也有多种选择。
平时想购物逛街、吃个宵夜,印象城、恩施街直线距离项目仅约900米,想要做个体检,青山规模最大的三甲医院——武钢总医院就在马路对面。
不用等兑现,生活所需的一切,在这里全都所见即所得。
3、第一梯队教育
值得一提的是,项目教育配套也早已确定。
松阅已签约红钢城小学第四学校与武钢三中十一学校(北校区)。


在今年武汉教育局公布的首批教联体名单上,青山区红钢城小学、武钢实验学校皆榜上有名。
根据计划,红钢城小学第四学校由红钢城小学和钢城九小以省级教联体形式办学,武钢三中十一学校由武钢三中和钢城十一中以市级教联体形式办学,学校之间教育资源共享、优势互补。
红钢城小学一直都是青山家长挤破头都想让小孩上的小学,而武钢三中背后是武钢实验,教育实力在全武汉都属于头部。
这样一步就能缓解小学+初中九年教育焦虑的机会,相信应该没有家长能轻易拒绝。
4、高密度的高知圈层
其实说到教育,学校很重要,环境影响也不容忽视。
就像复地东湖国际,高知密集的社区,对于教育的重视程度明显更高。
项目周边,武钢设计院、武钢研究院、中冶、武钢总医院等单位都汇聚于此,高知圈层密度相当高。
这些“金饭碗”们,往往倾向于选择在单位附近置换,毕竟房子可以换,圈层不能换。
这也意味着,松阅天然就自带一批高端潜力买家。
从武汉楼市过往表现来看,这也是为什么,高知圈层密度高的区域,往往价值更加稳定。
小结:
从松阅出发,其实可以思考一个问题:这个时代我们需要什么样的房子?
这个问题放在海量供应、同质化竞争激烈的武汉楼市来看,更有讨论意义。
对于当下购房者来说,愿意去置换,肯定是期望能得到不一样的生活。
不是单纯户型、景观、会所的优化升级,而是全维度的,创造性的去给出一整套生活优化提案。
长久未出现过足够差异化项目的青山楼市,终于在松阅上看到了回答。
或许这才是四代住宅的意义。
✅武汉松阅
✅售楼处电话:400-8787-098接通后输入5555【营销中心电话】
✅温馨提示:拨打400-8787-098电话,听到嘀声后,输入分机号5555即可。
✅网上售楼中心〢尊享售楼处优惠服务〢欢迎来电咨询预约案场内部销售人员〢
✅楼盘项目全面介绍,包含楼盘简介、售楼电话、小区图片、区位优势、交通、周边商业配套、户型图等楼盘详情
声明:本文由入驻焦点开放平台的作者撰写,除焦点官方账号外,观点仅代表作者本人,不代表焦点立场。
