武汉城投红树林售楼处电话/楼盘详情/户型/价格/位置/周边信息
扫描到手机,新闻随时看
扫一扫,用手机看文章
更加方便分享给朋友
武汉城投红树林
?售楼部咨询预约看房热线电话:400-8787-098接通后请转6888营销中心【以认证】
?400-8787-098接通后请转6888营销中心
?400-8787-098接通后请转6888 营销中心
?//预约案场内部销售人员//专业1对1服务
?开发商营销中心//安全通话隐藏真实号码//
请您放心拨打?欢迎来电预
?约尊享内部折扣//匠心钜制恭迎品鉴
?郑重承诺;售楼处直销,中介勿扰
城投红树林位于江汉区常青五路与新湾五路交汇处,是市委党校原校址地块,到武汉二环线直线距离仅约1.6公里,可以与武汉城市核心顶配资源极速对接。

其次,它位于整个大汉口地理中心,占据大汉口真正C位,辐射汉口主城核心,也能辐射到汉口远城区。
城投红树林不仅距离二环核心足够近,打开地图,你还会发现,它正处整个大汉口的地理中心,占据汉口四环内的圆心位置,具有极强的辐射力。
往南则是汉口火车站、便捷辐射到江汉、硚口核心;往北则是三环线、常青花园成熟居住区;
往西则是武汉园博园,顺便辐射到东西湖核心区;往东一条快速路之隔便是江岸后湖核心。
不管你是在汉口主城核心,还是汉口三环外远城区,城投红树林得天独厚的地段,几乎可以承接所有汉口人的买房需求。

另外,它三地铁环绕,尤其是紧邻运量之王地铁2号线长港路站,轨交通达性超强。
辐射力越强,意味着交通出行的通达性也越强。城投红树林附近直线距离约1公里以内,有2、6、12号线三条地铁环绕,公共交通出行非常便捷。
尤其是紧邻2号线长港路站,让项目精准掌握了武汉高效通勤密码。
要知道2号线可是武汉地铁的流量之王,也是超级换乘王,途经武广、江汉路、建设大道金融街、汉口火车站、洪山广场、街道口、光谷广场、天河机场,沿路覆盖武汉超级功能区。

城投红树林到2号线长港路站仅约500米,住在这里,从长港路地铁站出发,一站地铁到汉口火车站,两站地铁到江宸天街,三站地铁到武汉CBD附近,四站地铁到同济医院附近,五站地铁到协和医院、武广。
不管你是去人气商圈逛街,还是在2号线沿线上班,或者去权威医院就医,或者需要乘坐火车、飞机出远门,通过家门口的2号线,均可以便捷高效的满足你日常所需!

优质地段的具象化表现就是重磅资源和配套的聚集。恰巧,城投红树林就是优质配套集大成者,不仅配套丰富,且配套质量也是堪称一绝。
尤其是教育配套方面,周边直线距离约800米以内有武汉一初金雅校区、红领巾学校阳光校区、大兴第一实验小学金色雅园校区等诸多知名中小学,江汉区TOP级高中武汉市一中距离项目也仅约600米。很明显,城投红树林所在之处是江汉区优质中小学非常集中的地方。

项目本身更是规划有教育用地,在官方公示的平面规划图中,也明确标注地块西北角的配建学校。按照目前武汉新校即名校的发展趋势,该项目的教育资源非常值得期待,也将是家长追求优质书包的好选择。
就算没有孩子上学需求,如此高浓度的名校聚集地,也是楼盘保值的有力保障。而且,城投红树林与周边名校足够近,到自身配建的学校更是“零距离”,即便你后期准备转手或者出租也不缺市场。

(备注:关于项目配建学校详情以及后期学区划片,以官方公示信息为准)
除了醇厚的教育资源之外,城投红树林周边还集齐了超完善的生活配套。
比如新唐万科广场、泛悦Mall都在1公里之内,还有杨汊湖菜市场、平价美食,烟火气十足。
到三甲医院武汉市中心医院后湖院区直线距离也仅约1公里。项目还自带红树林公园,难得的闹中取静。
周边约3公里内则覆盖山姆会员店、龙湖江宸天街、菱角湖万达广场、永旺梦乐城、武汉市博物馆、园博园等重量级配套。
到武汉万象城、恒隆、武广等高端商圈,或者去儿童医院、同济、协和等权威医院,武汉极地海洋公园、中山公园等汉口景区直线距离也都在6公里之内。

如今的市场,根本没有无缘无故的“红盘”,每一个爆火出圈项目的背后,一定包含了一个房企对这一片土地的态度。最直接的体现就是其势如破竹的产品力。
首先就是在楼栋规划方面,几番调整,减少楼栋,扩大间距,实现采光视野最大化。
关注城投红树林的人都知道,项目前期曾流出各种楼栋规划、户型分布等版本。直到前不久官方公示了项目规划详情,城投红树林设计方案最终确定,主要由8栋住宅组成。

一姐了解到,该项目历经50多次方案调整,原本规划的是10栋住宅,调整为了8栋,通过减少楼栋,来降低项目整体的建筑密度。对于业主来说,如此调整,最直观的感受就是楼间距更开阔,视野、采光、日照更为充足。
通过项目平面图可以看到,多数楼栋间距都在50米以上,最大楼间距能达到约91米。
即将首开的1、2号楼更是王炸,南向基本无遮挡,北面则是小区中央园林,且间距开阔,舒适度极高。

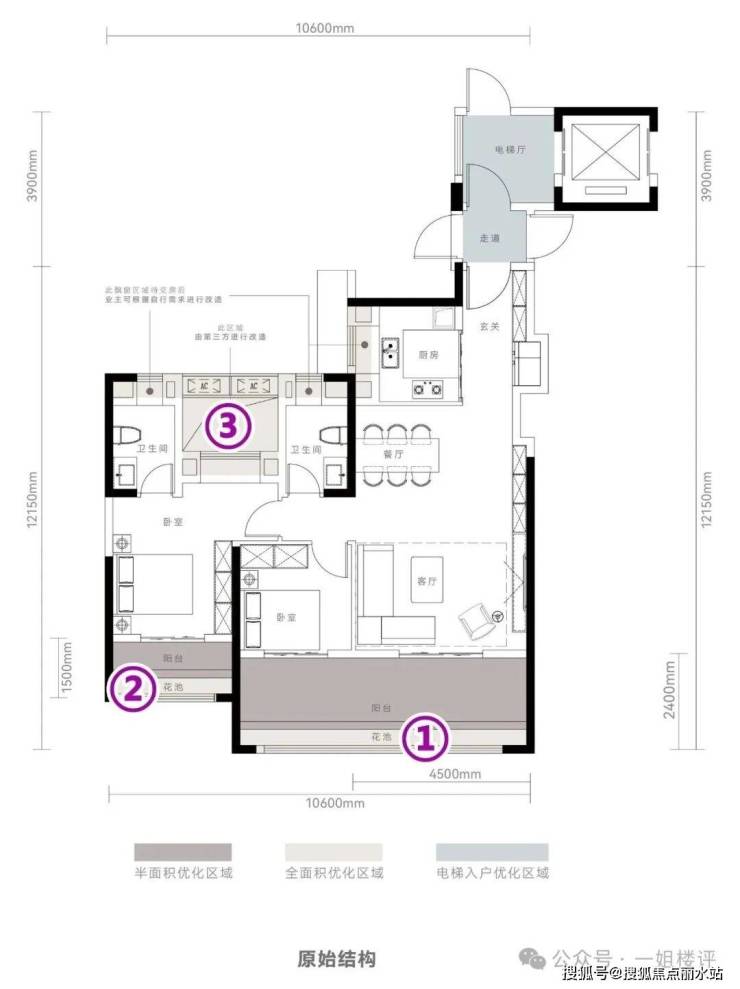
城投红树林作为爆款四代住宅,在优化面积以及得房率方面也非常出色。
目前四代住宅全面爆发,但是在居住体验、综合得房率方面不同楼盘还是有较大差异。
例如,多数四代新盘能做到边户独梯入户,带有独立电梯前室;但是中间户型就很常规。
城投红树林则不一样。该项目每个户型都能实现电梯入户,户户都带有电梯前厅。不管是大户型还是小户型,入户体验都做到了全面升级。
其中1号楼是三梯五户的结构,西边的边户独立电梯入户。中间和东侧两个电梯各管2户,通过双开门电梯形成不同的归家动线,实现不同户型独立入户的舒适体验。

2号楼则是三梯四户结构,东西两边的户型都是独立电梯入户,中间电梯管2户,也是通过电梯双开门设计,实现独立入户的舒适体验。

同时,城投红树林的室内空间极致优化,不含电梯前室,小户型优化后得房率超97%,大户型基本能实现约100%的得房率。
怎么做到的呢?
多数准四代楼盘仅有阳台和飘窗可以优化面积。但是,城投红树林南侧阳台外面还有花池,北侧也有大面积设备平台优化空间,这三处优化面积是很多楼盘做不到的。因此,不算电梯前室,仅室内优化面积就基本能抵消公摊面积。
在这里,没有比较就没有伤害。跟汉口三环附近某楼盘相比,同样是建面约105平户型,三环附近楼盘加上电梯前厅才有约92%的得房率,综合使用面积也就96平左右。
城投红树林不加电梯前厅,就有约97%的得房率,仅室内使用面积就超过了101平。如果加上电梯前厅,基本上就完全抵消公摊面积了。
同样是建面约105平户型,城投红树林可多得十来个平方。大户型的话,得房率以及实得面积就更多了。(备注:不同户型得房率以及实得面积以交房之后最终实测为准)

更为关键的是,城投红树林的户型立足生活细节,保证足够面宽的同时,兼顾合适的进深,实现每一个居住空间的平权,有效避免其他四代住宅的弊端。
因此,城投红树林每一个户型都是极品。
其中,最小建面约105平的大三房,让你首次置业就有改善的尺度。
该户型在1号楼中间户,利用双开门电梯实现独立入户的高级体验。仅这一点,在同等小面积户型中就是佼佼者。
此外,该户型南侧不仅有双联大阳台,外面还带花池,形成进深约2.4米,面积约18平的创意空间;主卧同样有阳台+花池的优化,北面次卧则是由第三方改造而来,优化面积惊人。

正是因为该户型的极致优化,保障了每个功能空间的阔绰尺寸。约4.5米开间的大横厅,加上厨餐厅一体,形成超大活动区,空间感完全不输其他楼盘建面约120平以上大户型。

南向约18平的双联大阳台可以一分为二,做成书吧+儿童房,原本的南向次卧变成茶室或玩具房。不管你怎么倒腾,都不会拥挤。

主卧套房就更阔绰了,你可以放2米大床,配置大容量的步入式衣帽间,空间也绰绰有余。
一姐了解到该户型总价约165-195万,可以让你用较低门槛在汉口二环沿线实现改善的越级体验。

建面约117平阔绰三房,拒绝拥挤,实用且舒适。
该户型为2号楼中间户,采用双开门电梯实现独立入户,且有独立电梯前室可利用。
优化面积方面,整个南侧都是阳台外带花池,北向大量飘窗+设备平台,做到了尽可能的优化拓展,整个户型优化面积几乎抵消公摊。

空间尺度上则是颠覆想象。约5.6米大横厅、12米超大面宽,约8.6米的超大阳台,约3.4米面宽的主卧大套房,这样的空间尺寸往往只出现在建面约140平以上的高改大户型。
但是,城投红树林仅用建面约117平的户型就实现了高端改善户型才有的舒适空间。二胎家庭或者三代同堂,在这样的房子里,住起来也非常宽敞。

建面约127-130平的四房则用改善户型面积实现大平层的越级空间体验。
该户型分布在1、2号楼的两边,带独立电梯前室,部分户型基本实现独梯入户的豪宅体验。
除了南向阳台+花池,北面的飘窗——设备平台之外,该户型的书房、厨房均做了双面飘窗优化,加上主卫、玄关的优化面积,实现了四面空间优化,拓展空间登峰造极,综合得房率约104%,完全做到了负公摊。

这个户型室内空间到底有多惊艳?如果你没有提前看样板间门口的水牌,户型内的超大空间,让人有误入豪宅大平层的既视感。
宽敞阔绰的厨房、约5.9米的奢阔大横厅媲美一些建面约160平左右的豪宅。

该户型还是标准的大四房设计,双面采光的儿童房,南北向还有书房、次卧,每个空间尺寸都足够大。

主卧就更奢侈了。约3.5米的面宽,阳台+花池约1.8米进深的优化空间,形成堪比五星酒店豪华套房的主卧空间。

关于城投红树林领衔的户型设计以及超标空间尺度的更多细节,可以加文末置业顾问微信具体咨询,来现场参观也会有更直接的体验哦。
其实,城投红树林一出场就有着极高的关注度,背后的执棋者功不可没。
项目由武汉城投开发,可以说是自带流量。要知道,武汉城投堪称顶流红盘制造商。
去年金沙府打响武昌内环准四代第一枪,随后的金沙樾再次大杀四方,整个武汉楼市刮起了城投金沙式抢房热潮。
武汉城投也是实力国企的代表。
项目拿地之初就要求保留这里的水杉林。你千万不要小瞧了项目门口的这片水杉林。
水杉树被誉为植物界的活化石,是一级保护植物;水杉也是武汉的市树,是城市精神与土地文脉的象征。
城投红树林在项目入市之前,花了几个月时间邀请专业团队将这里的原生水杉林完好保留,且打造成红树林公园,将红色基因一脉相承,尽显国企担当。

武汉城投也一直在践行好房子标准。
作为金沙系的延续,城投红树林拒绝盲目跟风,从实用角度打造全维配套,为汉口改善市场带来更实用的高品质好房子。
比如,挑高琉璃门庭、五重归家动线,气派十足,仪式感满满。
约700平全能健身空间、高定私宴厅、艺术沙龙场、台球吧、桌游吧,为业主带来丰富且实用的生活体验。

武汉城投红树林
?售楼部咨询预约看房热线电话:400-8787-098接通后请转6888营销中心【以认证】
?400-8787-098接通后请转6888营销中心
?400-8787-098接通后请转6888 营销中心
?//预约案场内部销售人员//专业1对1服务
?开发商营销中心//安全通话隐藏真实号码//
请您放心拨打?欢迎来电预
?约尊享内部折扣//匠心钜制恭迎品鉴
?郑重承诺;售楼处直销,中介勿扰
声明:本文由入驻焦点开放平台的作者撰写,除焦点官方账号外,观点仅代表作者本人,不代表焦点立场。
