御江尚品·江玺售楼处丨御江尚品·江玺欢迎您丨售楼中心丨首页认证丨楼盘详情

丽水楼市 2024-11-10 09:57:09
用手机看
扫描到手机,新闻随时看

扫一扫,用手机看文章
更加方便分享给朋友

御江尚品·江玺售楼处电话400-8787-098接通后输入5678【已认证】 武汉御江尚品·江玺售楼中心电话400-8787-098接通后输入5678【营销中心电话】 武汉御江尚品·江玺售楼部电话400-8787-098接通后输入5678【24小时电话】.项目开发商线上预约热线电话,本篇内容包

御江尚品·江玺售楼处电话400-8787-098接通后输入5678【已认证】

武汉御江尚品·江玺售楼中心电话400-8787-098接通后输入5678【营销中心电话】

武汉御江尚品·江玺售楼部电话400-8787-098接通后输入5678【24小时电话】.项目开发商线上预约热线电话,本篇内容包含项目信息、楼盘详情介绍:营销中心地址、房价、户型图、小区图片、区位优势、交通、周边配套、商业配套、最新动态、最新消息、等楼盘详细资料;了解详细楼盘资料和最新折扣价格,请拨打售楼处24小时热线电话预约

御江尚品·江玺——武汉首个一线滨江准四代住宅

御江尚品·江玺这个是青山的纯新盘。

项目包含3个小地块,分别是P(2022)099-101号,整个项目是一线临江的。旁边就是东兴洲小学,楼下是青山江滩,距离二环线也不远,硬件很不错。御江尚品·江玺售楼处电话400-8787-098接通后输入5678【已认证】

据说也是准四代住宅。御江尚品·江玺售楼处电话400-8787-098接通后输入5678【已认证】

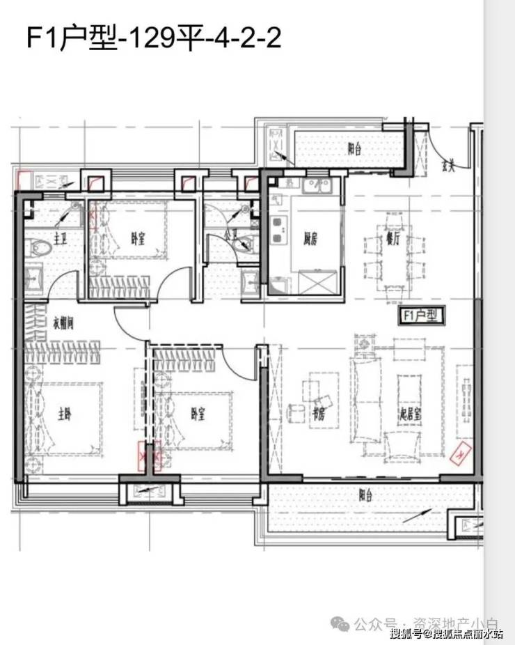
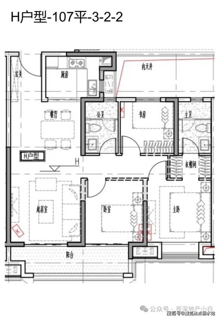
主打107-225平户型,部分楼栋的户型面积分布如下

预计首开12号楼,4楼以下不做房子,从5楼开始计楼层,128套房子,户型分布为107-129平,两梯四户

两个户型图如下:御江尚品·江玺售楼处电话400-8787-098接通后输入5678【已认证】

这个项目的位置、硬件、户型等都还不错,加上还是准四代项目,打算在青山区购房的亲们可以重点关注。

最新动态:御江尚品·江玺项目城市展厅已开放,预计首开12号楼,建面约107、129平户型,两梯四户,毛坯销售。

5、中冶书画名苑——据说正在申请改为准四代住宅御江尚品·江玺售楼处电话400-8787-098接通后输入5678【已认证】

青山区纯新盘,青山今年的新盘也是不少,前面的联投燕语光年、能建青誉府,现在的御江尚品·江玺、中冶书画名苑。

项目位置还不错,位于印象城旁边,周边有地铁5号线,和平公园等配套,但体量比较小,只有3栋住宅。

项目前期公布了户型图,97-117㎡算是比较刚需的面积段了。御江尚品·江玺售楼处电话400-8787-098接通后输入5678【已认证】

御江尚品·江玺售楼处电话400-8787-098接通后输入5678【已认证】

其实中冶的规划早就公示了,但一直没什么动作,最近,有消息称中冶书画名苑也改成了准四代住宅。

改为准四代住宅后,相应的户型设计预计也会发生变化。

御江尚品·江玺售楼处电话400-8787-098接通后输入5678【已认证】

武汉御江尚品·江玺售楼中心电话400-8787-098接通后输入5678【营销中心电话】

武汉御江尚品·江玺售楼部电话400-8787-098接通后输入5678【24小时电话】.项目开发商线上预约热线电话,本篇内容包含项目信息、楼盘详情介绍:营销中心地址、房价、户型图、小区图片、区位优势、交通、周边配套、商业配套、最新动态、最新消息、等楼盘详细资料;了解详细楼盘资料和最新折扣价格,请拨打售楼处24小时热线电话预约

声明:本文由入驻焦点开放平台的作者撰写,除焦点官方账号外,观点仅代表作者本人,不代表焦点立场。