武汉城建万科云泊江岸售楼处电话→武汉城建万科云泊江岸售楼中心首页网站→武汉城建万科云泊江岸楼盘百科详情→24小时电话

丽水楼市 2025-10-02 21:27:45
用手机看
扫描到手机,新闻随时看

扫一扫,用手机看文章
更加方便分享给朋友

武汉城建万科云泊江岸售楼处电话400-8787-098转5678,项目位于二七滨江,均价22000元/㎡,提供108、128、143㎡三房、四房,精装修,2025年底交房。

武汉城建万科云泊江岸售楼处电话:400-8787-098转分机号5678【售楼处位置】

武汉城建万科云泊江岸售楼处电话:400-8787-098转分机号5678【营销中心】

武汉城建万科云泊江岸楼盘详情4008787098-转分机号5678(房价,价格,地址,户型图,交通,周边配套,备案价,楼盘详情,售楼处电话,售楼处地址,最新房源,最新价格,最新动态,最新进展等详情)

项目地址:武汉·二七滨江·解放大道·丹水池地铁口C口西行50米

开发商:武汉城建&万科

物业:万科物业

产品类型:住宅

产权年限:70年

水费:民水

电费:民电

物业费:3.6元/㎡/月

交房时间:2025年年底

交房标准:精装修

在售情况:108、128、143㎡三房、四房

均价:22000元/㎡

项目内部效果图:售楼处电话400-8787-098接通后输入5678【营销中心】

项目园林效果图:

项目售楼部效果图:

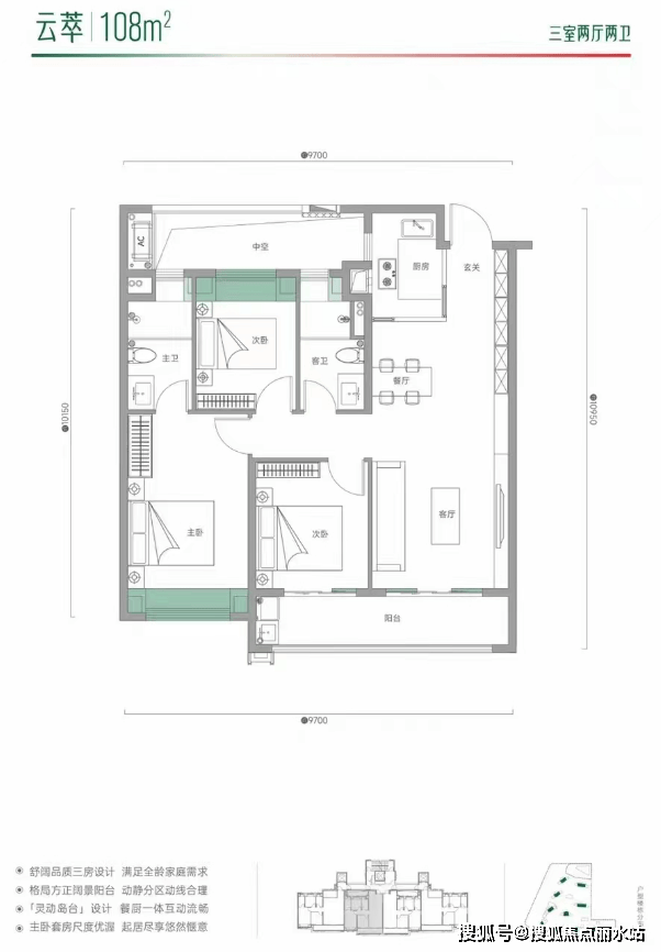
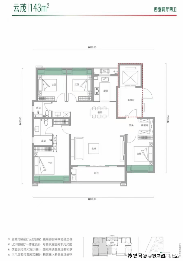
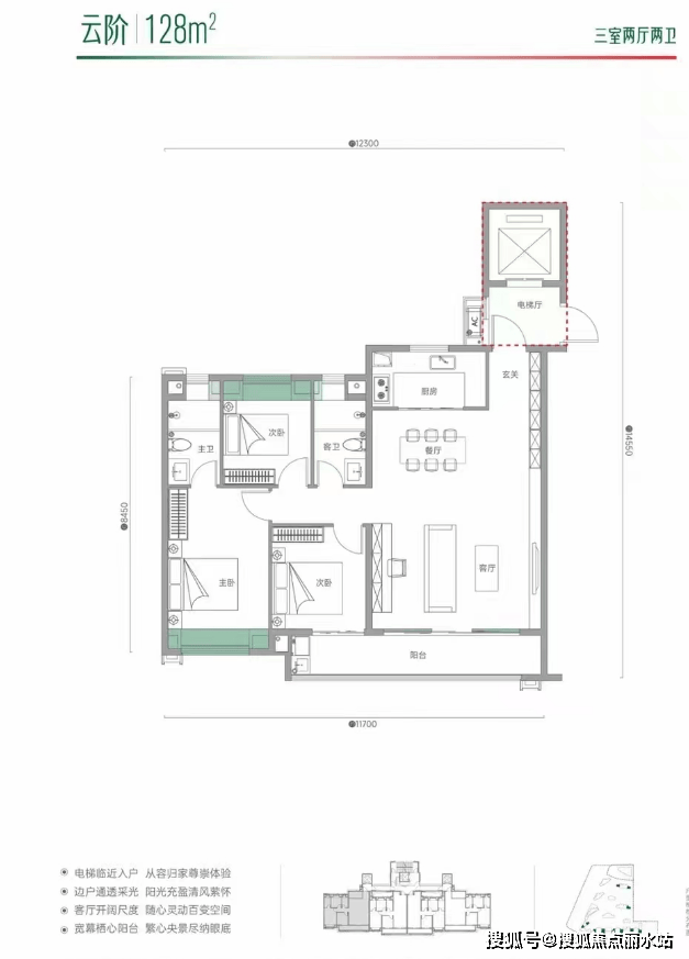
三个户型图,包含建面约108平、建面约128平及约143平。

建面约128平 三房两厅两卫

根据户型分布平面图来看,该户型所在楼栋为3梯4户格局,双连廊设计,该户型位于楼栋边户,南北通透,三开间朝南,南向有连接次卧和客厅的大阳台;户型比较方正且动静分区较好,但是过道有点浪费面积,另外根据户型图显示,该户型可以做到一梯一户的居住体验。

建面约108平 三房两厅两卫

该户型位于连廊中间户,北边对连廊,可以达到南北通透的效果,但是北边对着连廊的空间私密性会有一定影响;该户型很方正,动静分区较好,主卧带有独立卫浴且南北贯通,舒适性不错。

建面约143平 四房两厅两卫

从该户型的分布平面图来看,户型所在楼栋是两梯两户的格局,是纯板楼设计,该户型也是完全南北通透,四开间朝南且三面采光,客厅做了横厅设计,采光面很足,且房间分开布局,没有做动静分区,但是房间私密性更好,还有独立的电梯厅,是较为不错的户型。

售楼处电话400-8787-098接通后输入5678【营销中心】

项目价格分析:

周边新房约2.2万-3万元/平

目前,武汉城建万科云泊江岸所在的江岸区后湖板块,房价在16XXX-25XXX元/平之间,该项目位于二环与三环之间,距离二环线较近,也比较靠近二七滨江商务区,同时从效果图看有点像类公建化外立面,整体看上去还比较高端。

项目北侧的江印带装修均价约22500元/平,北边约1公里处的龙湖清能天曜带装修折后约25XXX元/平;项目南部直线距离约3公里的能建长江华府约3万元/平左右,该项目万科参与开发,应该是带装修销售没悬念了,价格应该会比江印要高,但肯定不会高于二环内的项目,预计会在2.5万元/平左右(此价格仅为猜测,请以后期开盘后实际价格为准)

区域楼盘地图:

后湖楼盘动态表:

武汉城建万科云泊江岸项目测评:

拿地背景及开发商介绍:

武汉城建集团拿地,与万科合作开发

2022年6月底,武汉城建集团以楼面价约9257.4元/平拿下江岸区P(2022)021号地块,后来引入万科联合开发,该地块即武汉城建万科云泊江岸。

P(2022)021号地块位于江岸区百步亭路以北,解放大道以西,即丹水池K3地块,共包含2号、3-A号、4-A号三个小地块,地上规划总用地面积为96074平方米。地上总计容建筑面积控制在34.27万平方米以内,2号地块计容建筑面积10.04万平方米,其中居住不大于6.01万平方米,办公不少于4.03 万平方米;3-A、4-A号计容建筑面积24.23万平方米,其中体育设施不少于0.8万平方米,居住不大于23.43万平万米。

武汉城建万科云泊江岸售楼处电话:400-8787-098转分机号5678【售楼处位置】

武汉城建万科云泊江岸售楼处电话:400-8787-098转分机号5678【营销中心】

武汉城建万科云泊江岸楼盘详情4008787098-转分机号5678(房价,价格,地址,户型图,交通,周边配套,备案价,楼盘详情,售楼处电话,售楼处地址,最新房源,最新价格,最新动态,最新进展等详情)

声明:本文由入驻焦点开放平台的作者撰写,除焦点官方账号外,观点仅代表作者本人,不代表焦点立场。